Extension UnderBehandling Fritidsbolig

Tilbygg på hytte i Johan Falkbergets vei 2108

📍 Johan Falkbergets vei 2108 , 7372 GLÅMOS

Nøkkelinfo

Sakstype
Tilbygg
Bygningstype
Fritidsbolig
Bruksareal
100 m²
Boenheter
1
Kommune
Røros - Rosse
Fylke
Trøndelag - Trööndelage
Gnr / Bnr
2 / 9
Saksnummer
2025/1141
Fase
Under behandling

Om byggesaken

Tilbygg på eksisterende hytte med totalt areal på 100 m² i én etasje. Hytten har saltak med teglstein og trekledning i rødt. Tilbygget inkluderer flere soverom, bad og stue/kjøkken med tilhørende vinduer og dører. Det er én trapp i bygget. Bygget er plassert nærmere nabogrensen enn 4 meter med nabosamtykke til 3 meter. Det er også installert pipe på tilbygget. Prosjektet omfatter fundamentering, tømrerarbeid, sanitæranlegg og ferdigstillelse med søknad om ferdigattest.

Produkter og materialer

Vinduer Fasadevindu

🧱 Tre eller tre/alu ramme

Antall: 9

Vinduer fordelt på fasader, 4 på nord, 2 på sør, og flere i soverom

Fasadevindu til stue, soverom og bad

Tak Saltak med teglstein

🧱 Teglstein

Saltak med teglstein i rødt

Taktekking for tilbygget

VVS Sanitæranlegg

Sanitæranlegg for bad i tilbygget

Tømrer Tømrer- og snekkerarbeid

🧱 Tre

Trekledning i rødt, saltak med teglstein

Tømrerarbeid for vegger, tak og innvendige konstruksjoner

Grunnarbeid Fundamentering

Fundamentering og betongarbeid for tilbygget

Trapper Innvendig trapp

Antall: 1

Innvendig trapp i tilbygget

Dører Ytterdører og innerdører

Antall: 7

2 ytterdører på stue, innerdører til soverom og bad

Dører til inngang og rom i tilbygget

Gulv

Gulvbelegg i tilbygget, sannsynligvis parkett eller laminat

Pipe Pipe til ildsted

Antall: 1

Installert pipe på tilbygget

Pipe for ildsted i tilbygget

Isolasjon

Isolasjon i vegger, tak og gulv for tilbygget

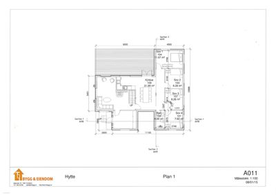
Plantegning

Hytte 100.0 m²

Etasje 1 100.0 m²

Rom Areal Vinduer Dører
Kj/stue 109 32.0 m² 1 2
Sov 1 104 11.7 m² 1 1
Sov 2 103 8.3 m² 1 1
Sov 3 107 8.3 m² 1 1
Sov 4 101 7.6 m² 1 1
Bad 108 4.0 m² 0 1

Fasader

Hytte

Nord
Materiale
Tre
Taktype
Saltak
Takmat.
Tegl
Høyde
2.4 m
Mønehøyde
4.2 m
Vinduer
4
Dører
0
Synlige etasjer
1
Sør
Materiale
Tre
Taktype
Saltak
Takmat.
Tegl
Høyde
2.4 m
Mønehøyde
4.2 m
Vinduer
2
Dører
1
Synlige etasjer
1

Hendelser

14.04.2026 Tilleggsopplysninger - søknad om ferdigattest - gbnr 2/9 - Johan Falkbergets vei 2108
13.08.2025 Vi trenger flere opplysninger - gbnr. 2/9 - Johan Falkbergets vei 2108
03.07.2025 Søknad om ferdigattest - gbnr2/9
03.07.2025 Søknad om Ferdigattest GNR 2 BNR 9