Photo
Fotografi av løsmasser fra et prøvehull ved avløpsrenseanlegget i Grue kommune.
1 / 12
Extension
Rammetillatelse
Fritidsbolig
Tilbygg på fritidsbolig i Kirkesjøvegen 322
📍 Kirkesjøvegen 322 , 2256 GRUE FINNSKOG
Nøkkelinfo
- Sakstype
- Tilbygg
- Bygningstype
- Fritidsbolig
- Bruksareal
- 45 m²
- Boenheter
- 1
- Kommune
- Grue
- Fylke
- Innlandet
- Gnr / Bnr
- 116 / 56
- Saksnummer
- 26/3853
- Fase
- Rammetillatelse
Om byggesaken
Ny tilbygg på 45 m² plasseres på fasade mot sørvest på en eksisterende fritidsbolig i Kirkesjøvegen 322. Tilbygget inngår i en enetasjes bolig med totalt 106,5 m², som har flatt tak og saltak på ulike fasader, og pipe. Det etableres også ny vei på eiendommen. Prosjektet inkluderer oppgradering av sanitært avløpsanlegg med biologisk minirenseanlegg og infiltrasjonsløsning tilpasset lokale grunnforhold. Avløpsanlegget består av en 2,0 m³ slamavskiller og 8 biomoduler for biologisk nedbrytning, med infiltrasjonsgrøft på 6 meter lengde og 1,25 meter bredde.
Produkter og materialer
Tak
Tak på tilbygg
Tilbygg plassert på fasade med flatt tak eller saltak (tilpasses eksisterende bygg)
Taktekking for tilbygg
Fasade
Tilbygg fasade sørvest
Tilbygg på 45 m² på fasade mot sørvest
Bygningsdel for tilbygg på eksisterende fritidsbolig
Vinduer
Fasadevindu
Nye vinduer i tilbygg, antall og type ikke spesifisert
Dører
Ytterdør
Ytterdør til tilbygg, type og antall ikke spesifisert
VVS
Avløpsanlegg
2,0 m³ slamavskiller iht. NS-EN 12566-1, 8 stk In-Drån biomoduler, infiltrasjonsgrøft 6 m x 1,25 m
Biologisk minirenseanlegg for sanitært avløpsvann med infiltrasjon
Grunnarbeid
Ny vei på eiendom
Etablering av ny vei inne på eiendommen
Grunnarbeid for ny adkomstvei
Tømrer
Bygningskonstruksjon tilbygg
Tømrerarbeid for oppføring av tilbygg på 45 m²
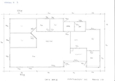
Plantegning
Enebolig 106.5 m²
Etasje 1 106.5 m²
| Rom | Areal | Vinduer | Dører |
|---|---|---|---|
| Stue 101 | 37.5 m² | 2 | 1 |
| Sov 102 | 18.0 m² | 1 | 1 |
| Sov 103 | 22.5 m² | 1 | 1 |
| Sov 104 | 19.6 m² | 1 | 1 |
| Spise stue 105 | 24.0 m² | 0 | 0 |
| Kjøkken 106 | 12.0 m² | 1 | 1 |
| Gang 107 | 4.5 m² | 0 | 2 |
| Bad 108 | 3.5 m² | 0 | 1 |
| Bod 109 | 6.7 m² | 1 | 1 |
Fasader
Enebolig
Nord
- Taktype
- Flatt tak
- Vinduer
- 4
- Dører
- 1
- Synlige etasjer
- 1
Vest
- Taktype
- Saltak
- Vinduer
- 3
- Dører
- 0
- Synlige etasjer
- 1
Sør
- Taktype
- Flatt tak
- Vinduer
- 4
- Dører
- 0
- Synlige etasjer
- 1
Øst
- Taktype
- Saltak
- Vinduer
- 1
- Dører
- 0
- Synlige etasjer
- 1
Hendelser
01.04.2026
Tillatelse til tiltak, utslippstillatelse,116/56
01.04.2026
Tillatelse til tiltak, tilbygg, 116/56
30.03.2026
Tilleggsdokumentasjon
18.03.2026
Byggesøknad