Extension Soeknad Fritidsbolig

Tilbygg med hems og fasadeendringer på fritidsbolig i Langegga 141

📍 Langegga 141 , 7374 RØROS

Nøkkelinfo

Sakstype
Tilbygg
Bygningstype
Fritidsbolig
Bruksareal
21 m²
Kommune
Røros - Rosse
Fylke
Trøndelag - Trööndelage
Gnr / Bnr
202 / 59
Saksnummer
2026/613
Fase
Søknad

Om byggesaken

Tilbygg og ombygging av den eldste delen av fritidsboligen i Langegga 141 med fasadeendringer og hems. Prosjektet omfatter heving av takkonstruksjon for bedre isolasjon og lengre takutstikk, innbygging av tidligere overbygg som blir en del av vindfanget, samt nye og utskiftede vinduer og dører i flere fasader. Det etableres også et takvindu med mørk omramming og matt sotet glass for å følge reguleringsplanens krav. Innvendig flyttes innervegger, et nytt baderom etableres på tidligere vaskerom, og det lages ekstra åpning mellom stue og kjøkken. Arealet endres ikke i form av BRA eller BYA, og terrenget påvirkes ikke. Bygget har saltak og trekledning, med totalt ca. 21 m² tilbygg/hems.

Produkter og materialer

Vinduer Fasadevindu og takvindu

🧱 Tre med mørk omramming, matt sotet glass på takvindu

Antall: 10

Nye og utskiftede vinduer i fasader nord, sør, øst og vest; takvindu med mørk omramming og matt sotet rute

Utskifting og nye vinduer i flere fasader samt takvindu

Fasade Tre kledning

🧱 Tre

Fasadeendringer med treverk tilpasset eksisterende bygg

Oppgradering og endring av fasader med tre kledning

Dører Ytterdør i forbindelse med innbygging av overbygg

🧱 Tre eller tilsvarende, tilpasset eksisterende stil

Antall: 1

Ny inngangsdør i forbindelse med innbygging av tidligere overbygg

Ny ytterdør tilpasset eksisterende byggestil

Trapper Innvendig trapp til hems

Antall: 1

Eksisterende trapp til hems beholdes eller tilpasses

Trapp til hems i tilbygg

Grunnarbeid Ingen endring i terreng

Ingen endringer i terreng eller grunnforhold

Ingen grunnarbeid nødvendig for terreng

Pipe Rehabilitering av pipeløp

Antall: 1

Rehabilitering av eksisterende pipeløp i stue

Oppgradering av pipe i stue

Tak Saltak med isolering og takutstikk

🧱 Tre, isolasjon

Heving av takkonstruksjon for isolering, lengre takutstikk

Takheving med isolasjon og forlengelse av takutstikk

Bad Nytt baderom på tidligere vaskerom

Antall: 1

Etablering av baderom på gammelt vaskerom, inkludert våtromsarbeid

Nytt bad med nødvendige installasjoner og overflater

Innvendig Innervegger og åpninger

🧱 Tre, gips eller tilsvarende

Flytting av innervegg mellom kjøkken og vaskerom, ekstra åpning mellom stue og kjøkken, fjerning av yttervegg og dør i vindfang

Innvendige ombygginger og veggendringer

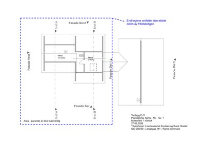
Plantegning

Hems 0.0 m²

Etasje 1 0.0 m²

Rom Areal Vinduer Dører
Hems Hems 0.0 m² 0 0

Fritidsbolig 21.0 m²

Etasje 1 21.0 m²

Rom Areal Vinduer Dører
Hems 101 14.0 m² 0 1
Hems 102 7.0 m² 0 1

Fasader

Enebolig

Nord
Materiale
Tre
Taktype
Saltak
Vinduer
4
Dører
1
Synlige etasjer
1
Sør
Materiale
Tre
Taktype
Saltak
Vinduer
5
Dører
1
Synlige etasjer
1
Øst
Materiale
Tre
Taktype
Saltak
Vinduer
4
Dører
1
Synlige etasjer
1

Eksisterende

Øst
Materiale
Tre
Taktype
Saltak
Vinduer
3
Dører
1
Synlige etasjer
1

Hendelser

14.04.2026 Søknad om tillatelse til tiltak - endringer fritidsbolig - Langegga 141, GID 202/59