Extension Ferdigattest Fritidsbolig

Tilbygg til fritidsbolig på Lilletorgnes 21

📍 Lilletorgnes 21 , 8909 BRØNNØYSUND

Nøkkelinfo

Sakstype
Tilbygg
Bygningstype
Fritidsbolig
Bruksareal
98 m²
Boenheter
1
Kommune
Brønnøy
Fylke
Nordland - Nordlánnda
Gnr / Bnr
101 / 39
Saksnummer
2022/4632
Fase
Ferdigattest

Om byggesaken

Ny tilbygg til fritidsbolig på Lilletorgnes 21 med en grunnflate på ca. 73 m², som øker byggets totale areal til 97,7 m². Tilbygget er plassert i et lavere terrengnivå enn eksisterende bygg og tilpasset en bratt tomt med nivåforskjeller løst med trapp. Bygget har trekledning og saltak med takstein av tegl. Innvendig består bygget av stue, to soverom, bad, gang og trapperom. Fasader er i tre med flere vinduer og dører, og det er en pipe på vestfasaden. Bygget er utført i henhold til godkjente tegninger og dispensasjon fra regulert maks størrelse er gitt.

Produkter og materialer

Elektro Elektrisk anlegg

Elektrisk installasjon for belysning og strøm i tilbygg

Isolasjon Vegger og tak

Isolasjon i vegger og tak for fritidsboligtilbygg

VVS Vann og avløp, sanitærutstyr

VVS-installasjoner for bad og øvrige rom i tilbygg

Maling Utvendig og innvendig maling

Maling av utvendige og innvendige flater i tilbygg

Fasade Trekledning

🧱 Tre

Trekledning på fasader, tilpasset eksisterende bygg

Utvendig trekledning for fasader på tilbygg

Gulv Innvendig gulv

Innvendige gulvflater i tilbygg

Grunnarbeid Fundamentering og terrengtilpasning

Fundamentering med pilarer, terrengtilpasning i bratt tomt

Grunnarbeid for tilbygg på skrånende tomt med pilarer og oppfylling/beplantning for høydevirkning

Trapper Innvendig trapp

Antall: 1

Trapp for nivåforskjell i tilbygg

Innvendig trapp for å håndtere nivåforskjeller i bygget

Tak Saltak med teglstein

🧱 Tegl

Saltak med takstein av tegl, takvinkel 15-25 grader

Taktekking med teglstein på saltak

Vinduer Fasadevindu

Antall: 5

Fasadevinduer i tre på tilbygg

Dører Ytterdør

Antall: 2

Ytterdører i tilbygg

Pipe Murpipe

🧱 Mur

Antall: 1

Pipe på vestfasade

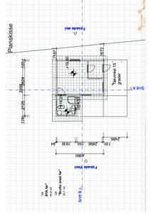
Plantegning

Enebolig 97.7 m²

Etasje 1 97.7 m²

Rom Areal Vinduer Dører
Stue 101 35.2 m² 2 1
Sovegang 102 10.5 m² 0 2
Bad 103 8.5 m² 0 1
Sovev. 1 104 12.0 m² 1 1
Sovev. 2 105 11.5 m² 1 1
Gang 106 6.0 m² 0 2
Trapperom 107 4.0 m² 0 1

Fasader

Eksisterende

Sør
Materiale
Tre
Taktype
Saltak
Vinduer
2
Dører
0
Synlige etasjer
2
Nord
Materiale
Tre
Taktype
Valmtak
Vinduer
1
Dører
1
Synlige etasjer
1

Enebolig

Vest
Materiale
Tre
Taktype
Saltak
Takmat.
Tegl
Vinduer
1
Dører
0
Synlige etasjer
1
Nord
Materiale
Tre
Taktype
Valmtak
Takmat.
Tegl
Høyde
3.9 m
Mønehøyde
5.4 m
Vinduer
2
Dører
1
Synlige etasjer
1

Hovedbygg

Øst
Materiale
Tre
Taktype
Pulttak
Takmat.
Tegl
Vinduer
1
Dører
0
Synlige etasjer
1

Hendelser

10.04.2026 Ferdigattest - Tilbygg fritidsbolig - Gnr/bnr 101/39 - Lilletorgnes 21
31.03.2026 Søknad om ferdigattest - Gnr/bnr 101/39 - Lilletorgnes 21
04.07.2022 Byggetillatelse for tilbygg til fritidsbolig - Lilletorgnes 21 - Gnr/bnr 101/39 - Erling Moen og Eline Westerberg
04.07.2022 Oppdaterte tegninger - Gnr/bnr 101/39
28.06.2022 Vedlegg til søknad om tillatelse til tiltak uten ansvarsrett - Gnr/bnr 101/39 - Eksisterende bygg
27.06.2022 Søknad om tillatelse til tiltak uten ansvarsrett – Gnr/bnr 101/39
24.06.2022 Epostkorrespondanse - Vedrørende møte om tilbygg til fritidsbolig og reguleringsplan - Gnr/bnr 101/39