Extension Soeknad Fritidsbolig

Tilbygg på fritidsbolig Monsøya 2, Hitra

📍 Monsøya 2 , 7243 KVENVÆR

Nøkkelinfo

Sakstype
Tilbygg
Bygningstype
Fritidsbolig
Bruksareal
26 m²
Boenheter
1
Kommune
Hitra
Fylke
Trøndelag - Trööndelage
Gnr / Bnr
38 / 33
Saksnummer
2026/2933
Fase
Søknad

Om byggesaken

Ny utvendig tilbygg på eksisterende fritidsbolig på Monsøya 2 med et bruksareal på 26 m². Tilbygget forlenger hytta med 5,5 meter og utføres i samme nivå som eksisterende bygg, tilpasset terrenget rundt. Bygget har trevegger i tre og tak med teglstein, og følger reguleringsplanens krav for fritidsbebyggelse. Eksisterende hytte har et samlet areal på 72 m² med stue/kjøkken, bad og fire soverom. Tilbygget øker samlet bebygd areal til ca. 99 m², innenfor tillatt utnyttelse.

Produkter og materialer

Vinduer Fasadevindu i tre

🧱 Tre

Vinduer tilpasset eksisterende hytte, antall og type iht. tegninger

Nye vinduer til tilbygget i samme stil som eksisterende

Tak Saltak med teglstein

🧱 Teglstein

Tak med teglstein som eksisterende hytte

Taktekking med teglstein i saltakstil

Maling Utvendig og innvendig maling

Maling av trevegger utvendig og innvendig i tilbygget

Overflatebehandling av treverk

Elektro Elektrisk installasjon

Elektrisk installasjon i tilbygget iht. gjeldende forskrifter

El-installasjon for belysning og strøm i tilbygget

Dører Ytterdør

🧱 Tre eller tilsvarende

Dør til tilbygget, tilpasset eksisterende bygg

Ytterdør til tilbygget

Gulv Innvendige gulv

Gulv i tilbygget tilpasset eksisterende hytte

Innvendige gulv i tilbygget

Grunnarbeid Fundamentering og grunnmur

Grunnarbeid for tilbygg i terreng tilpasset eksisterende hytte

Fundamentering og grunnmur for tilbygget

Tømrer Bygging av tilbygg

Tømrerarbeid for oppføring av tilbygg på 26 m²

Tømrerarbeid for konstruksjon og montering

VVS Vann og avløp

Ingen vannklosett installeres, tilknytning til privat avløpsanlegg

VVS-arbeid for tilknytning til eksisterende vann og avløp

Fasade Trevegger

🧱 Tre

Tilbygg i samme stil og materiale som eksisterende hytte, tilpasset terreng

Yttervegger i tre som matcher eksisterende bygg

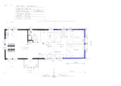
Plantegning

Enebolig 72.0 m²

Etasje 1 72.0 m²

Rom Areal Vinduer Dører
Stue/Kjøkken 101 23.5 m² 2 2
Bad 102 3.2 m² 0 1
Sov 1 103 4.4 m² 1 1
Sov 2 104 3.3 m² 1 1
Sov 3 105 6.5 m² 1 1
Sov 3 106 6.5 m² 1 1

Fasader

Enebolig

Nord
Materiale
Tre
Taktype
Pulttak
Takmat.
Tegl
Høyde
4.7 m
Mønehøyde
6.4 m
Vinduer
5
Dører
0
Synlige etasjer
1
Øst
Materiale
Tre
Taktype
Saltak
Takmat.
Tegl
Høyde
4.7 m
Mønehøyde
6.4 m
Vinduer
3
Dører
0
Synlige etasjer
1
Sør
Materiale
Tre
Taktype
Saltak
Takmat.
Tegl
Høyde
4.7 m
Mønehøyde
6.4 m
Vinduer
5
Dører
1
Synlige etasjer
1
Vest
Materiale
Tre
Taktype
Saltak
Takmat.
Tegl
Høyde
4.7 m
Mønehøyde
6.4 m
Vinduer
1
Dører
0
Synlige etasjer
1

Hendelser

10.04.2026 Bekreftelse på mottatt søknad - Ett-trinns søknad - Endring av bygg - påbygg, Endring av bygg - utvendig tilbygg mindre enn 50 m² - Monsøya 2 - Gnr/ Bnr. 38/33
10.04.2026 Søknad om tillatelse i ett trinn på gnr. 38, bnr. 33