Extension UnderBehandling Fritidsbolig

Tilbygg og riving med ny utebod på Ølvesvegen 650

📍 Ølvesvegen 650 , 5637 ØLVE

Nøkkelinfo

Sakstype
Tilbygg
Bygningstype
Fritidsbolig
Bruksareal
100 m²
Boenheter
1
Kommune
Kvinnherad
Fylke
Vestland
Gnr / Bnr
8 / 17
Saksnummer
2026/2732
Fase
Under behandling

Om byggesaken

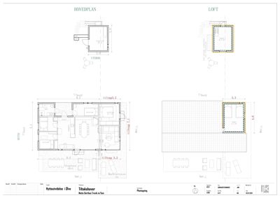
Prosjektet omfatter et mindre utvendig tilbygg på eksisterende hytte samt riving av en gammel utebod og oppføring av en ny utebod i to etasjer på samme sted. Tilbygget forlenger hytta med ca. 3 meter og gir økt bodplass og en estetisk oppgradering. Den nye uteboden får en grunnflate på ca. 12 m² og en hems på 9 m², og samlet bebygd areal for hytte og utebod blir 100 m², godt innenfor gjeldende arealgrenser. Bygningene er i tre med varierende takformer (flatt tak, saltak, valmtak) og har flere vinduer og dører i tre. Hytta har to etasjer med flere soverom, bad, kjøkken og stue, mens uteboden har garasjeport og dør. Prosjektet inkluderer også oppgradering av fasader og tak, og ligger i LNFS-område med dispensasjonssøknad under behandling.

Produkter og materialer

Dører Ytterdører i tre

🧱 Tre

Antall: 7

Dører i tre på hytte og utebod, inkludert garasjeport på utebod

Ytterdører og garasjeport til hytte og utebod

Terrasse Markterrasse

🧱 Tre

Antall: 1

Ny markterrasse på terreng ved hytta

Utendørs terrasse i tre

Vinduer Tre vinduer

🧱 Tre

Antall: 14

Vinduer i tre på hytte og utebod, antall 14

Vinduer til hytte og utebod

Tak Saltak, valmtak og flatt tak

🧱 Taktekking ikke spesifisert

Flatt tak på deler av hytte og utebod, valmtak og saltak på hytte

Taktekking og takformer på hytte og utebod

Isolasjon Isolasjon for hytte og utebod

Isolasjon iht. TEK for fritidsbolig

Isolasjon for vegger, tak og gulv i tilbygg og utebod

VVS Vann og avløp

Vann- og avløpsinstallasjon for bad og kjøkken i tilbygg

VVS-installasjoner for sanitær og kjøkken

Gulv Innvendige gulv

Gulv i stue, kjøkken, soverom og gang i tilbygg og eksisterende hytte

Innvendige gulvflater i tilbygg og hytte

Elektro Elektrisk installasjon

Elektrisk anlegg for tilbygg og utebod

Elektrisk installasjon for belysning og stikkontakter

Tømrer Bygging av tilbygg og utebod

🧱 Tre

Tømrerarbeid for tilbygg på hytte og ny utebod i to etasjer

Tømrerarbeid for konstruksjon og oppføring

Grunnarbeid Fundamentering og grunnmur

Grunnarbeid for tilbygg og ny utebod, inkludert riving av gammel utebod

Grunnarbeid og fundamentering for ny bygningsmasse

Bad Baderomsinnredning

Antall: 1

Bad på 3.8 m² i 1. etasje og bad på 6.5 m² i 2. etasje

Innredning og overflater for bad i hytta

Fasade Trepanel kledning

🧱 Tre

Trepanel på hytte og utebod, med oppgradering av kledning på utebod

Kledning av hytte og ny utebod i tre

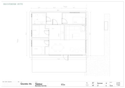
Plantegning

Hytte 97.0 m²

Etasje 0 48.5 m²

Rom Areal Vinduer Dører
Stue 101 26.0 m² 3 2
Kjøkken 102 8.5 m² 1 1
Gang 103 4.2 m² 0 2
Bad 104 3.8 m² 0 1
Soverom 105 9.7 m² 2 1

Etasje 1 48.5 m²

Rom Areal Vinduer Dører
Soverom 201 9.7 m² 2 1
Soverom 202 9.7 m² 2 1
Gang 203 4.2 m² 0 2
Soverom 101 12.8 m² 1 1
Soverom 102 13.5 m² 1 1
Soverom 103 12.8 m² 1 1
Bad 104 6.5 m² 0 1
Kjøkken 105 14.2 m² 1 1
Stue 106 17.3 m² 3 1

Fasader

Hytte

Sør
Materiale
Tre
Taktype
Flatt tak
Høyde
3.8 m
Mønehøyde
42.9 m
Vinduer
4
Dører
1
Synlige etasjer
1
Vest
Materiale
Tre
Taktype
Valmtak
Høyde
4.6 m
Mønehøyde
43.8 m
Vinduer
2
Dører
1
Synlige etasjer
1
Nord
Materiale
Tre
Taktype
Flatt tak
Høyde
4.7 m
Vinduer
4
Dører
1
Synlige etasjer
1
Øst
Materiale
Tre
Taktype
Saltak
Høyde
5.0 m
Vinduer
3
Dører
1
Synlige etasjer
1

Verksted/bod

Vest
Materiale
Tre
Taktype
Flatt tak
Høyde
3.7 m
Mønehøyde
45.2 m
Vinduer
0
Dører
1
Synlige etasjer
1

Hendelser

14.04.2026 Søknad om dispensasjon fra arealformålet i LNFS - 8/17
26.03.2026 Vedkjem førespurnad - Mangelbrev - 8/17
23.03.2026 Vedkjem mangelbrev - 8/17
20.03.2026 Mangelbrev - Rammesøknad - 8/17
19.03.2026 Stadfesting på mottatt søknad - Rammesøknad - 8/17
19.03.2026 Søknad om rammeløyve - 8/17