Extension Rammetillatelse Fritidsbolig

Nytt tilbygg til fritidsbolig på Østhagen 11, Asker

📍 Østhagen 11 , 3430 SPIKKESTAD

Nøkkelinfo

Sakstype
Tilbygg
Bygningstype
Fritidsbolig
Bruksareal
28 m²
Boenheter
1
Kommune
Asker
Fylke
Akershus
Gnr / Bnr
279 / 23
Saksnummer
25/4256
Fase
Rammetillatelse

Om byggesaken

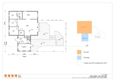
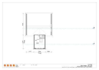
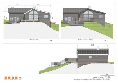
Nytt tilbygg på 28,3 m² til eksisterende fritidsbolig på Østhagen 11 i Asker. Tilbygget består av to etasjer med funksjoner som kontor, gang og loftsstue. Bygget er tilpasset eksisterende hytte med tre som fasademateriale og saltak. Terrenginngrep er minimale og godt dokumentert, og bygget er tilknyttet privat vann- og avløpsanlegg. Prosjektet ligger innenfor kommuneplanens rammer for LNFR-område og hensynssone for brann- og eksplosjonsfare, med godkjente uttalelser fra relevante myndigheter. Rammetillatelse er gitt med vilkår om dokumentasjon av sikkerhet mot områdeskred før igangsetting.

Arbeidsomfang

- Riving av eksisterende tilbygg på ca. 28,3 m² - Påbygg med nytt tilbygg (samlet areal mindre enn 50 m²) - Tilpasning av grunnmur og fundament for ny bebyggelse - Montering av nye vinduer og dører i ny fasade - Installasjon av privat avløpsanlegg (vannklosett) med tilhørende utslippslåtelse - Føring av takvann/overvann fra nytt tilbygg til terreng - Utregning og justering av gjerde/rekkverk i forbindelse med tiltaket

Produkter og materialer

VVS Vann og avløp

Tilknytning til godkjent privat vann- og avløpsanlegg

VVS-installasjoner tilknyttet eksisterende privat anlegg

Grunnarbeid Terrengarbeid

Minimale terrenginngrep dokumentert med bilder og snitt

Grunnarbeid og terrengjusteringer for tilbygg og terrasser

Fasade Trepanel

🧱 Tre

Fasade i tre, tilpasset eksisterende hytte

Utvendig kledning i tre for tilbyggets fasader

Bad Bad og vaskerom

Bad og vaskerom i eksisterende bygg, ingen nye bad i tilbygget

Ingen nye bad planlagt i tilbygget, men tilknytning til eksisterende sanitær

Terrasse Terrasser under 50 cm høyde

Terrasser under 50 cm regnes ikke med i BYA, dokumentert i søknad

Terrasser i bakkeplan tilknyttet tilbygget

Tømrer Bygningskonstruksjon

🧱 Tre

Tømrerarbeid for oppføring av tilbygg i tre

Bygningskonstruksjon i tre for tilbyggets vegger, tak og etasjeskiller

Dører Ytterdør

🧱 Tre eller glass

Antall: 2

Ytterdører iht. plantegninger

Dører til inngang og utgang i tilbygget

Tak Saltak

🧱 Takstein eller lignende

Saltak som eksisterende hytte

Taktekking med saltak for tilbygg

Vinduer Fasadevindu

🧱 Tre eller aluminium

Antall: 8

Vinduer i fasade, antall og plassering iht. tegninger

Vinduer til kontor, loftsstue og øvrige rom i tilbygget

Gulv Innvendig gulv

Gulv i kontor, gang og loftsstue iht. standard for fritidsbolig

Innvendige gulvflater i tilbygget

Elektro Elektrisk anlegg

Elektrisk installasjon for nytt tilbygg

Elektrisk anlegg for belysning og strøm i tilbygget

Trapper Innvendig trapp

Antall: 1

Trapp mellom 1. og 2. etasje i tilbygget

Innvendig trapp for adkomst til loftsstue i 2. etasje

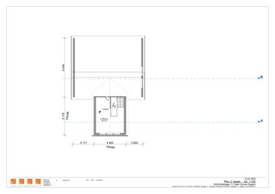
Plantegning

Enebolig 227.8 m²

Etasje 1 208.6 m²

Rom Areal Vinduer Dører
Stue 101 36.5 m² 4 1
Kjøkken 102 14.3 m² 1 1
Vask 103 3.5 m² 0 1
Bad 104 8.2 m² 0 1
Sov 105 7.3 m² 1 1
Sov 106 9.9 m² 1 1
Gang 107 9.2 m² 0 3
Kontor/hobby 108 10.7 m² 2 1
Grov G. 109 2.9 m² 0 1

Etasje 2 19.2 m²

Rom Areal Vinduer Dører
Loftsstue 19.2 m² 0 1

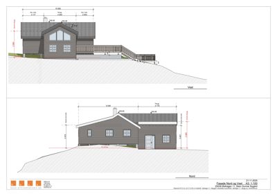
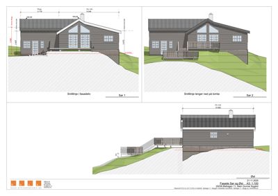
Fasader

Eks. hytte

Sør
Materiale
Tre
Taktype
Saltak
Høyde
4.0 m
Mønehøyde
8.2 m
Vinduer
5
Dører
2
Balkonger
1
Synlige etasjer
1
Øst
Materiale
Tre
Taktype
Saltak
Høyde
3.5 m
Mønehøyde
6.6 m
Vinduer
1
Dører
0
Balkonger
1
Synlige etasjer
1
Vest
Materiale
Tre
Taktype
Saltak
Høyde
4.0 m
Mønehøyde
165.7 m
Vinduer
3
Dører
0
Synlige etasjer
2
Nord
Materiale
Tre
Taktype
Saltak
Høyde
3.5 m
Mønehøyde
165.7 m
Vinduer
3
Dører
0
Synlige etasjer
1

Hendelser

15.04.2026 279/23 Østhagen 11 - Bilder av utførte terrengendringer
14.04.2026 279/23 Østhagen 11 - Rammetillatelse for nytt tilbygg fritidsbolig
10.04.2026 279/23 Østhagen 11 - Uttalelse i forbindelse med søknad om tilbygg
07.04.2026 279/23 Østhagen 11 - Ber om mer dokumentasjon
05.03.2026 279/23 Østhagen 11 - Uttalelse til søknad om tilbygg fritidsbolig søknad
23.02.2026 279/23 Østhagen 11 - Anmodning om uttalelse til søknad om nytt tilbygg til fritidsbolig søknad
16.02.2026 279/23 Østhagen 11 - Tilbakemelding på mangelbrev
12.02.2026 279/23 Østhagen 11 - Ufullstendig søknad om nytt tilbygg til fritidsbolig med mer søknad
17.12.2025 279/23 Østhagen 11 - Bekreftelse på at vi har mottatt din søknad søknad
12.12.2025 279/23 Østhagen 11 - Søknad om rammetillatelse - Nytt tilbygg fritidsbolig rammetillatelse