Extension Rammetillatelse Fritidsbolig

Tilbygg til fritidsbolig på Østre Knotten 29

📍 Østre Knotten 29 , 2881 AUST-TORPA

Nøkkelinfo

Sakstype
Tilbygg
Bygningstype
Fritidsbolig
Bruksareal
22 m²
Kommune
Nordre Land
Fylke
Innlandet
Gnr / Bnr
94 / 29
Saksnummer
2026/6785
Fase
Rammetillatelse

Om byggesaken

Ny tilbygg på 22 m² BYA (19,5 m² BRA) til eksisterende fritidsbolig på Østre Knotten 29. Tilbygget har ett plan med flatt tak og trekledning, og inneholder stue (24 m²), soverom (12 m²) og vaskerom (7,6 m²). Fasader mot nord og sør har til sammen 6 vinduer, og bygget har en innvendig trapp. Tilbygget er plassert i samsvar med godkjente situasjonsplaner og tegninger, og er tilpasset eksisterende hytte med saltak og trekledning. Radonforebyggende tiltak anbefales i grunnen. Det er ikke endringer i adkomst eller parkeringsløsninger.

Produkter og materialer

Dører Innvendige dører

Antall: 3

1 dør til stue, 1 dør til soverom, 1 dør til vaskerom

Innvendige dører mellom rom i tilbygget

Fasade Trekledning

🧱 Tre

Trekledning på fasader mot nord, sør, øst og vest

Kledning av tilbygg i tre som matcher eksisterende hytte

Tak Flatt tak

Flatt tak på tilbygget

Taktekking for flatt tak på tilbygget

Grunnarbeid Radonforebyggende tiltak

Radonforebyggende tiltak i grunnen anbefalt

Tiltak for å sikre mot radongass i grunnen under tilbygget

Trapper Innvendig trapp

Antall: 1

Innvendig trapp i tilbygget

Vinduer Fasadevindu

Antall: 6

4 vinduer mot nord, 2 vinduer mot sør, 3 vinduer i stue, 2 i soverom

Vinduer i tilbyggets fasader for naturlig lys og ventilasjon

VVS Vann og avløp

Eventuell innlegging av vann krever utslippstillatelse

Vann- og avløpsinstallasjoner for tilbygget

Tømrer Bygningskonstruksjon

🧱 Tre

Tømrerarbeid for oppføring av tilbyggets bærende konstruksjoner

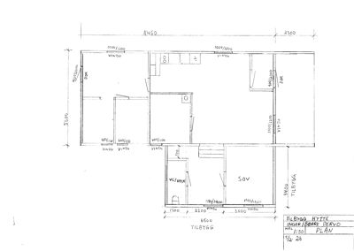
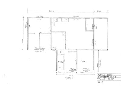
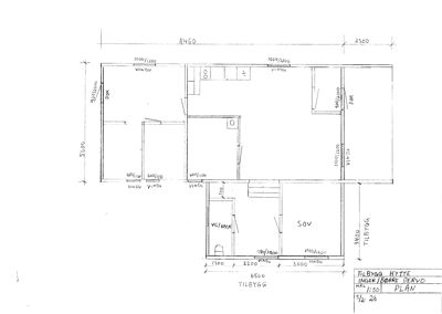
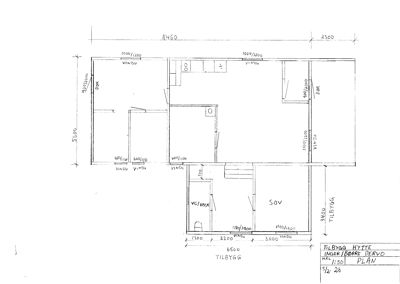
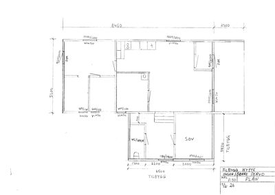
Plantegning

Tilbygg 43.6 m²

Etasje 1 43.6 m²

Rom Areal Vinduer Dører
Stue 101 24.0 m² 3 1
Sov 102 12.0 m² 2 1
VG/VASK 103 7.6 m² 0 1

Fasader

Tilbygg

Nord
Materiale
Tre
Taktype
Flatt tak
Vinduer
4
Dører
0
Synlige etasjer
1
Sør
Materiale
Tre
Taktype
Flatt tak
Vinduer
2
Dører
0
Synlige etasjer
1

Tilbygg Hytte

Vest
Materiale
Tre
Taktype
Saltak
Vinduer
1
Dører
1
Synlige etasjer
1
Øst
Materiale
Tre
Taktype
Saltak
Vinduer
1
Dører
1
Balkonger
1
Synlige etasjer
1

Hendelser

16.04.2026 Gbnr. 94/29 - Innvilget søknad om tillatelse til oppføring av tilbygg til fritidsbolig - Østre Knotten 29
07.04.2026 Gbnr. 94/29 - Søknad om tillatelse til tiltak uten ansvarsrett