Extension Ferdigattest Fritidsbolig

Tilbygg med flatt tak til fritidsbolig på Øvre Burevei 11

📍 Øvre Burevei 11 , 3475 SÆTRE

Nøkkelinfo

Sakstype
Tilbygg
Bygningstype
Fritidsbolig
Bruksareal
36 m²
Boenheter
1
Kommune
Asker
Fylke
Akershus
Gnr / Bnr
352 / 18
Saksnummer
20/3068
Fase
Ferdigattest

Om byggesaken

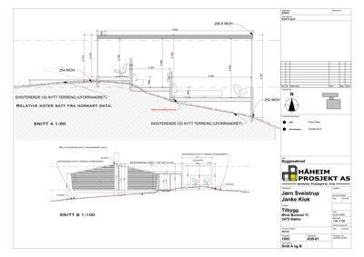
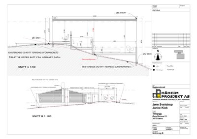
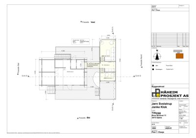
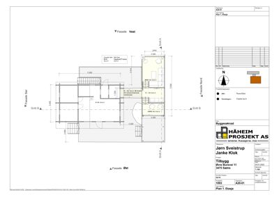
Ny tilbygg på 36,5 m² BYA (32,9 m² BRA) med flatt tak til eksisterende fritidsbolig på Øvre Burevei 11. Tilbygget inneholder stue, soverom, bad, gang, kjøkken, vaskerom og teknisk rom, samt en terrasse på 40 m². Bygget har royalimpregnert kledning i natur- eller fjellgrå nyanse, og er plassert med hensyn til naboer og terreng, med smale vinduer mot nord og hovedflate mot vest. Taket har maksimal gesimshøyde på 5,0 meter i henhold til kommuneplanens bestemmelser for LNF-område. Bygget er tilpasset eksisterende hytte med moderne arkitektur som skaper helhet i omgivelsene.

Arbeidsomfang

- Påbygg av tilbygg til eksisterende fritidsbolig (hytte) - Tiltaket skal ligge på fjellterrenget uten terreng-inngrep eller endring av terrengprofilen - Nytt tiltak skal ha samme gesimshøyde som eksisterende bygning

Produkter og materialer

Grunnarbeid Fundamentering og grunnarbeid

Grunnarbeid for tilbygg på fjellgrunn uten terrenginngrep

Grunnarbeid for tilbygget

Ventilasjon Mekanisk ventilasjon

Ventilasjon for bad, kjøkken og tekniske rom

Ventilasjonsanlegg

Vinduer Smale fasadevindu

🧱 Tre eller aluminium (ikke spesifisert)

Antall: 3

Smale vinduer mot nord, totalt 3 vinduer i tilbygget

Vinduer for naturlig lys i tilbygget

Tømrer Bærende konstruksjoner og innvendige vegger

🧱 Tre

Tømrerarbeid for bærende konstruksjoner og innvendige vegger

Tømrerarbeid i tilbygget

Dører Ytterdører

Antall: 7

Dører til stue, soverom, bad, gang, kjøkken, vaskerom og teknisk rom

Ytterdører og innerdører i tilbygget

Fasade Kledning

🧱 Royalimpregnert tre

Kledning i natur- eller fjellgrå nyanse

Ytterkledning for tilbygget til fritidsboligen

Gulv Innvendige gulv

Gulv i stue, soverom, bad, gang, kjøkken, vaskerom og teknisk rom

Innvendige gulvflater

VVS Sanitærinstallasjoner

VVS-installasjoner for bad, vaskerom og teknisk rom

VVS for sanitær og tekniske funksjoner

Terrasse Terrasse

Antall: 1

Terrasse på 40 m² tilknyttet tilbygget

Utendørs terrasseareal

Bad Bad med våtromsstandard

Antall: 1

Bad på 6 m² med våtromsstandard

Bad i tilbygget

Tak Flatt tak

Antall: 1

Flatt tak med maksimal gesimshøyde 5,0 meter, takvinkel maks 4 grader

Tak for tilbygget med flatt tak

Betong Fundament og plate

🧱 Betong

Betongfundament og plate for tilbygget

Betongkonstruksjon for tilbygget

Elektro Elektrisk anlegg

Elektrisk anlegg for belysning og strøm i tilbygget

Elektroinstallasjoner

Vinduer Vanlige fasadevindu

🧱 Tre eller aluminium (ikke spesifisert)

Antall: 2

Vinduer i stue og kjøkken

Vinduer for oppholdsrom i tilbygget

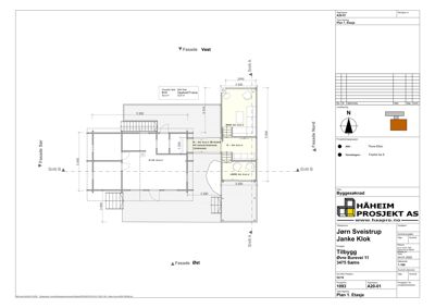
Plantegning

Takplan 0.0 m²

Etasje 0 0.0 m²

Rom Areal Vinduer Dører

Tilbygg 120.5 m²

Etasje 1 120.5 m²

Rom Areal Vinduer Dører
Stue 101 36.5 m² 1 2
Soveværelse 102 12.5 m² 1 1
Bad 103 6.0 m² 0 1
Gang 104 15.0 m² 0 2
Kjøkken 105 10.0 m² 1 1
Vaskerom 106 4.0 m² 0 1
Teknisk rom 107 3.0 m² 0 1
Terrasse 108 40.0 m² 0 0

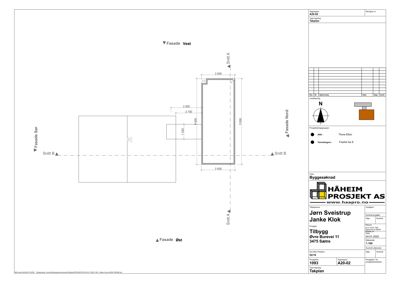
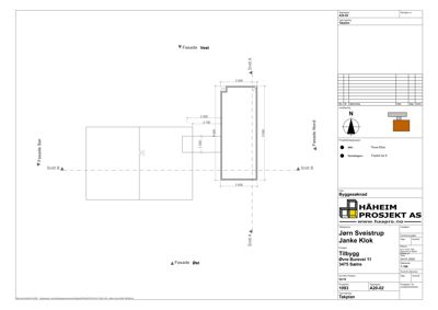
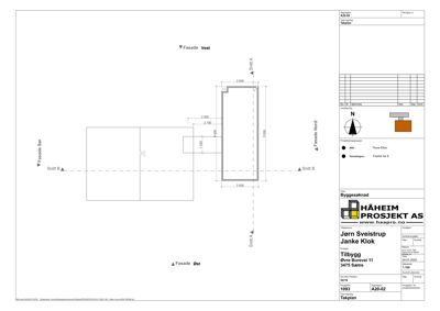
Fasader

Enebolig

Nord
Materiale
Tre
Taktype
Flatt tak
Vinduer
2
Dører
0
Synlige etasjer
1
Øst
Materiale
Tre
Taktype
Valmtak
Vinduer
4
Dører
1
Synlige etasjer
1
Sør
Materiale
Tre
Taktype
Flatt tak
Vinduer
2
Dører
1
Balkonger
1
Synlige etasjer
2
Vest
Materiale
Tre
Taktype
Flatt tak
Vinduer
1
Dører
2
Balkonger
1
Synlige etasjer
2

Hendelser

07.04.2026 352/18 Tilbygg fritidsbolig - Søknad om ferdigattest ferdigattest
25.03.2026 352/18 Tillatelse til tiltak uten ansvarsrett - Tilbygg fritidsbolig - Manglende ferdigattest eller midlertidig brukstillatelse ferdigattest
24.08.2020 352/18 Uttalelse fra landbrukskontoret - Tilbygg til fritidsbolig
24.08.2020 352/18 Komplettering - Tilbygg til fritidsbolig
05.08.2020 352/18 Tillatelse til tiltak uten ansvarsrett - Tilbygg fritidsbolig byggetillatelse
10.07.2020 352/18 Behov for flere opplysninger - tilbygg til fritidsbolig
01.07.2020 352/18 Forespørsel om mangelfull søknad - Tilbygg fritidsbolig søknad
24.06.2020 352/18 Foreløpig svar på søknad om tillatelse til tiltak uten ansvarsrett - tilbygg til fritidsbolig søknad
17.04.2020 352/18 Kvitteringsbrev - Tilbygg fritidsbolig
17.04.2020 352/18 Søknad om tilbygg fritidsbolig søknad