Extension Ferdigattest Fritidsbolig

Tilbygg og riving på fritidsbolig, Elgåsen 132, Sjusjøen

📍 Øyungen 1 , 2387 BRUMUNDDAL

Nøkkelinfo

Sakstype
Tilbygg
Bygningstype
Fritidsbolig
Bruksareal
79 m²
Boenheter
1
Kommune
Ringsaker
Fylke
Innlandet
Gnr / Bnr
527 / 1
Saksnummer
23/20819
Fase
Ferdigattest

Om byggesaken

Ny tilbygg på 70 m² BRA oppføres på en eksisterende fritidsbolig på Elgåsen 132, Sjusjøen, samtidig som 62 m² av den gamle hytta rives. Tilbygget inneholder blant annet kjøkken og bad uten innlagt vann, med forbrenningstoalett. Bygget er i én etasje med saltak og trekledning, og har totalt 79 m² BRA etter utvidelsen. Det er installert tett tank for avløpsanlegg, og bygget har pipe. Prosjektet inkluderer grunn- og terrengarbeider, mur- og betongarbeider, tømrerarbeider og montering av pipe/ildsted. Bygget har flere vinduer fordelt på fasadene, og dører i tilbygg og eksisterende del. Tiltaket er ferdigattestert og godkjent av kommunen.

Produkter og materialer

Bad Bad med forbrenningstoalett

Antall: 1

Bad på 6,1 m² uten innlagt vann, med forbrenningstoalett eller tilsvarende løsning

Bad i tilbygg uten innlagt vann, med miljøvennlig toalettløsning

Grunnarbeid Grunn- og terrengarbeider

Grunnarbeider for tilbygg og riving, inkludert utstikking og terrengtilpasning

Fasade Trekledning

🧱 Tre

Trekledning på alle fasader

Vinduer Fasadevindu

🧱 Tre med 3-lags glass

Antall: 14

Vinduer fordelt på alle fasader, totalt 14 stk, i trekledning med 3-lags energiglass

Tømrer Tømrerarbeider

🧱 Tre

Utført av selvbygger med lang erfaring

Tømrerarbeider for oppføring av tilbygg og riving av eksisterende del

Pipe Murpipe

🧱 Mur

Antall: 1

Pipe montert i bygget

Betong Fundament og murarbeid

Mur- og betongarbeider for fundament og grunnmur

Dører Ytterdør i tre

🧱 Tre

Antall: 4

Ytterdører i tre, inkludert dør i tilbygg og eksisterende del

Kjøkken Kjøkken uten innlagt vann

Antall: 1

Kjøkken i tilbygg uten innlagt vann

Tak Saltak

🧱 Trekonstruksjon med taktekking

Antall: 1

Saltak i tre med taktekking over hele bygget

VVS Avløpsanlegg med tett tank

🧱 Tett tank 63 m³

Antall: 1

Tett tank for spillvann, volum redusert fra 93 til 63 m³, godkjent utslippstillatelse

Avløpsanlegg med tett tank for håndtering av avløpsvann fra bad og kjøkken uten innlagt vann

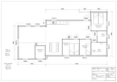
Plantegning

Hytte 79.0 m²

Etasje 1 79.0 m²

Rom Areal Vinduer Dører
Stue 101 35.2 m² 4 1
Soverom 1 102 8.4 m² 1 1
Soverom 2 103 5.6 m² 1 1
Soverom 3 104 8.7 m² 2 1
Bad 105 6.1 m² 0 1
Bod 106 3.1 m² 0 1

Fasader

Hytte

Nord
Materiale
Tre
Taktype
Saltak
Vinduer
3
Dører
0
Synlige etasjer
1
Sør
Materiale
Tre
Taktype
Saltak
Vinduer
3
Dører
0
Synlige etasjer
1
Vest
Materiale
Tre
Taktype
Saltak
Vinduer
3
Dører
1
Synlige etasjer
1
Øst
Materiale
Tre
Taktype
Saltak
Vinduer
1
Dører
0
Synlige etasjer
1

Hendelser

15.04.2026 Vedrørende ferdigattest - Riving av deler av fritidsbolig, oppføring av tilbygg, gnr 527 bnr 1 fnr 402, Elgåsen 132, Sjusjøen
13.04.2026 Vedrørende ferdigattest - Riving av deler av fritidsbolig, oppføring av tilbygg, gnr 527 bnr 1 fnr 402, Elgåsen 132, Sjusjøen
09.04.2026 Ferdigattest tilbygg hytte - Gbnr. 527/1/402 - Elgåsen 132 i PIHL
12.01.2026 Ferdigattest for avløpsanlegg - Riving av deler av fritidsbolig, oppføring av tilbygg, gnr 527 bnr 1 fnr 402, Elgåsen 132, Sjusjøen
17.12.2025 Behandling av søknad om ferdigattest oppføring av tilbygg kan ikke behandles da det mangler ferdigattest for utslippstillatelsen , gnr 527 bnr 1 fnr 402, Elgåsen 132, Sjusjøen
30.10.2025 Søknad om ferdigattest - Riving av deler av fritidsbolig, oppføring av tilbygg, gnr 527 bnr 1 fnr 402, Elgåsen 132, Sjusjøen
04.08.2025 Vedrørende røropplegg - Riving av deler av fritidsbolig, oppføring av tilbygg, gnr 527 bnr 1 fnr 402, Elgåsen 132, Sjusjøen
06.07.2023 Vedtak - Rive del av hytta og oppføre tilbygg - Gbnr. 527/1/402 - Elgåsen 132
07.06.2023 Innsendt søknad om tilbygg viser både kjøkken og bad uten innlagt vann - gnr 527 bnr 1 fnr 402 - Elgåsen 132
10.05.2023 Uttalelse fra grunneier - Riving av deler av fritidsbolig, oppføring av tilbygg, gnr 527 bnr 1 fnr 402, Elgåsen 132, Sjusjøen
10.05.2023 Riving av deler av fritidsbolig, oppføring av tilbygg, gnr 527 bnr 1 fnr 402, Elgåsen 132, Sjusjøen