Extension Ferdigattest Fritidsbolig

Tilbygg og riving av bod på fritidsbolig i Rødsteiga 7

📍 Rødsteiglia 7 , 3483 KANA

Nøkkelinfo

Sakstype
Tilbygg
Bygningstype
Fritidsbolig
Bruksareal
90 m²
Kommune
Asker
Fylke
Akershus
Gnr / Bnr
330 / 31
Saksnummer
20/6054
Fase
Ferdigattest

Om byggesaken

Ny tilbygg på fritidsbolig i Rødsteiga 7 med en samlet økning av bebygd areal (BYA) på 44 m². Tilbyggene plasseres mot øst og sør, med mønehøyde på 4,3 meter og gesimshøyde på 2,9 meter. Eksisterende bod på ca. 10 m² rives for å gi plass til tilbyggene. Den totale hytta får et bruksareal (BRA) på 90 m² og bebygd areal på 121 m² inkludert tilbygg. Prosjektet inkluderer også en terrasse på 21 m² over 0,5 meter over bakken. Bygningen har saltak og trekledning, og det er etablert nødvendige parkeringsplasser på terreng i henhold til krav.

Produkter og materialer

Elektro Elektrisk anlegg

Elektrisk installasjon i tilbygg og eksisterende hytte

Elektrisk anlegg for tilbygg og eksisterende hytte

Terrasse Overbygd terrasse

🧱 Tre

Antall: 21

Terrasse på 21 m² over 0,5 m over bakken

Terrasse i tre over 0,5 meter over bakken

VVS Vann og avløp

VVS-installasjoner for bad og WC i tilbygg og eksisterende hytte

VVS-installasjoner for sanitærrom

Fasade Trekledning

🧱 Tre

Trekledning på tilbygg og eksisterende hytte

Fasadebekledning i tre for tilbygg og eksisterende hytte

Isolasjon Vegger og tak

Isolasjon i vegger og tak i tilbygg

Isolasjon for varme og lyd i tilbygg

Vinduer Fasadevindu

Vinduer i tilbygg og eksisterende hytte, antall og type ikke spesifisert

Vinduer til fasader i tilbygg og eksisterende hytte

Tak Saltak

🧱 Taktekking ikke spesifisert

Saltak på eksisterende hytte, tilbygg har flatt tak

Taktekking for eksisterende saltak og flatt tak på tilbygg

Betong Fundament og støttemurer

Betongfundament for tilbygg og terrasse

Betongarbeid for fundament og eventuelle støttemurer

Gulv Innvendige gulv

Gulv i tilbygg og eksisterende hytte, type ikke spesifisert

Innvendige gulv i tilbygg og eksisterende hytte

Grunnarbeid Fundamentering og grunnmur

Grunnarbeid for tilbygg og terrasse

Fundamentering og grunnarbeid for tilbygg og terrasse

Tømrer Bygging av tilbygg

🧱 Tre

Tømrerarbeid for oppføring av tilbygg og riving av bod

Tømrerarbeid for tilbygg og riving av eksisterende bod

Dører Ytterdører

Ytterdører i tilbygg og eksisterende hytte, antall og type ikke spesifisert

Ytterdører til tilbygg og eksisterende hytte

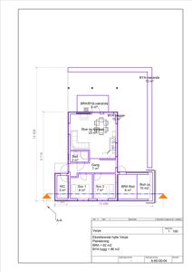
Plantegning

Eksisterende hytte Verpe 86.0 m²

Etasje 1 86.0 m²

Rom Areal Vinduer Dører
Stue og kjøkken 101 23.0 m² 1 2
Gang 102 7.0 m² 0 3
Bad 103 2.0 m² 0 1
WC 104 3.0 m² 0 1
Sov 1 105 6.0 m² 1 1
Sov 2 106 7.0 m² 1 1
BRA Bod 107 6.0 m² 0 1
Bod ca 108 10.0 m² 1 1
BYA-vægger 109 15.0 m² 0 0
BRA/BYA-væranda 110 6.0 m² 0 0
BYA-væranda 111 10.0 m² 0 0

Fasader

Eksisterende hytte

Nord
Materiale
Tre
Taktype
Saltak
Høyde
4.3 m
Mønehøyde
8.1 m
Vinduer
4
Dører
0
Synlige etasjer
1
Sør
Materiale
Tre
Taktype
Saltak
Høyde
4.3 m
Mønehøyde
8.1 m
Vinduer
0
Dører
4
Balkonger
1
Synlige etasjer
1

Hendelser

14.04.2026 330/31 Riving av eksisterende bod og bygging av nytt tilbygg - Manglende ferdigattest eller midlertidig brukstillatelse
13.04.2026 330/31 Rødsteiga 7 - Søknad om ferdigattest
07.10.2020 330/31 Tillatelse til tiltak uten ansvarsrett. Tilbygg
06.10.2020 330/31 Purring på svar på søknad - Riving av eksisterende bod og bygging av nytt tilbygg
22.09.2020 330/31 Kvitteringsbrev - Riving av eksisterende bod og bygging av nytt tilbygg
21.09.2020 330/31 Søknad om riving av eksisterende bod og oppføring av nytt tilbygg