Extension Ferdigattest Fritidsbolig

Tilbygg og riving av garasje på fritidsbolig, Romsdalsvegen 4866

📍 Romsdalsvegen 4866 , 2668 LESJASKOG

Nøkkelinfo

Sakstype
Tilbygg
Bygningstype
Fritidsbolig
Bruksareal
140 m²
Boenheter
1
Kommune
Lesja
Fylke
Innlandet
Gnr / Bnr
4 / 103
Saksnummer
2024/1066
Fase
Ferdigattest

Om byggesaken

Ny fritidsbolig med tilbygg på ca. 67,7 m² bebygd areal oppføres som påbygg og ombygging av eksisterende hytte på eiendommen. Totalt bebygd areal etter tiltaket blir 117,7 m² med et bruksareal på ca. 139,5 m² fordelt på to etasjer. Bygget har fire soverom, flere bad, kjøkken/stue, bod og loftstue. Det skal rives en eksisterende garasje på 20 m² og den gamle hytta, som ligger nærmere vassdraget, for å oppfylle vilkår om maksimalt bebygd areal i LNFR-området. Bygget har saltak med trekledning og tegl takmateriale på deler av taket. Det etableres ny adkomstveg i øst-vest retning. Flomvurdering dokumenterer at bygget ligger flomsikkert i henhold til TEK17. Tiltaket inkluderer også endring av innkjørsel og oppgradering av eksisterende hytte til helårsstandard.

Produkter og materialer

Gulv Innvendige gulv

Innvendige gulv i stue, soverom og bad

Gulvbelegg og overflater innvendig

Terrasse Terrasse/uteområde

🧱 Tre

Terrasse i tilknytning til fritidsboligen

Uteplass i tre

Dører Ytterdører og terrassedører

🧱 Tre/Glass

Antall: 10

Ytterdører og terrassedører i tre og glass, totalt ca. 10 stk

Ytterdører og terrassedører til inngang og uteområder

Elektro Elektrisk anlegg

Elektrisk anlegg for belysning og strøm

Elektriske installasjoner i bygget

VVS Sanitæranlegg og varmeanlegg

Sanitærinstallasjoner og vannbåren gulvvarme med varmepumpe berg/sjø

VVS-installasjoner for sanitær og varme

Tak Saltak med tegl

🧱 Tegl

Saltak med tegl på sørfasade, ellers saltak med tre

Tak med saltak og tegl på deler av taket

Betong Fundament og dekker

🧱 Betong

Betongfundament og dekker for ny fritidsbolig

Betongarbeider for fundament og gulv

Bad Bad og vaskerom

Antall: 3

Bad og vaskerom med sanitærutstyr og fliser

Bad og vaskeromsinnredning og overflater

Trapper Innvendig trapp

🧱 Tre

Antall: 1

Innvendig trapp mellom 1. og 2. etasje

Innvendig trapp i tre mellom etasjer

Grunnarbeid Grunnarbeid og fundamentering

Grunnarbeid for nytt tilbygg og ombygging, inkl. fundamentering

Grunnarbeid for ny bygningsmasse og tilbygg

Annet Adkomstveg

🧱 Grus/Grøfting

Etablering av ca. 40 meter lang og 4 meter bred adkomstveg

Ny adkomstveg til fritidsboligen

Maling Innvendig og utvendig maling

Maling av trepanel utvendig og innvendige overflater

Maling og overflatebehandling

Garasjeport Riving av garasje

Antall: 1

Riving av eksisterende garasje på 20 m²

Riving av gammel garasje

Fasade Trekledning

🧱 Tre

Trekledning på alle fasader

Yttervegger kledd med trepanel

Vinduer Fasadevindu

🧱 Tre/Aluminium

Antall: 15

Vinduer i fasader, antall ca. 15 fordelt på 2 etasjer

Fasadevinduer i tre og aluminium

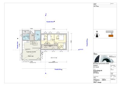
Plantegning

Enebolig 150.8 m²

Etasje 1 117.7 m²

Rom Areal Vinduer Dører
Soverom 101 6.9 m² 1 1
Soverom 102 7.8 m² 1 1
Soverom 103 12.2 m² 1 1
Soverom 104 5.7 m² 1 1
Stove/kjøkken 105 39.1 m² 2 1
Gang 106 3.1 m² 0 1
Bad 107 6.2 m² 0 1
Bad/vaskerom 108 4.8 m² 0 1
Bod 109 1.9 m² 0 1

Etasje 2 33.1 m²

Rom Areal Vinduer Dører
Loftstue 201 11.5 m² 0 1
Soverom 202 7.7 m² 1 1
Soverom 203 8.0 m² 1 1
Bad 204 5.9 m² 0 2

Fasader

Hytte

Vest
Materiale
Tre
Taktype
Saltak
Vinduer
3
Dører
1
Synlige etasjer
1
Nord
Materiale
Tre
Taktype
Saltak
Vinduer
5
Dører
1
Synlige etasjer
1
Øst
Materiale
Tre
Taktype
Saltak
Vinduer
2
Dører
1
Synlige etasjer
1
Sør
Materiale
Tre
Taktype
Saltak
Takmat.
Tegl
Vinduer
4
Dører
1
Synlige etasjer
1

Hendelser

21.04.2026 GID 4/103 - Søknad om ferdigattest
13.02.2026 Avslag - GID 4/103 - Midlertidig brukstillatelse
13.02.2026 Informasjon om saksbehandlingstid
13.02.2026 Sv: Informasjon om saksbehandlingstid
23.01.2026 GID 4/103 - Søknad om midlertidig brukstillatelse
25.04.2025 GID 4/103 - Endring tillatelse
13.02.2025 Godkjenning - GID 4/103 - Ett-trinns søknad
23.01.2025 SV: Spørsmål om dere ønsker sak på ny høring
12.12.2024 Bekreftelse på mottatt søknad - GID 4/103 - Ett-trinns søknad
26.11.2024 GID 4/103 - Ett-trinns søknad, tilbygg hytte, endring innkjørsel, riving av garasje