Extension Rammetillatelse Fritidsbolig

Tilbygg, rivning og garasje på fritidsbolig, Rundtjønna 20

📍 Rundtjønna 20 , 7375 RØROS

Nøkkelinfo

Sakstype
Tilbygg
Bygningstype
Fritidsbolig
Bruksareal
250 m²
Boenheter
1
Kommune
Røros - Rosse
Fylke
Trøndelag - Trööndelage
Gnr / Bnr
58 / 107
Saksnummer
2026/587
Fase
Rammetillatelse

Om byggesaken

Prosjektet omfatter rivning av en eldre del av en fritidsbolig på 48,4 m², oppføring av et nytt tilbygg på 104,5 m² i samme byggestil med stavlaft og torvtak, samt oppføring av en ny garasje på 25 m². Eksisterende anneks (13,4 m²) og uthus (11,6 m²) flyttes til ny plassering på tomten med nytt fundament. Totalt bebygd areal etter tiltaket blir 250 m², fordelt på hovedhytte, garasje/uthus og anneks, innenfor reguleringsplanens rammer. Bygget har saltak med sedumtakmateriale, utvendig kledning i tre og fasadestein på enkelte partier. Innvendig inneholder tilbygget flere rom som soverom, bad, kontor, stue/kjøkken og bod. Tiltaket inkluderer også oppgradering av takkonstruksjon og integrering av eksisterende bygningsdeler, samt tekniske installasjoner som sanitær og murarbeid i våtrom.

Produkter og materialer

Mur Murarbeid i våtrom og grunnmur

Murarbeid i våtrom og grunnmur, inkludert fasadestein

Murarbeid for våtrom og grunnmur

Vinduer Fasadevindu i tre

🧱 Tre

Antall: 14

Vinduer i samme stil som eksisterende hytte, inkludert 8 vinduer på fasade vest og 2 på nordfasade

Vinduer for nytt tilbygg og oppgradering

Dører Ytterdører i tre

🧱 Tre

Antall: 7

Ytterdører i samme stil som eksisterende, inkludert gjenbruk av eksisterende skyvedør om mulig

Dører for nytt tilbygg og oppgradering

Betong Plasstøpte betongfundamenter

🧱 Betong

Nye fundamenter for flytting av uthus og anneks, samt fundament for nytt tilbygg

Fundamenter for bygg og flyttede bygg

Fasade Utvendig kledning og fasadestein

🧱 Tre og fasadestein

Utvendig kledning i tre, tilsvarende eksisterende, fasadestein på vegger på mellombygg og grunnmur

Kledning og fasadestein for nytt tilbygg og oppgradering av eksisterende fasade

Tømrer Trekonstruksjoner og montering

🧱 Tre

Tømrerarbeid for nytt tilbygg, flytting av uthus og anneks, montering av trekonstruksjoner

Tømrerarbeid for bygging og flytting

VVS Sanitærinstallasjoner

Sanitærinstallasjoner i nytt tilbygg og oppgradering av eksisterende bad

VVS-installasjoner for bad og vaskerom

Bad Våtromsinnredning

Antall: 3

Tre bad/vaskerom i tilbygget og eksisterende del, inkludert murarbeid og sanitærinstallasjoner

Innredning og tekniske installasjoner for bad

Grunnarbeid Veg- og grunnarbeider

Grunnarbeider for fundamenter og flytting av bygg, utført av Gullikstad Maskin AS

Grunnarbeid og vegarbeid for byggeprosjektet

Tak Saltak med sedumtak

🧱 Sedum torvtak

Saltak med sedumtakmateriale, gjenbruk av torvtak fra del som rives hvis mulig

Taktekking for nytt tilbygg og oppgradering av eksisterende takkonstruksjon

Gulv Innvendige gulvflater

Gulv i tilbygget og eksisterende del, ikke spesifisert materiale

Innvendige gulvflater i nytt og eksisterende bygg

Garasjeport Garasjeport til ny garasje

Antall: 1

Garasje på 25 m² i samme stil som øvrig bebyggelse

Garasjeport for ny garasje

Elektro Elektriske installasjoner

Nye stikkontakter og elektriske installasjoner i tilbygget

Elektroarbeid for nytt tilbygg

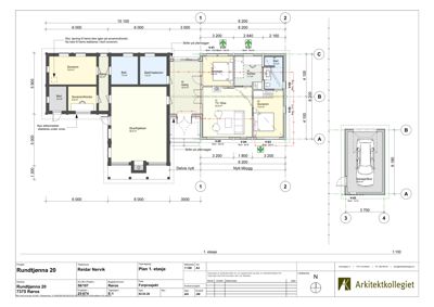
Plantegning

Enebolig 210.4 m²

Etasje 1 210.4 m²

Rom Areal Vinduer Dører
TV-Stue 01 22.9 m² 1 1
Soverom 02 13.0 m² 1 1
Bad 03 5.5 m² 0 1
Kontor 04 7.7 m² 1 1
Soverom 05 8.4 m² 1 1
Gang 06 15.0 m² 0 2
Soverom 09 12.6 m² 1 1
Soverom/Kontor 10 6.5 m² 1 1
Bod 11 4.0 m² 1 1
Bad 12 7.0 m² 0 1
Bad/Vaskerom 13 7.0 m² 0 1
Stue/Kjøkken 14 39.0 m² 2 1

Fasader

Enebolig

Vest
Materiale
Tre
Taktype
Saltak
Takmat.
Sedum
Vinduer
8
Dører
1
Synlige etasjer
1
Nord
Materiale
Tre
Taktype
Saltak
Takmat.
Sedum
Vinduer
2
Dører
0
Synlige etasjer
1

Hytte

Nord
Materiale
Tre
Taktype
Saltak
Vinduer
3
Dører
1
Synlige etasjer
1
Sør
Materiale
Tre
Taktype
Saltak
Vinduer
3
Dører
1
Synlige etasjer
1

Hendelser

16.04.2026 Vedtak i byggesak – endringstillatelse – Rundtjønna 20 – gbnr. 58/107
15.04.2026 Søknad om endring av gitt tillatelse eller godkjenning - gbnr. 58/107 - Rundtjønna 20
13.04.2026 Vedtak i byggesak – tilbygg og endring fritidsbolig – Rundtjønna 20 – gbnr. 58/107
09.04.2026 Foreløpig svar
09.04.2026 Søknad om tillatelse i ett trinn