Extension Soeknad Fritidsbolig

Tilbygg med bad på fritidsbolig, Skjelsbusundet 287

📍 Skjelsbusundet 287 , 1684 VESTERØY

Nøkkelinfo

Sakstype
Tilbygg
Bygningstype
Fritidsbolig
Bruksareal
87 m²
Boenheter
1
Kommune
Hvaler
Fylke
Østfold
Gnr / Bnr
46 / 66
Saksnummer
2026/532
Fase
Søknad

Om byggesaken

Ny tilbygg på ca. 25 m² på nordside av eksisterende fritidsbolig på Skjelsbusundet 287, plassert lavere i terrenget med skråtak som trappes ned for å tilpasse landskapet. Tilbygget inneholder et nytt baderom på 4,2 m² som kobles til kommunalt VA-anlegg. Eksisterende uthus rives for å samle bebyggelsen i én bygning. Fasaden på eksisterende bygg endres med ny matt taktekking og naturfarget panel, samt forlenget takutstikk for bedre terrengtilpasning og skygge på vinduer. Terrassen på sjøsiden byttes ut med en mer terrengtilpasset løsning. Totalt bruksareal etter utvidelse er ca. 87 m² BYA og 71 m² BRA.

Produkter og materialer

Bad Baderomsinnredning

Antall: 1

Nytt bad på 4,2 m² med tilkobling til kommunalt VA-anlegg

Fullt utstyrt bad i tilbygget med vann- og avløpsinstallasjoner

Elektro Sikringsskap og elektrisk anlegg

Antall: 1

Nytt sikringsskap og oppgraderte stikkontakter og lamper

Elektrisk oppgradering i eksisterende bygg

VVS VA-tilkobling

Antall: 1

Tilkobling av bad til kommunalt vann- og avløpsanlegg

VA-installasjon for nytt bad i tilbygget

Fasade Panel

🧱 Naturfarget trepanel

Naturfarget panel på eksisterende og nytt tilbygg

Utvendig kledning i naturfarget trepanel for fasadeendring og tilbygg

Terrasse Terrasse tilpasset terreng

Antall: 1

Ny terrasse på sjøsiden, tilpasset terreng og landskap

Terrasse med bedre terrengtilpasning enn eksisterende

Grunnarbeid Terrengtilpasning

Tilbygg plassert lavere i terrenget, terrengtilpasset terrasse på sjøsiden

Grunnarbeid for tilpasning av tilbygget og ny terrasse til terreng

Tømrer Bygningskonstruksjon

🧱 Bindingsverk i tre

Tilbygg i bindingsverk med saltak, rivning av uthus

Tømrerarbeid for tilbygg og rivning

Dører Ytterdører

Antall: 3

Dører i fasader, inkludert terrassedør

Ytterdører i eksisterende bygg og tilbygg

Riving Uthus

Antall: 1

Riving av eksisterende uthus for å samle bebyggelsen i ett volum

Fjerning av uthus på naboeiendom for å samle bebyggelsen

Vinduer Fasadevindu

🧱 Tre eller aluminium (ikke spesifisert)

Antall: 9

Eksisterende vinduer beholdes og nye vinduer i tilbygget, totalt 9 vinduer i fasader

Vinduer i fasader på eksisterende bygg og tilbygg

Tak Saltak med taktekking

🧱 Matt taktekking (antatt asfaltpapp eller tilsvarende)

Ny matt taktekking på eksisterende bygg og tilbygg, takutstikk forlenget

Saltak med matt taktekking og forlenget takutstikk for bedre terrengtilpasning

Isolasjon Bygningsisolasjon

Isolasjon i vegger og tak iht. dagens krav (antatt)

Isolasjon i nytt tilbygg og oppgradering av eksisterende bygg

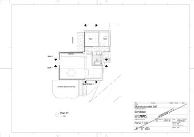
Plantegning

Enebolig 32.7 m²

Etasje 1 32.7 m²

Rom Areal Vinduer Dører
Soverom 7 9.2 m² 0 1
Soverom 2 6.3 m² 0 1
Bad 3 4.2 m² 0 1

Fasader

Enebolig

Nord
Materiale
Mur
Taktype
Saltak
Høyde
6.5 m
Mønehøyde
8.2 m
Vinduer
3
Dører
1
Synlige etasjer
2
Sør
Materiale
Mur
Taktype
Saltak
Høyde
6.5 m
Mønehøyde
8.2 m
Vinduer
2
Dører
1
Synlige etasjer
2
Øst
Materiale
Tre
Vinduer
3
Dører
1
Synlige etasjer
1
Vest
Materiale
Tre
Vinduer
1
Dører
0
Synlige etasjer
1

Hendelser

09.04.2026 Bestilling forhåndskonferanse - tilbygg - bad - fritidsbolig - 46/66 - Skjelsbusundet 287
17.03.2026 Forhåndskonferanse - tilbygg - bad - fritidsbolig - 46/66 - Skjelsbusundet 287