Extension Soeknad Fritidsbolig

Tilbygg og riving med renseanlegg i Skjøttelvikveien 74, Holmsbu

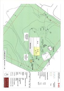
📍 Skjøttelvikveien 74 , 3484 HOLMSBU

Nøkkelinfo

Sakstype
Tilbygg
Bygningstype
Fritidsbolig
Bruksareal
43 m²
Boenheter
1
Kommune
Asker
Fylke
Akershus
Gnr / Bnr
329 / 50
Saksnummer
25/4227
Fase
Søknad

Om byggesaken

Ny tilbygg på 42,8 m² til eksisterende fritidsbygg med tilhørende markterrasse på 31,5 m². Det skal rives en mindre bygning på 7 m² og deler av eksisterende fritidsbolig. Prosjektet inkluderer teknisk oppgradering av renseanlegg for vann og avløp med installasjon av et biologisk/kjemisk minirenseanlegg (Uponor Clean II) under terreng, med tilhørende slamsikringskum og infiltrasjonsflate. Renseanlegget er dimensjonert for 10 personekvivalenter og oppfyller krav til utslippsreduksjon. Bygget er i hovedsak i tre med valmtak tekket med tegl. Prosjektet omfatter også oppdatering av fasader og utomhusplan med nye rørføringer og plassering av renseanlegg.

Arbeidsomfang

- Riving av eksisterende bygning på tunet (ca 7 m²) - Tilbygg til fritidsbolig med samlet areal på 42,8 m² inkludert markterrasse - Ny anleggelse av VA-rør og renseanlegg (teknisk oppgradering) - Endring av fasade for å integrere nytt bygg med eksisterende

Produkter og materialer

Fasade Trepanel fasade

🧱 Tre

Fasade i tre på tilbygg og eksisterende bygg, med oppdaterte fasadetegninger for hovedbygg og anneks.

Fasadearbeider med trepanel på tilbygg og eksisterende bygg.

Grunnarbeid Riving av mindre bygg

Riving av eksisterende bygning på 7 m² og deler av fritidsbolig i tilknytning til tunet.

Riving av mindre bygg for å gi plass til tilbygg og oppgradering.

Dører Ytterdører i tre

🧱 Tre

Antall: 6

Ytterdører i tilbygg og eksisterende bygg, inkludert dør til teknisk rom og markterrasse.

Dører til tilbygg og eksisterende bygg.

Elektro Elektriske installasjoner for renseanlegg

Elektriske installasjoner for drift og overvåking av renseanlegg, inkludert trådløst alarmsystem.

Elektroinstallasjoner for renseanlegg og tilbygg.

VVS Minirenseanlegg biologisk/kjemisk

🧱 Polyetylen (PE)

Antall: 1

Uponor Clean II minirenseanlegg med slamavskiller, biologisk rensetrinn, kjemisk fellingsmiddel, trådløst alarmsystem, dimensjonert for 10 personekvivalenter, med slamsikringskum og infiltrasjonsflate på minimum 20 m² fordelt på 2 spredegrøfter.

Biologisk/kjemisk minirenseanlegg for avløpsvann med tilhørende tekniske installasjoner og overvåkingssystem.

Tak Valmtak med teglstein

🧱 Tegl

Valmtak tekket med teglstein på tilbygg og eksisterende bygg.

Taktekking med teglstein på nytt tilbygg og eksisterende bygg.

Vinduer Fasadevindu i tre

🧱 Tre

Antall: 7

Vinduer i eksisterende og tilbygg, antatt trevinduer i fasade mot øst, nord, syd og vest.

Vinduer til tilbygg og eksisterende bygg.

Grunnarbeid Grunnarbeid for tilbygg og renseanlegg

Grunnarbeid for tilbygg på 42,8 m² og nedgraving av renseanlegg med slamsikringskum og infiltrasjonsflate på minimum 20 m² fordelt på 2 spredegrøfter.

Grunnarbeid for fundamentering av tilbygg og installasjon av renseanlegg under terreng.

Tømrer Tilbygg i tre med valmtak

🧱 Tre

Tilbygg på 42,8 m² med tilhørende markterrasse på 31,5 m², utført i trekonstruksjoner med valmtak tekket med tegl.

Oppføring av tilbygg og terrasse i tre til eksisterende fritidsbygg.

VVS Sanitærinstallasjoner

Sanitærinstallasjoner knyttet til tilbygg og oppgradering av VA-anlegg.

Sanitærinstallasjoner i tilbygg og eksisterende bygg.

Utendørs Markterrasse

🧱 Tre

Markterrasse på 31,5 m² knyttet til tilbygg.

Oppføring av markterrasse i tre.

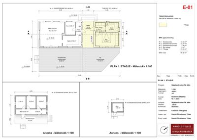
Plantegning

Enebolig 126.1 m²

Etasje 1 98.4 m²

Rom Areal Vinduer Dører
Stue 101 24.5 m² 3 1
Kjøkken 102 8.5 m² 0 1
Sov. 1 103 5.5 m² 1 1
Gang 104 3.2 m² 0 2
Apent gang 105 13.0 m² 0 1
Gard. Gang 106 4.1 m² 0 1
Sov. 2 107 13.5 m² 1 1
Bad 108 5.3 m² 0 1
Gard. Gang 109 23.6 m² 1 2
Teknisk rom 110 31.5 m² 0 1

Etasje 0 27.7 m²

Rom Areal Vinduer Dører
Sov. 1 001 5.5 m² 1 1
Sov. 2 002 5.2 m² 1 1
Sov. 3 003 5.5 m² 1 1
Gang 004 6.6 m² 0 1
Markterrassse 005 12.5 m² 0 0
Sov. 006 3.8 m² 0 1
Gang 007 1.4 m² 0 1

Fasader

Bad

Øst
Materiale
Tre
Taktype
Valmtak
Takmat.
Tegl
Høyde
2.5 m
Mønehøyde
4.5 m
Vinduer
0
Dører
1
Synlige etasjer
1
Nord
Materiale
Tre
Taktype
Valmtak
Takmat.
Tegl
Høyde
2.5 m
Mønehøyde
4.5 m
Vinduer
0
Dører
0
Synlige etasjer
1
Vest
Materiale
Tre
Taktype
Valmtak
Takmat.
Tegl
Vinduer
0
Dører
0
Synlige etasjer
1
Sør
Materiale
Tre
Taktype
Valmtak
Takmat.
Tegl
Vinduer
1
Dører
0
Synlige etasjer
1

Eksisterende 1 Soverom

Nord
Materiale
Tre
Taktype
Valmtak
Høyde
2.0 m
Mønehøyde
2.5 m
Vinduer
0
Dører
1
Synlige etasjer
1

Hendelser

07.04.2026 329/50 Skjøttelvikveien 74 - Oversendelse utslippstillatelse
25.02.2026 329/50 Skjøttelvikveien 74 - Supplerende opplysninger
02.02.2026 329/50 Skjøttelvikveien 74 - Supplering av søknad søknad
05.01.2026 329/50 Skjøttelvikveien 74 - Mangelfull søknad søknad
10.12.2025 329/50 Skjøttelvikveien 74 - Søknad om tillatelse i ett trinn - Tilbygg, riving og teknisk oppgradering av renseanlegg for VA søknad