Rendering
3D-visualisering (rendering) av en husfasade med to perspektiver og et sideperspektiv.
1 / 5
Extension
UnderBehandling
Fritidsbolig
Tilbygg til fritidsbolig i Skuggeligvegen 89, Ustaoset
📍 Skuggelivegen 89 , 3593 USTAOSET
Nøkkelinfo
- Sakstype
- Tilbygg
- Bygningstype
- Fritidsbolig
- Bruksareal
- 146 m²
- Boenheter
- 1
- Kommune
- Hol
- Fylke
- Buskerud
- Gnr / Bnr
- 5 / 88
- Saksnummer
- 2025/1628
- Fase
- Under behandling
Om byggesaken
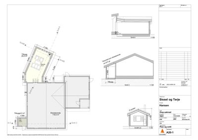
Ny tilbygg på totalt 33,5 m² BYA til eksisterende fritidsbolig på 116,5 m², som gir en samlet BYA på 150 m². Tilbygget består av en stue på 23,6 m² og en bod på 2,8 m², med takvinkel på ca. 22,5 grader som eksisterende bygg. Bygget ligger på snaufjell ca. 1046 moh i etablert hytteområde, med offentlig avløp og borebrønn for vannforsyning. Tilbygget er plassert slik at det ikke øker overnattingskapasiteten, og har liten påvirkning på landskap og villreinområde. Bygget har 1 vindu og 2 dører i tilbygget.
Produkter og materialer
Grunnarbeid
Fundamentering og grunnarbeid
Antall: 1
Grunnarbeid for tilbygg på snaufjell, ca 1046 moh
Gulv
Innvendig gulv
Antall: 1
Innvendig gulv i tilbygget
Isolasjon
Vegger og tak
Antall: 1
Isolasjon for vegger og tak i tilbygget
Maling
Utvendig og innvendig maling
Antall: 1
Maling av utvendige og innvendige flater
VVS
Vannforsyning borebrønn
Antall: 1
Vannforsyning via borebrønn, ikke tilstrekkelig for slokkevann
Vannforsyning til hytta via borebrønn
Vinduer
Fasadevindu
Antall: 1
Ett fasadevindu i tilbygget
Elektro
Elektrisk installasjon
Antall: 1
Elektriske installasjoner for tilbygg
Dører
Ytterdører
Antall: 2
To dører i tilbygget, sannsynligvis ytterdører
Tømrer
Tilbygg konstruksjon
Antall: 1
Tømrerarbeid for oppføring av tilbygg på 33,5 m²
Tak
Saltak
Antall: 1
Takvinkel ca. 22,5 grader som eksisterende bygg
Tak med samme takvinkel som eksisterende hytte
Plantegning
Enebolig 146.0 m²
Etasje 1 146.0 m²
| Rom | Areal | Vinduer | Dører |
|---|---|---|---|
| Opphold 101 | 23.6 m² | 1 | 1 |
| Bod 102 | 2.8 m² | 0 | 1 |
Hendelser
20.04.2026
5/88/0/0 Tilbakemelding
26.03.2026
5/88/0/0 Tilbygg fritidsbolig, Skuggeligvegen 89 Ustalivegen 89 - Oversendelse av avgjørelse fra settestatsforvalter. Ber om ytterligere informasjon før klagen kan behandles.
12.03.2026
5/88/0/0 Vedtak
03.12.2025
5/88/0/0 Foreløpig melding om saksbehandlingstid
14.10.2025
5/88/0/0 Tilbygg fritidsbolig, Skuggeligvegen 89 Ustalivegen 89 - Oversendelse av klagesak for oppnevnelse av settestatsforvalter
15.09.2025
5/88/0/0 Tilbygg fritidsbolig, Skuggeligvegen 89 Ustalivegen 89 - Informasjon om forsinket klagebehandling
08.07.2025
5/88/0/0 Tilbygg fritidsbolig, Skuggeligvegen 89 Ustalivegen 89 - Oversendelse av klage på vedtak og beslutning om utsatt iverksetting
07.07.2025
5/88/0/0 Klage på vedtak
17.06.2025
5/88/0/0 Tilbygg fritidsbolig, Skuggeligvegen 89 Ustalivegen 89, Dispensasjon - Melding om vedtak
03.06.2025
5/88/0/0 Vinterparkering Ustaoset
08.05.2025
5/88/0/0 Uttalelse Villreinnemnda
30.04.2025
5/88/0/0 Tilbakemelding - Statsforvalteren i Østfold, Buskerud, Oslo og Akerhus
02.04.2025
5/88 - Søknad om dispensasjon frå plankrav. Tilbygg til hytte i område vist som eksisterende fritidsbygg i arealdelen av kommuneplanen. Ustaoset. Ber om fråsegn
21.03.2025
5/88/0/0 Søknad om dispensasjon fra plankrav