Extension Rammetillatelse Fritidsbolig

Tilbygg og ombygging av fritidsbolig på Sørhuglo 292

📍 Sørhuglo 292 , 5413 HUGLO

Nøkkelinfo

Sakstype
Tilbygg
Bygningstype
Fritidsbolig
Bruksareal
110 m²
Boenheter
1
Kommune
Stord
Fylke
Vestland
Gnr / Bnr
66 / 32
Saksnummer
2026/163
Fase
Rammetillatelse

Om byggesaken

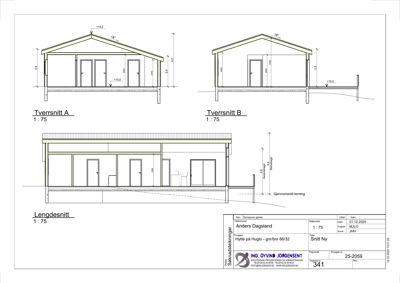
Tiltaket omfatter to tilbygg til en eksisterende fritidsbolig på Sørhuglo 292, med et samlet bruksareal på 110 m² inkludert bod. Tilbygget består av en større utvidelse på baksiden mot nordøst og en mindre utvidelse på forsiden mot sør. I tillegg utvides eksisterende terrasse mot sør og øst. Ombyggingen inkluderer vesentlige innvendige endringer og en justering av takkonstruksjonen slik at gavlen vender mot sjøen. Bygget får en mønehøyde på 4,8 meter og gesimshøyde på 3,6 meter, med tradisjonell trefasade og saltak. Planløsningen er tilrettelagt for universell utforming med trinnfri adkomst og funksjonelle rom, inkludert flere soverom og større oppholdsareal. Bygget ligger på en 1597 m² stor tomt i LNF-område, med god avstand til naboer og til fylkesveg 5042, hvor det er gitt dispensasjon fra byggegrense.

Produkter og materialer

Vinduer Store fasadevinduer

🧱 Tre eller aluminium

Antall: 9

Store vinduer i fasade mot sjøen for god utsikt og dagslys

Vinduer i fasade for optimal utsikt og lysinnslipp

VVS Rørleggertjenester

Utført av Søreide Rør AS, inkludert tilknytning til privat avløpsanlegg og septiktank

Rørleggerarbeid for sanitær og vann

Gulv Innvendige gulv

Gulv i oppholdsrom og soverom, type ikke spesifisert

Innvendige gulvflater i tilbygg og ombygde arealer

Fasade Trepanel

🧱 Tre

Tradisjonell trefasade med saltak

Fasade i tre med saltak, gesimshøyde 3,6 m, mønehøyde 4,8 m

Grunnarbeid Fundamentering og grunnmur

🧱 Betong

Fundament på kote +10,0 meter, dokumentasjon på plassering kreves før betongarbeid

Grunnarbeid og fundamentering for tilbygg

Terrasse Utvidet terrasse

🧱 Tre

Terrasse utvidet mot sørvest og øst, ca. 31 m²

Utvidelse av eksisterende terrasse for bedre uteopphold

Bad Baderomsinnredning

Bad med sanitærutstyr iht. TEK17

Bad med nødvendig utstyr og overflater

Overvann Overvannshåndtering

Overvann ledes til terreng og infiltreres i vegetasjon på egen tomt

Tiltak for håndtering av overvann på tomt

Isolasjon Bygningsisolasjon

Isolasjon iht. TEK17 krav

Isolasjon i vegger, tak og gulv for energikrav

Elektro Elektrisk installasjon

Elektrisk anlegg iht. TEK17

Elektriske installasjoner for belysning og strøm

Tømrer Tømrerarbeid

Utført delvis som selvbygger, inkludert grunnarbeid og tømrerarbeid

Tømrerarbeid for tilbygg og ombygging

Dører Ytterdører

🧱 Tre eller glass

Antall: 6

Dører til terrasser og innganger

Ytterdører til oppholdsrom og terrasser

Tak Saltak

🧱 Takstein eller lignende

Saltak med justert takkonstruksjon, gavl vendt mot sjøen

Tak med saltkonstruksjon og moderat heving for romhøyde

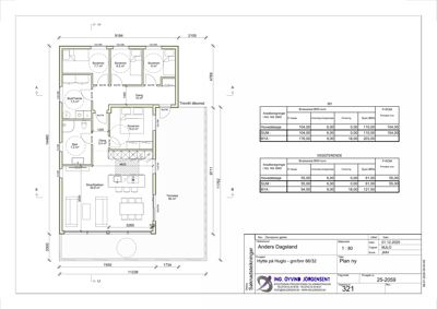
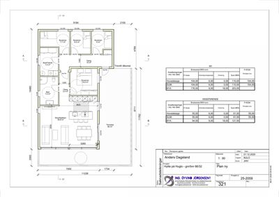
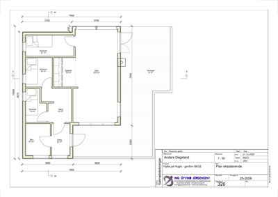
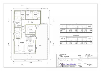
Plantegning

Enebolig 104.0 m²

Etasje 1 104.0 m²

Rom Areal Vinduer Dører
Stue/Kjøkken 101 39.9 m² 1 2
Bad 102 7.5 m² 0 1
Gang 103 3.4 m² 0 2
Soverom 104 10.5 m² 1 1
Gang 105 10.0 m² 0 3
Soverom 106 7.7 m² 1 1
Soverom 107 6.5 m² 1 1
Soverom 108 6.0 m² 1 1
Bod/Teiknik 109 7.5 m² 0 1
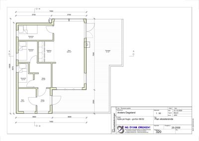
Soverom Soverom 5.7 m² 0 1
Bad Bad 4.4 m² 0 1
Gang Gang 3.2 m² 0 2
Kjøkken Kjøkken 3.6 m² 1 1
Stue Stue 22.6 m² 0 1
Terrasse Terrasse 31.0 m² 0 1

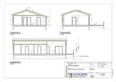
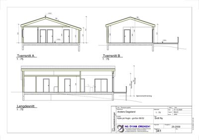
Fasader

Hytte

Nord
Materiale
Tre
Taktype
Flatt tak
Vinduer
3
Dører
0
Synlige etasjer
1
Sør
Materiale
Tre
Taktype
Saltak
Vinduer
3
Dører
0
Balkonger
1
Synlige etasjer
1
Vest
Materiale
Tre
Taktype
Saltak
Høyde
3.6 m
Vinduer
0
Dører
1
Balkonger
1
Synlige etasjer
1
Øst
Materiale
Tre
Taktype
Saltak
Vinduer
3
Dører
0
Balkonger
1
Synlige etasjer
1
Aust
Materiale
Tre
Taktype
Saltak
Vinduer
3
Dører
0
Balkonger
1
Synlige etasjer
1

Hendelser

15.04.2026 Matrikkelføring tilbygg til eksisterande fritidsbustad, Sørhuglo 292 - 66/32
14.04.2026 Vedtak til klagevurdering - 66/32 - Tilbygg og ombygging fritidsbustad, Sørhuglo 292
13.04.2026 Løyve til tiltak i eitt trinn - Dispensasjon- 66/32 - Tilbygg og ombygging fritidsbustad, Sørhuglo 292
09.04.2026 Spørsmål om status i byggesak 2026/163 - 66/32 - Tilbygg og ombygging fritidsbustad, Sørhuglo 292
09.04.2026 Dialog, Vedr. sak 2026/163
09.04.2026 Spørsmål om status i byggesak 2026/163 - 66/32 - Tilbygg og ombygging fritidsbustad, Sørhuglo 292
19.02.2026 Uttale - dispensasjon - fritidsbustad - gnr. 66 bnr. 32 - Huglo - Stord kommune
04.02.2026 Førespurnad om uttale, supplering - 66/32 - Tilbygg og ombygging fritidsbustad, Sørhuglo 292
04.02.2026 Avklaring BYA
04.02.2026 Førespurnad om uttale - 66/32 - Tilbygg og ombygging fritidsbustad, Sørhuglo 292
04.02.2026 Sørhuglo 292 Supplering av søknad 66/32
03.02.2026 Førebels svar - 66/32 - Tilbygg og ombygging fritidsbustad, Sørhuglo 292
01.02.2026 Sørhuglo 292 Supplering av søknad 66/32
20.01.2026 Førebels svar - 66/32 - Tilbygg og ombygging fritidsbustad, Sørhuglo 292
13.01.2026 Stadfesting av motteken søknad - 66/32 - Tilbygg og ombygning fritidbustad, Sørhuglo 292
11.01.2026 Søknad om løyve i eitt trinn - 66/32, Sørhuglo 292