Extension Ferdigattest Fritidsbolig

Tilbygg og terrasse på fritidsbolig, Berglibakken 6, Holmsbu

📍 Støaveien 17 , 3484 HOLMSBU

Nøkkelinfo

Sakstype
Tilbygg
Bygningstype
Fritidsbolig
Bruksareal
116 m²
Boenheter
1
Kommune
Asker
Fylke
Akershus
Gnr / Bnr
326 / 9
Saksnummer
20/2991
Fase
Ferdigattest

Om byggesaken

Ny tilbygg på fritidsbolig med et bruksareal på 52,7 m² og tilhørende terrasse på ca. 53 m². Tilbygget inkluderer en underetasje med ikke målverdig areal (takhøyde 1,89 m) og en hovedetasje. Bygget har saltak og tre som fasademateriale, med flere vinduer og dører fordelt på fasadene. Det er etablert stikkledninger og påkobling til offentlig vann- og avløpsnett. Terrassen er utvidet med ca. 2 meter og bygger 50 cm ut fra eksisterende. Bygget er tilpasset eksisterende terreng og hytte, med moderat dybde på terrassen mot sør. Det er én boenhet på eiendommen.

Arbeidsomfang

- Tilbygg til eksisterende fritidsbolig (hytte). - Etablering av stikkledninger og påkopling til offentlig vann- og avløpsnett (sanitærabonnement). - Terrengtilpasning og terrengendringer knyttet til nytt tiltak. - Utvidelse av eksisterende bebyggelse (detaljene om hva som bygges presiseres ikke i teksten, kun at det er et tilbygg).

Produkter og materialer

VVS Offentlig vann- og avløp

Etablering av stikkledninger og påkobling til offentlig VA-nett

VA-tilknytning for tilbygget

Betong Kjeller og gulv på grunn

🧱 Betong, armeringsnett

Kjeller med betonggulv, radonmembran, armeringsnett og isolasjon

Betongkonstruksjon for kjeller og gulv på grunn

Elektro Elektrisk installasjon

Elektrisk installasjon i tilbygget

El-installasjon for belysning og strøm

Tømrer Innvendige vegger og tak

🧱 Gipsplater

Innvendige vegger og tak med gipsplater

Innvendige konstruksjoner i tilbygget

Gulv Parkett og fliser

🧱 Parkett, fliser

Parkettgulv i oppholdsrom, fliser på bad og vaskerom

Innvendige gulvflater i tilbygget

Tak Saltak

🧱 Betongstein svart

Takisolasjon 150 mm, betongstein svart

Saltak med betongstein og isolasjon

Vinduer Fasadevindu

🧱 Tre/Aluminium

Antall: 8

Flere vinduer fordelt på fasader, inkludert 1 vindu i soverom i tilbygget

Fasadevindu i tilbygget og eksisterende hytte

Grunnarbeid Støttemur og fundamentering

🧱 Betong, Leca

Støttemur 2000x300x810 mm, fundamentering med Leca såleblokk og betong

Fundamentering og støttemur for tilbygget

Dører Ytterdører og balkongdører

🧱 Tre/Glass

Antall: 8

Ytterdører og dører til veranda/balkong i tilbygget og eksisterende hytte

Dører til inngang og veranda/balkong

Bad Sanitærutstyr og fliser

Bad med fliser og sanitærutstyr i tilbygget

Bad og vaskerom i tilbygget

Terrasse Treterrasse

🧱 Tre

Terrasse utvidet med ca. 2 meter, bygger 50 cm ut fra eksisterende

Utvidet terrasse rundt tilbygget

Isolasjon Vegger og tak

🧱 Mineralull

150 mm isolasjon i vegger og tak, inkludert påføring lekter isolert 50 mm

Isolasjon for vegger og tak i tilbygget

Fasade Tre kledning

🧱 Tre

Liggende kledning 19 mm, påført lekter og vindsperre

Ytterveggskledning i tre på tilbygg og eksisterende hytte

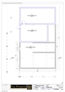
Plantegning

Tilbygg fritidsbolig 42.0 m²

Etasje 1 42.0 m²

Rom Areal Vinduer Dører
Stue 101 18.0 m² 0 0
Kjøkken 102 14.0 m² 0 0
Bad 103 2.5 m² 0 0
Bod 104 3.0 m² 0 0
Vaskerom 105 2.0 m² 0 0
Gang 106 2.5 m² 0 0
Bad 3 3.1 m² 0 1
Vf 4 2.7 m² 0 1
Kjøkken 5 11.9 m² 0 1
Sov 6 11.7 m² 1 1
Stue 7 21.3 m² 1 2
Veranda 8 6.3 m² 0 1
Bod 9 3.6 m² 0 2
Veranda 107 3.7 m² 0 0
Stue 108 45.9 m² 0 1
Bod 109 2.2 m² 0 1
Sov 110 8.0 m² 0 1
Sov 111 8.3 m² 0 1

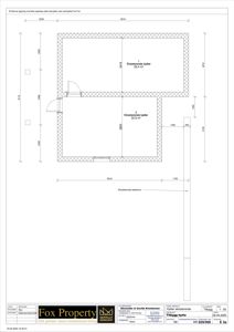
Kjeller 49.3 m²

Etasje 0 49.3 m²

Rom Areal Vinduer Dører
Eksisterende kjeller 1 26.4 m² 0 1
Eksisterende kjeller 2 22.9 m² 0 1
Ubrukbar kjelleren eksist. 001 26.4 m² 0 1
Ubrukbar kjelleren eksist. 002 22.8 m² 0 1
Ubrukbar kjelleren prosjekt. 003 43.8 m² 0 0

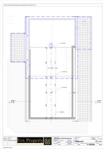
Fasader

Hytte

Øst
Materiale
Tre
Taktype
Saltak
Høyde
4.8 m
Mønehøyde
4.5 m
Vinduer
2
Dører
0
Balkonger
1
Synlige etasjer
1
Nord
Materiale
Tre
Taktype
Saltak
Høyde
6.7 m
Mønehøyde
4.5 m
Vinduer
2
Dører
0
Balkonger
1
Synlige etasjer
2
Vest
Materiale
Tre
Taktype
Saltak
Høyde
6.7 m
Mønehøyde
4.5 m
Vinduer
4
Dører
1
Balkonger
2
Synlige etasjer
2
Sør
Materiale
Tre
Taktype
Saltak
Høyde
6.7 m
Mønehøyde
4.5 m
Vinduer
4
Dører
2
Balkonger
1
Synlige etasjer
2

Hendelser

14.04.2026 326/9/44 Berglibakken 6 - Tilbygg fritidsbolig - Korrigert brev vedr. manglende ferdigattest
10.04.2026 326/9/44 Berglibakken 6 - Feil mottaker av e-post fra Fox Property AS
10.04.2026 326/9/44 Berglibakken 6 - Tilbygg fritidsbolig - Vedr. manglende ferdigattest
08.04.2026 326/9/44 Berglibakken 6 - Tilbakemelding på brev om manglende ferdigattest eller midlertidig brukstillatelse ferdigattest
08.04.2026 326/9/44 Berglibakken 6 - Oversendelse bilder
07.04.2026 326/9/44 - Tilbakemelding på brev om manglende ferdigattest eller midlertidig brukstillatelse ferdigattest
25.03.2026 326/9/44 Tillatelse til tiltak - Tilbygg fritidsbolig og etablering av stikkledninger/påkopling til offentlig VA-nett - Manglende ferdigattest eller midlertidig brukstillatelse ferdigattest
14.07.2020 326/9/44 Søkers kommentar vedrørende status - Tilbygg fritidsbolig
14.07.2020 326/9 feste nr 44 - Avstand fra høyspentlinje - Tilbygg fritidsbolig
10.07.2020 326/9/44 Spørsmål om byggeavstand høyspentlinje - Tilbygg fritidsbolig
10.07.2020 326/9/44 Tilbakemelding - Avventer godkjent sanitærabonnement - Tilbygg fritidsbolig
10.07.2020 326/9/44 - Tilsvar på brev - Tilbygg fritidsbolig
09.06.2020 326/9/44 Informasjon om saksbehandling - Tilbygg fritidsbolig
05.06.2020 326/9/44 - Informasjon om søknaden - Tilbygg fritidsbolig søknad
05.06.2020 326/9/44 - Søknaden har mangler - Tilbygg fritidsbolig søknad
02.06.2020 326/9 fnr.44 - Tilsvar på brev - Tilbygg fritidsbolig
29.05.2020 326/9 fnr.44 Tillatelse til tiltak - Tilbygg fritidsbolig og etablering av stikkledninger/påkopling til ofentlig VA-nett byggetillatelse
20.05.2020 326/9 fnr.44 Mangler ved sanitærabonnement - Tilbygg fritidsbolig
14.05.2020 326/9 fnr.44 Bilder av huset - Tilbygg fritidsbolig
14.05.2020 326/9 fnr.44 Supplerende dokumentasjon - Tilbygg fritidsbolig
24.04.2020 326/9 fnr.44 - Tegninger - Tilbygg fritidsbolig
24.04.2020 326/9 festenr. 44 Ufullstendig søknad - Tilbygg fritidsbolig søknad
14.04.2020 326/9 festenr. 44 Kvitteringsbrev - Tilbygg fritidsbolig
14.04.2020 326/9 fnr. 44 Søknad om tilbygg fritidsbolig søknad