Extension Ferdigattest Fritidsbolig

Tilbygg og anneks til fritidsbolig på Nesoddbakken 11, Svelvik

📍 Svelvikveien 1000 , 3060 SVELVIK

Nøkkelinfo

Sakstype
Tilbygg
Bygningstype
Fritidsbolig
Bruksareal
96 m²
Boenheter
1
Kommune
Drammen
Fylke
Buskerud
Gnr / Bnr
333 / 1
Saksnummer
21/21642
Fase
Ferdigattest

Om byggesaken

Ny tilbygg på 27,1 m² til eksisterende fritidsbolig og tilbygg på 12,3 m² til anneks på eiendommen Nesoddbakken 11 i Svelvik. Tilbygget til fritidsboligen inkluderer soverom, kjøkken og terrasse, mens tilbygget til annekset inneholder gang, tørrklosett og terrasse. Bygningene er utført i tre med pult- og valmtak, og fasadene har flere vinduer og dører. Totalt bebygd areal etter tiltaket er 95,6 m² på en tomt på 762 m². Tiltaket er plassert slik at det ikke er dominerende i landskapet og ikke vesentlig reduserer utsikt for naboer. Bygget er i én etasje med gesimshøyde på 3,1 m (fritidsbolig) og 2,9 m (anneks).

Produkter og materialer

Vinduer Fasadevindu

🧱 Tre eller aluminium (ikke spesifisert)

Antall: 12

Vinduer i fasader, antall fra tegningsanalyse

Vinduer til fritidsbolig og anneks, inkludert 3 vinduer på øst, 1 på nord, 3 på vest og 1 på sør fasade

Terrasse Terrasse med rekkverk

🧱 Tre

Terrasse mot nord og øst, delvis overbygget åpent areal på 5,5 m²

Terrasse tilbygg fritidsbolig og anneks

Tømrer Tømrerarbeid

Utførelse av tilbygg og fasadeendring

Tømrerarbeid for tilbygg og anneks

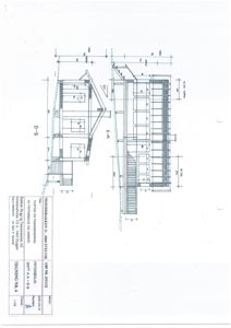
Tak Pulttak og valmtak

Pulttak på øst og vest fasade, valmtak på nord og sør fasade

Taktekking for tilbygg og anneks

Fasade Trepanel

🧱 Tre

Fasader i tre med pulttak og valmtak

Trepanel til fasader på fritidsbolig og anneks

Grunnarbeid Grunnarbeid og fundamentering

Grensepåvisning og kartforretning på grunn av usikre eiendomsgrenser

Grunnarbeid for tilbygg og anneks

Elektro Elektrisk anlegg

Elektrisitet som varmesystem

Elektrisk installasjon for oppvarming og strøm

Dører Ytterdører

Antall: 5

Dører i fasader, antall fra tegningsanalyse

Ytterdører til fritidsbolig og anneks

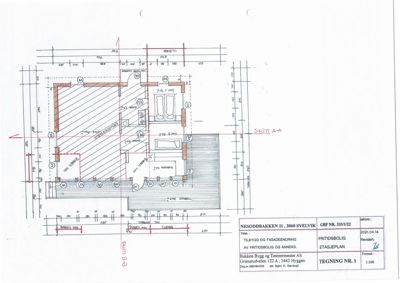
Plantegning

Fritidsbolig 100.0 m²

Etasje 1 100.0 m²

Rom Areal Vinduer Dører
Sov. 1 101 17.1 m² 0 1
Sov. 2 102 8.4 m² 0 1
Kjøkken 103 7.8 m² 0 1
Eksisterende 104 59.6 m² 4 1
Bodges inn 105 0.0 m² 0 1
Bodges inn 106 0.0 m² 0 1
Gang GANG 4.0 m² 0 2
Kjøkken KOKKEN 7.8 m² 1 1
Stue STUE 39.6 m² 4 2
Sov rom 1 SOV1 7.1 m² 0 1
Sov rom 2 SOV2 6.4 m² 1 1
Disposisjonsrom Disp. 9.8 m² 0 1
Tørreloft Tørreloft 3.0 m² 0 0

Fasader

Fritidsbolig

Øst
Materiale
Tre
Taktype
Pulttak
Høyde
6.5 m
Vinduer
3
Dører
0
Balkonger
1
Synlige etasjer
1
Nord
Materiale
Tre
Taktype
Valmtak
Vinduer
1
Dører
1
Balkonger
1
Synlige etasjer
1
Vest
Materiale
Tre
Taktype
Pulttak
Vinduer
3
Dører
0
Synlige etasjer
1
Sør
Materiale
Tre
Taktype
Valmtak
Vinduer
1
Dører
1
Synlige etasjer
1

Hendelser

14.04.2026 Nesoddbakken 11, søknad om ferdigattest
08.10.2021 Nesoddbakken 11, tillatelse til oppføring av tilbygg til fritidsbolig og anneks
23.09.2021 Nesoddbakken 11, søknad om dispensasjon
26.08.2021 Nesoddbakken 11, varsel om mulig avslag på søknad om tilbygg til fritidsbolig og anneks
21.08.2021 Nesoddbakken 11, melding om mottatt søknad
07.06.2021 Nesoddbakken 11 - søknad om tillatelse til tiltak
12.05.2021 Nesoddbakken 11 - Redegjørelse for merknader til Utbygging
12.05.2021 Nesoddbakken 11, nabomerknad til påbygg/tilbygg