Extension Ferdigattest Fritidsbolig

Tilbygg med garasje på fritidsbolig, Tveitasjøen 4

📍 Tveitasjøen 4 , 4235 HEBNES

Nøkkelinfo

Sakstype
Tilbygg
Bygningstype
Fritidsbolig
Bruksareal
201 m²
Boenheter
1
Kommune
Suldal
Fylke
Rogaland
Gnr / Bnr
113 / 56
Saksnummer
2023/432
Fase
Ferdigattest

Om byggesaken

Ny tilbygg på 87 m² BYA med garasje, bad, gang og soverom til eksisterende fritidsbolig på Tveitasjøen 4. Tilbygget er tilpasset terrenget med senket garasjedel for bedre innkjøring og harmonisk høyde i forhold til hovedbygget. Eksisterende bygningsmasse består av bolig fra 1931 og ombygd løe fra 1976. Etter utbygging blir samlet bebygd areal 201,3 m². Bygget har trekledning, flatt tak med tegl på hovedbygget og valmtak på tilbygg, med flere vinduer og dører i fasaden. Prosjektet er gjennomført med ansvarlige foretak for betong- og tømrerarbeid, og ferdigattest er gitt.

Produkter og materialer

Gulv Innvendige gulv

Standard gulv i tilbygg og garasje

Gulv i tilbygg og garasje

Vinduer Fasadevindu

🧱 Tre/aluminium rammer antatt

Antall: 8

4 vinduer på sørfasade, 4 vinduer på østfasade

Fasadevinduer i tilbygg og eksisterende bygg

Elektro Elektrisk anlegg

Elektrisk installasjon for tilbygg og garasje

Elektroinstallasjoner i tilbygg og garasje

Fasade Trekledning

🧱 Tre

Fasade i tre med rød farge på hovedbygget

Trekledning på eksisterende og nytt tilbygg

Bad Bad med sanitærutstyr

Antall: 1

Bad i tilbygget

Bad med nødvendige installasjoner i tilbygg

Ventilasjon Mekanisk ventilasjon

Ventilasjon i tilbygg og garasje

Ventilasjonssystem for tilbygg

VVS Vann, avløp og varme

VVS-installasjoner for bad og øvrige rom i tilbygg

VVS-installasjoner i tilbygg

Dører Ytterdører

🧱 Tre eller glassdører

Antall: 3

2 dører på sørfasade, 1 dør på østfasade

Ytterdører til tilbygg og eksisterende bygg

Grunnarbeid Terrengtilpasning

Senking av garasjedel i terrenget for bedre innkjøring

Grunnarbeid for tilpassing av garasje til terreng

Tømrer Bærende konstruksjoner og innvendig arbeid

Tømrerarbeid utført av Hebnes Tre AS og Byggefirma Kolbjørn Vagle AS

Tømrerarbeid for tilbygg, garasje og rehabilitering

Garasjeport Garasjeporter

Antall: 2

Garasjedel med 2 garasjeplasser, senket i terreng

Garasjeporter for ny garasje i tilbygg

Tak Flatt tak og valmtak

🧱 Tegl på flatt tak, valmtak på tilbygg

Flatt tak med tegl på hovedbygget, valmtak på tilbygget, takvinkel 35 grader

Taktekking for eksisterende og nytt tilbygg

Betong Fundament og dekker

Betongarbeid utført av ASHEIM FORSKALING AS

Betongfundament og dekker for tilbygg og garasje

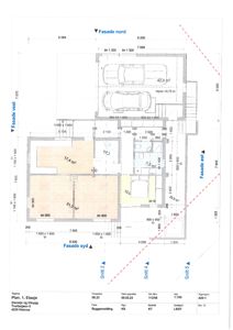
Plantegning

Garasje 120.5 m²

Etasje 1 120.5 m²

Rom Areal Vinduer Dører
Garasje 1 42.0 m² 0 0
Garasje 2 42.0 m² 0 0
Repos 3 0.7 m² 0 0
Gang 4 29.9 m² 0 0
Bod 5 17.4 m² 0 0
Bod 6 31.3 m² 0 0
Bod 7 17.1 m² 0 0
Bod 8 10.0 m² 0 0
Bod 9 7.5 m² 0 0

Fasader

Enebolig

Sør
Materiale
Tre
Taktype
Flatt tak
Takmat.
Tegl
Høyde
6.0 m
Mønehøyde
12.9 m
Vinduer
4
Dører
2
Synlige etasjer
2
Øst
Materiale
Tre
Taktype
Valmtak
Høyde
6.0 m
Mønehøyde
12.9 m
Vinduer
4
Dører
1
Balkonger
1
Synlige etasjer
2

Svalgang

Ukjent
Materiale
Tre
Taktype
Flatt tak
Høyde
2.1 m
Vinduer
2
Dører
1
Synlige etasjer
1

Hendelser

14.04.2026 Ferdigattest - 113/56 - Endring av bygg utvendig
08.04.2026 Gnr 113 bnr 56 - Søknad om ferdigattest ferdigattest
11.01.2024 Gnr 113 Bnr 56 - Tveitasjøen 6 - Supplering av søknad søknad
19.06.2023 Gnr 113 Bnr 56 - Kenneth Tveita - Tveitasjøen 4 - garasje og tilbygg bustadhus - dispensasjon dispensasjon
01.06.2023 Gnr 113 Bnr 56 - Kenneth Tveita - Tveitasjøen 4 - garasje og tilbygg bustadhus - dispensasjon dispensasjon
12.05.2023 Gnr 113 Bnr 56 - Status på søknad søknad
28.03.2023 Gnr 113 bnr 56 - Søknad om løyve til tiltak - tilbygg/garasje på fritidseigedom søknad