Extension Rammetillatelse Fritidsbolig

Ny frittstående anneks til fritidsbolig i Vegusdalveien 1402

📍 Vegusdalveien 1402 , 4760 BIRKELAND

Nøkkelinfo

Sakstype
Tilbygg
Bygningstype
Fritidsbolig
Bruksareal
20 m²
Kommune
Birkenes
Fylke
Agder
Gnr / Bnr
168 / 24
Saksnummer
2026/780
Fase
Rammetillatelse

Om byggesaken

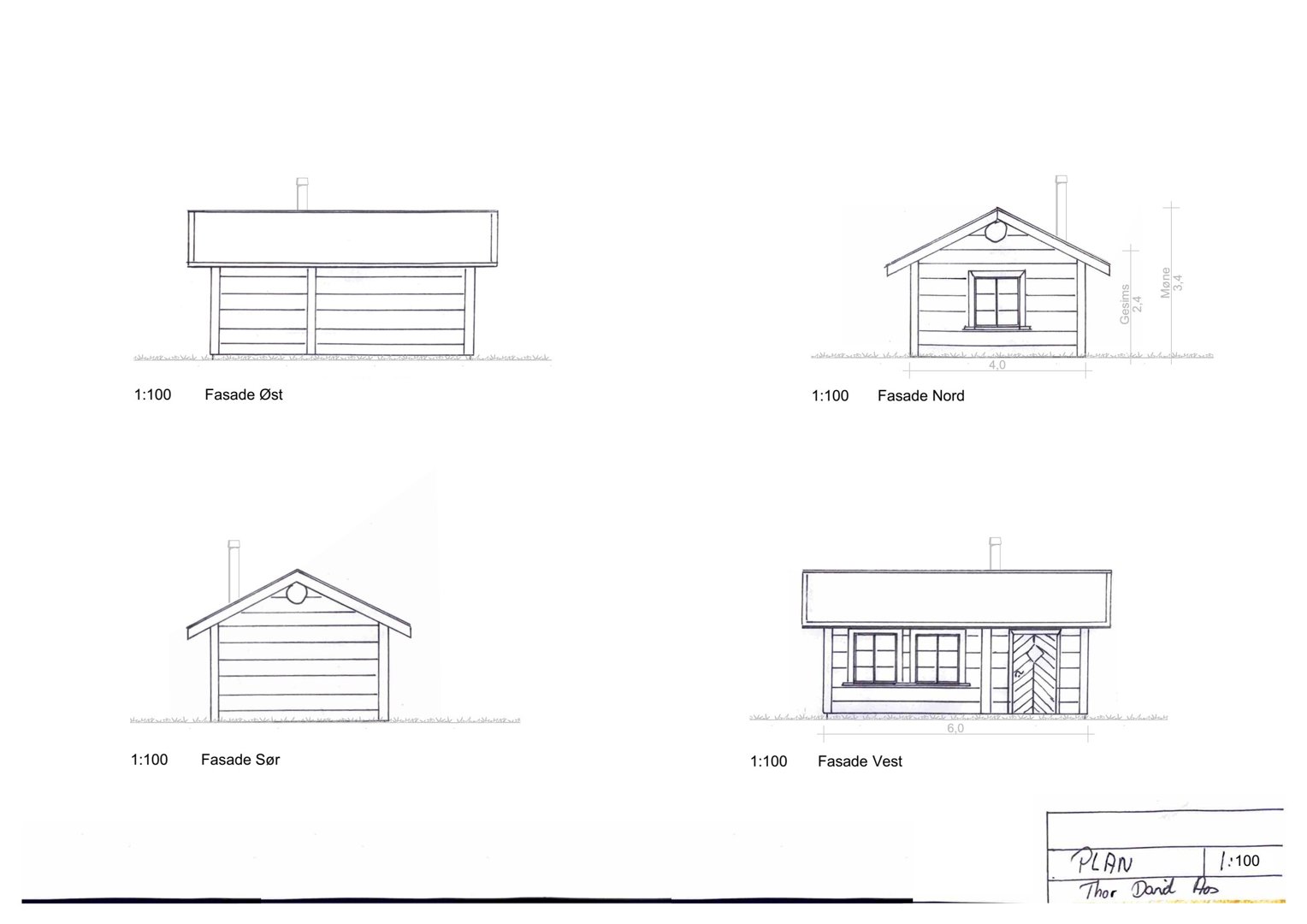
Ny frittstående anneks på 24 m² BYA (20,2 m² BRA) oppføres som et laftet bygg tilknyttet eksisterende fritidsbolig i Vegusdalveien 1402. Annekset inneholder et oppholdsrom på 14,4 m² og en gang på 5 m², med mønehøyde på 3,4 meter og gesimshøyde på 2,4 meter. Bygget plasseres i tråd med reguleringsplanens arealformål, men med dispensasjon for plassering utenfor byggegrense. Materialbruk og form er tilpasset eksisterende bebyggelse og landskapets karakter, med jordfarger som fargevalg. Det legges ikke inn vann i annekset, og overvann ledes til terreng. Tiltaket styrker tunstrukturen og gir et harmonisk hyttetun uten vesentlig nabopåvirkning.

Produkter og materialer

Fasade Laftet trebygg

🧱 Tre

Antall: 1

Laftet bygg tilpasset eksisterende bebyggelse, jordfarger, mønehøyde 3,4 m, gesimshøyde 2,4 m

Fasade og konstruksjon i laftet tre, tilpasset eksisterende hytte og landskap

Tømrer Lafting

🧱 Tre

Antall: 1

Laftet konstruksjon for anneks

Tømrerarbeid for laftet bygg

Tak Saltak

🧱 Tre med taktekking

Antall: 1

Saltak med mønehøyde 3,4 m, gesimshøyde 2,4 m

Tak med saltak som vist på fasadetegninger

Overvann Drenering til terreng

Antall: 1

Overvann skal ledes til terreng

Overvannshåndtering for tak og uteområder

Grunnarbeid Fundamentering

Antall: 1

Byggegrunn uten fare for flom eller skred, fundamentering tilpasset terreng

Grunnarbeid og fundamentering for anneks

Vinduer Fasadevindu

🧱 Tre

Antall: 3

1 vindu i oppholdsrom, 2 vinduer i fasade Vest

Vinduer i tre som vist på fasadetegninger

Dører Ytterdør

🧱 Tre

Antall: 2

1 dør i gang, 1 dør i fasade Vest

Ytterdører i tre som vist på plantegninger og fasader

VVS Ingen innlagt vann

Antall: 0

Ingen vanninstallasjon planlagt

Ingen vanninstallasjon i annekset

Plantegning

Enebolig 19.4 m²

Etasje 1 19.4 m²

Rom Areal Vinduer Dører
Opphold 101 14.4 m² 1 1
Gang 102 5.0 m² 0 1

Fasader

Garasje

Øst
Materiale
Tre
Taktype
Flatt tak
Vinduer
0
Dører
0
Synlige etasjer
1

Enebolig

Nord
Materiale
Tre
Taktype
Saltak
Høyde
2.4 m
Mønehøyde
3.4 m
Vinduer
1
Dører
0
Synlige etasjer
1
Sør
Materiale
Tre
Taktype
Saltak
Vinduer
0
Dører
0
Synlige etasjer
1
Vest
Materiale
Tre
Taktype
Flatt tak
Vinduer
2
Dører
1
Synlige etasjer
1

Hendelser

20.04.2026 Gnr. 168 bnr. 24 – Vegusdalveien 1402 – tillatelse til oppføring av anneks
25.03.2026 Søknad om tillatelse i ett trinn 168/24