Rendering
3D-visualisering av en liten hytte eller kontorbygning sett fra utsiden, med innredning synlig gjennom glassveggene.
1 / 11
Extension
Rammetillatelse
Fritidsbolig
Tilbygg på 9 m² til fritidsbolig i Ytre Bøvegen 51
📍 Ytre Bø-vegen 51 , 6953 LEIRVIK I SOGN
Nøkkelinfo
- Sakstype
- Tilbygg
- Bygningstype
- Fritidsbolig
- Bruksareal
- 9 m²
- Kommune
- Hyllestad
- Fylke
- Vestland
- Gnr / Bnr
- 85 / 49
- Saksnummer
- 2025/610
- Fase
- Rammetillatelse
Om byggesaken
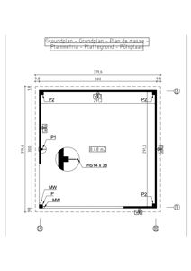
Ny tilbygg på 9 m² med utvendige mål 300x300x239,4 cm bygges på eksisterende terrasse ved fritidsbolig i Ytre Bøvegen 51. Tilbygget er prefabrikert fra Gardia.no med 44 mm vegger i massiv tre og isolerglass. Taket er skrått. Terrassen forsterkes for å tåle vekten av tilbygget. Tiltaket er innenfor eksisterende bebygd areal og har ett rom. Det er vurdert til å ikke ha vesentlige negative virkninger på natur, landskap eller naboer. Tiltaket er unntatt søknadsplikt etter dispensasjon.
Produkter og materialer
Grunnarbeid
Forsterkning av eksisterende terrasse
Eksisterende terrasse forsterkes for å tåle vekten av tilbygget
Forsterkning av terrasse som fundament for tilbygg
Tømrer
Montering av prefabrikert bygg
Montering av prefabrikert tilbygg fra Gardia.no
Tømrerarbeid for montering av tilbygg
Vinduer
Isolerglass vindu
🧱 Isolerglass
Isolerglass i tilbygg
Vinduer med isolerglass i tilbygget
Tak
Skråtak
Skråtak på tilbygg
Tak med skrå form på tilbygget
Fasade
Tilbygg vegg i massiv tre
🧱 44 mm massiv tre
Prefabrikert bygg fra Gardia.no, 44 mm vegger i massiv tre
Vegger til tilbygg på 9 m² i massiv tre
Hendelser
08.04.2026
Tilbygg
05.03.2026
Søknad - Utviding av hytte og felles brønn
02.03.2026
Søknad om tilbygg - Gbnr 85/49 - Ytre Bøvegen 51 - 6953 Leirvik
02.03.2026
Søknad om tilbygg - Gbnr 85/49 - Ytre Bøvegen 51 - 6953 Leirvik
26.01.2026
Søknad om tilbygg - Gbnr 85/49 - Ytre Bøvegen 51 - 6953 Leirvik
19.12.2025
NVE si uttale - Høring - Søknad om dispensasjon - Oppføring av tilbygg til fritidsbustad på gnr. 85 bnr. 49, Ytre Bøvegen 51 - Hyllestad kommune
16.12.2025
Tilbakemelding - dispensasjon - Hyllestad 85/49 - Ytre Bøvegen 51 - tilbygg til fritidsbustad
12.12.2025
Uttale - dispensasjon - tilbygg fritidsbustad - gnr. 85 bnr. 49 - Hyllestad kommune
10.12.2025
Oversender søknad til uttale - Tilbygg fritidsbustad - Gbnr 85/49
10.10.2025
Søknad om dispensasjon