Unknown UnderBehandling Fritidsbolig

Hovedombygging og tilbygg på fritidsbolig med garasje og brygge, Vallekjær 32

📍 Vallekjær 32 , 3967 STATHELLE

Nøkkelinfo

Sakstype
Unknown
Bygningstype
Fritidsbolig
Bruksareal
125 m²
Boenheter
1
Kommune
Bamble
Fylke
Telemark
Gnr / Bnr
80 / 137
Saksnummer
2025/7160
Fase
Under behandling

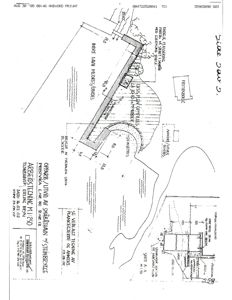
Om byggesaken

Prosjektet omfatter hovedombygging og utvidelse av eksisterende fritidsbolig på eiendommen Vallekjær 32, med et samlet bruksareal på ca. 125 m² inkludert anneks og takoverbygg. Bygningen har tradisjonell kyststil med saltak tekket med teglstein, og består av flere etasjer med stue, soverom, bad, bod og teknisk rom. Det er også oppført ny garasje/uthus på 103 m² med forstøtningsmur og tak over mur. Bryggeanlegg med flytebrygge og steinbrygge inngår i prosjektet, med tilhørende dispensasjoner og midlertidige tillatelser. Bruksendring fra fritidsbolig til bolig er søkt og under behandling. Prosjektet inkluderer omfattende grunnarbeider, riving av eldre annekser, og oppføring av nye konstruksjoner tilpasset reguleringsplan og kystbebyggelse. Det er gjennomført tilsyn og kontrollplaner for å sikre kvalitet og lovlighet i byggeprosessen.

Produkter og materialer

Tømrer Ombygging og utvidelse

🧱 Tre, isolasjon, kledning, takmaterialer

Ombygging av eksisterende hytte, riving av eldre anneks, oppføring av nytt anneks, tilpasset reguleringsplan

Ombygging og utvidelse av fritidsbolig med tilhørende anneks

VVS Vann og avløp

Tilknytning til offentlig vann- og avløpsnett, krav om utslippstillatelse, vannklosett med tette kammer

VVS-installasjoner for bolig og anneks

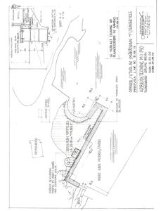
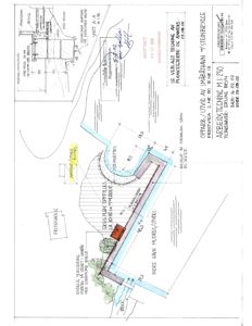
Brygge Steinbrygge og flytebrygge

🧱 Betong, tre, stein

Flytebrygge 10 m lang med 3 m landgang, steinbrygge parallelt med båthavn, midlertidig dispensasjon for visningsbrygge

Bryggeanlegg med flytebrygge og steinbrygge, tilpasset reguleringsplan

Maling Utvendig og innvendig maling

Mørk og/eller naturvennlig farge på anneks og bod, tilpasset eldre kystbebyggelse

Maling og overflatebehandling

Elektro Elektriske installasjoner

Elektriske installasjoner i henhold til gjeldende forskrifter

Elektroarbeider i bolig og anneks

Bygg Fritidsbolig hovedbygg

🧱 Tre, saltak med teglstein

Antall: 1

Ca. 125 m² BRA inkl. anneks og takoverbygg, tradisjonell kyststil, 2 etasjer, 3 soverom, stue, bad, bod, teknisk rom, saltak med tegl

Hovedombygging og utvidelse av fritidsbolig med klassisk kyststil

Bruksendring Fritidsbolig til bolig

Antall: 1

Bruksendring av fritidsbolig til helårsbolig, tilrettelagt med nødvendige våtrom og tilkobling til offentlig vann og avløp

Bruksendring fra fritidsbolig til bolig

Trapper Innvendig trapp

🧱 Tre

Antall: 1

Innvendig trapp i hovedbygg og anneks

Trapper i bolig og anneks

Isolasjon Isolasjon i vegger, tak og gulv

Isolasjon i henhold til TEK10 og planbestemmelser

Isolasjon for bolig og anneks

Rekkverk Sikkerhetsrekkverk på terrasse og trapper

Rekkverk iht. sikkerhetskrav på terrasse og trapper

Sikkerhetsrekkverk

Grunnarbeid Riving og grunnarbeider

Riving av eldre annekser, grunnarbeider inkludert forstøtningsmur, fundamentering og drenering

Grunnarbeider og riving i forbindelse med ombygging

Garasje Garasje/uthus

🧱 Tre, forstøtningsmur med tak

Antall: 1

103 m² BRA, forstøtningsmur og tak over mur, tillatelse gitt 2014

Ny garasje/uthus med forstøtningsmur og tak

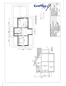
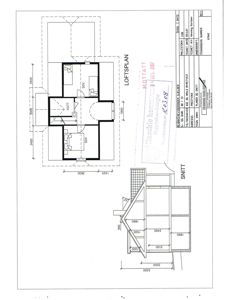
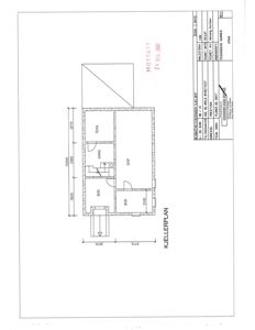
Plantegning

Enebolig 0.0 m²

Etasje 0 0.0 m²

Rom Areal Vinduer Dører

Etasje 1 0.0 m²

Rom Areal Vinduer Dører
Stue 101 35.0 m² 3 2
Sov 102 10.0 m² 1 1
Gang 103 8.6 m² 0 3
Bad 104 6.8 m² 0 1
Bod 105 0.0 m² 0 1

Etasje 2 0.0 m²

Rom Areal Vinduer Dører
Kjøkken KOTT 0.0 m² 0 0
Soverom SOV 0.0 m² 0 0
Soverom SOV 0.0 m² 0 0

Hovedbygg 45.6 m²

Etasje 0 45.6 m²

Rom Areal Vinduer Dører
Teknisk rom TEKN. 10.7 m² 0 1
Gang GANG 9.9 m² 0 1
Bod BOD 13.2 m² 0 1
Dispensasjon DISP 11.8 m² 0 1

Fasader

Enebolig

Vest
Materiale
Tre
Taktype
Saltak
Takmat.
Tegl
Høyde
3.4 m
Mønehøyde
5.8 m
Vinduer
6
Dører
1
Balkonger
1
Synlige etasjer
2
Nord
Materiale
Tre
Taktype
Saltak
Takmat.
Tegl
Høyde
6.0 m
Mønehøyde
8.0 m
Vinduer
3
Dører
1
Synlige etasjer
2
Sør
Materiale
Tre
Taktype
Saltak
Takmat.
Tegl
Høyde
6.0 m
Mønehøyde
8.0 m
Vinduer
2
Dører
1
Synlige etasjer
2
Øst
Materiale
Tre
Taktype
Saltak
Takmat.
Tegl
Høyde
3.4 m
Mønehøyde
5.8 m
Vinduer
2
Dører
1
Synlige etasjer
2

Hendelser

17.04.2026 Tilbakemelding på tilsysnrapport - gbnr. 80/13 og 80/137 - Vallekjær 32
27.03.2026 Tilbakemelding - tilsynsrapport - gbnr. 80/13 og 80/137 - Vallekjær 32
05.03.2026 Ny purring på svar - gbnr. 80/13 og 80137 - Vallekjær 32
13.02.2026 Etterlyser svar - gbnr. 80/13 og 80/137 - Vallekjær 32
16.01.2026 Tilbakemelding på kommentarer til saksbehandling og tilsyn - gbnr. 80/13 og 80/137 - Vallekjær 32
16.01.2026 Kommentarer til saksbehandling og tilsyn - gbnr. 80/13 og 80/137 - Vallekjær 32
23.12.2025 Dokumenter i byggesaker - gbnr. 80/13 og 80/137 - Vallekjær 32 - diverse tiltak på eiendommen - tilsyn
18.12.2025 Tilsynsrapport - gbnr. 80/13 og 80/137 - Vallekjær 32 - diverse tiltak på eiendommen - tilsyn
18.12.2025 Dokumenter fra Jo-filarkiv - gbnr. 80/13 og 80/137 - Vallekjær 32 - diverse tiltak på eiendommen - tilsyn
17.11.2025 Kommentarer til varsel om tilsyn - gbnr. 80/13 og 80/137 - Vallekjær 32
17.11.2025 Skråfoto 2024 av eiendommen gbnr. 80/13 og 80/137
17.11.2025 Kopi av svar - søknader om ferdigattester på eiendommen gbnr. 80/13 og 80/137
17.11.2025 Innkalling til befaring - gbnr. 80/13 og 80/137 - Vallekjær 32 - diverse tiltak på eiendommen - tilsyn