Facade
Fasadetegning som viser bygningens utseende fra sør og øst, inkludert høydeangivelser og materialvalg.
1 / 11
Extension
Unknown
Hytte
Tilbygg til hytte
đ Magnhildskarvegen 14 , 6940 EIKEFJORD
Nøkkelinfo
- Sakstype
- Tilbygg
- Bygningstype
- Hytte
- Kommune
- Kinn
- Fylke
- Vestland
- Gnr / Bnr
- 83 / 8
- Saksnummer
- 2026/3020
- Fase
- Unknown
Om byggesaken
Søknad om tillatelse i ett trinn for et tilbygg til en hytte på Magnhildskarvegen 14, inkludert riving av eksisterende fasade og planlegging av nytt.
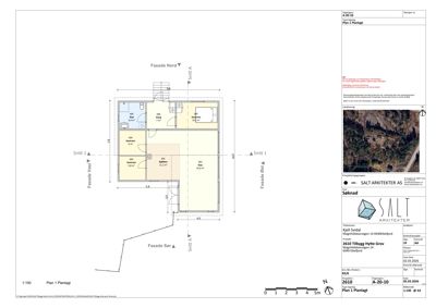
Plantegning
Enebolig 82.6 m²
Etasje 1 82.6 m²
| Rom | Areal | Vinduer | Dører |
|---|---|---|---|
| Kjøkken 001 | 11.1 m² | 0 | 1 |
| Stue 002 | 32.6 m² | 2 | 1 |
| Soverom 003 | 5.8 m² | 1 | 1 |
| Soverom 004 | 6.0 m² | 1 | 1 |
| Bad 005 | 6.4 m² | 0 | 1 |
| Gang 006 | 7.0 m² | 0 | 2 |
| Soverom 007 | 10.1 m² | 1 | 1 |
Hytte 0.0 m²
Etasje 1 0.0 m²
| Rom | Areal | Vinduer | Dører |
|---|---|---|---|
| Ukjent | 0.0 m² | 0 | 0 |
Fasader
Eksisterende
Sør
- Materiale
- Tre
- Taktype
- Flatt tak
- Høyde
- 3.2 m
- Mønehøyde
- 7.2 m
- Vinduer
- 2
- Dører
- 0
- Balkonger
- 1
- Synlige etasjer
- 1
Øst
- Materiale
- Tre
- Taktype
- Valmtak
- Høyde
- 3.2 m
- Mønehøyde
- 7.2 m
- Vinduer
- 3
- Dører
- 1
- Balkonger
- 1
- Synlige etasjer
- 1
Nord
- Materiale
- Tre
- Taktype
- Saltak
- Høyde
- 6.9 m
- Mønehøyde
- 7.0 m
- Vinduer
- 2
- Dører
- 0
- Balkonger
- 1
- Synlige etasjer
- 2
Vest
- Materiale
- Tre
- Taktype
- Saltak
- Høyde
- 6.9 m
- Mønehøyde
- 70.2 m
- Vinduer
- 2
- Dører
- 0
- Synlige etasjer
- 1
Garasje
Sydøst
- Materiale
- Tre
- Taktype
- Saltak
- Takmat.
- Tegl
- Høyde
- 2.0 m
- Mønehøyde
- 3.5 m
- Vinduer
- 0
- Dører
- 1
- Synlige etasjer
- 1
Nordvest
- Materiale
- Tre
- Taktype
- Saltak
- Takmat.
- Tegl
- Høyde
- 2.0 m
- Mønehøyde
- 3.5 m
- Vinduer
- 1
- Dører
- 0
- Synlige etasjer
- 1
Sydvest
- Materiale
- Tre
- Taktype
- Saltak
- Takmat.
- Tegl
- Høyde
- 2.0 m
- Mønehøyde
- 3.5 m
- Vinduer
- 0
- Dører
- 2
- Synlige etasjer
- 1
Hendelser
16.04.2026
Supplering av søknad gbnr 83/8
07.04.2026
Tilbakemelding om mangler - 83/8 - Magnhildskarvegen 14 - Tilbygg
11.03.2026
Søknad om tillatelse i ett trinn gbnr 83/8