ChangeOfUse UnderBehandling Landbruk

Bruksendring til selskapslokale og riving på Letesvegen 136

📍 Letesvegen 136 , 7224 MELHUS

Nøkkelinfo

Sakstype
Bruksendring
Bygningstype
Landbruk
Bruksareal
300 m²
Kommune
Melhus
Fylke
Trøndelag - Trööndelage
Gnr / Bnr
24 / 5
Saksnummer
2024/5180
Fase
Under behandling

Om byggesaken

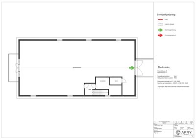
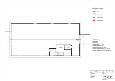
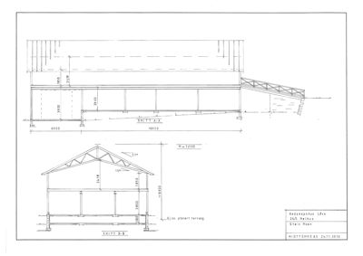
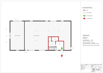
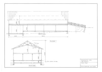
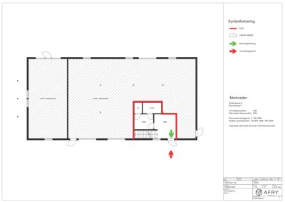
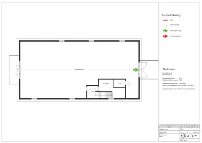
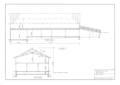
Bruksendring av 2. etasje i eksisterende driftsbygning (redskapshus/låve) på ca. 300 m² til selskapslokale med kapasitet for opptil 150 personer, inkludert tilhørende tekniske installasjoner som kjøkken og HC WC. 1. etasje benyttes fortsatt til lagring av landbruksmaskiner. Det planlegges også riving av en gammel låve på eiendommen. Tiltaket inkluderer etablering av nytt avløpsanlegg med infiltrasjon på dyrka jord, samt opparbeidelse av parkeringsplasser for 23 biler innenfor eksisterende gårdstun. Bygget har to etasjer, saltak og trekledning, og er tilpasset brannkrav med brannalarmanlegg, nødlys og ledesystem. Adkomst og brannberedskap er ivaretatt med godkjente løsninger for brannbiltilkomst og snumuligheter. Vannforsyning til selskapslokalet sikres ved bruk av vanndispensere med kjøpt drikkevann eller kokt vann, da privat vannforsyning har periodisk bakterieutfordring. Tiltaket krever dispensasjon fra LNFR-formålet i kommuneplanen, som er gitt med vilkår om jordvern ved anleggsarbeid.

Produkter og materialer

VVS Vannforsyning

🧱 Privat vannforsyningssystem, vanndispensere

Privat vannforsyning med registrert vannforsyningssystem, bruk av vanndispensere med kjøpt eller kokt vann til drikkevann ved arrangementer

Vannforsyning med hygienisk betryggende drikkevannsløsning

Gulv Parkett

🧱 Tregulv med brannklasse Dfl-s1

Tregulv i selskapslokalet med brannklasse Dfl-s1

Brannsikret tregulv i forsamlingslokalet

Tak Saltak

🧱 Takstein eller lignende

Saltak på redskapshus/låve og driftsbygning

Tak med saltak på eksisterende bygg

Elektro Brannalarmanlegg

🧱 Kategori 2, adresserbart anlegg

Heldekkende brannalarmanlegg med optiske og akustiske signalgivere

Brannalarmanlegg for forsamlingslokale

VVS Avløpsanlegg

🧱 Slamavskiller, pumpekum, infiltrasjonsrør

Nytt avløpsanlegg med 12,7 m3 slamavskiller, pumpekum, 8x24 m sprederør, dimensjonert for 150 personer og 36 arrangementer per år

Privat avløpsanlegg med infiltrasjon på dyrka jord

Maling Brannimpregnering

Brannimpregnering av massivt trepanel på vegger og tak i forsamlingslokalet

Brannimpregnering for redusert brennbarhet

Parkering Opparbeidet parkeringsareal

🧱 Grus eller asfalt

Antall: 23

23 parkeringsplasser opparbeidet på gårdstunet, uten bruk av dyrka jord

Parkeringsplasser for selskapslokalet

Elektro Nødlys og ledesystem

Nødlys og ledesystem iht. NS-EN 1838 og NS-3926-1, tilpasset fluktveier i forsamlingslokalet

Nødlys og ledesystem for rømningsveier

Tømrer Branncellebegrensende konstruksjoner

🧱 EI30 brannmotstand

Branncellebegrensende vegger og etasjeskiller med EI30, branntetting av gjennomføringer

Branncellebegrensende konstruksjoner i bygget

Trapper Innvendig trapp

🧱 Tre eller stål

Antall: 1

Trapp mellom plan 1 og 2, del av branncelle

Innvendig trapp med brannteknisk uklassifisering

Terrasse Balkong

🧱 Tre

Antall: 1

Balkong på nordfasade, ca. 13,2 m²

Eksisterende balkong på bygget

Dører Ytterdører og port

🧱 Tre eller metall

Antall: 7

To-fløyet utadslående port i gavlvegg, øvrige ytterdører med panikkbeslag

Ytterdører og port med brann- og rømningskrav

Fasade Trekledning

🧱 Tre

Eksisterende trekledning på driftsbygget og redskapshus/låve

Fasade med trekledning på eksisterende bygg

Grunnarbeid Infiltrasjonsanlegg

🧱 Infiltrasjonsrør Ø32 mm, pumpekum, slamavskiller

Infiltrasjonsanlegg dimensjonert for 3450 l/døgn, med infiltrasjonsareal på ca. 176 m²

Privat infiltrasjonsbasert avløpsanlegg på dyrka jord

Vinduer Fasadevindu

🧱 Tre eller aluminium

Antall: 14

Vinduer i fasade, sikkerhetsglass der brystningshøyde <0,8 m

Fasadevinduer med energiglass og sikkerhetsglass

Fasader

Redskapshus / Låve

Øst
Materiale
Tre
Taktype
Saltak
Vinduer
6
Dører
1
Synlige etasjer
2
Sør
Materiale
Tre
Taktype
Saltak
Vinduer
0
Dører
1
Synlige etasjer
1

Hovedbygg

Ukjent
Materiale
Tre
Taktype
Flatt tak
Vinduer
5
Dører
3
Synlige etasjer
2

Driftsbygg

Øst
Vinduer
4
Dører
1
Synlige etasjer
2
Sør
Taktype
Saltak
Vinduer
0
Dører
1
Synlige etasjer
2
Vest
Materiale
Tre
Taktype
Flatt tak
Vinduer
4
Dører
2
Synlige etasjer
2
Nord
Materiale
Tre
Taktype
Saltak
Vinduer
2
Dører
0
Synlige etasjer
2

Hendelser

10.04.2026 Melhus kommune Gnr/bnr 24/5 Drikkevann
17.03.2026 24/5 Svar på mangelbrev
25.02.2026 Mangelbrev - anmodning om tilleggsinformasjon - Ett-trinns søknad - Endring av bruk - bruksendring, Riving av bygg - riving av driftsbygning i landbruket inntil 1000m2 - . gbnr 24/5
27.01.2026 Godkjent - Dispensasjonssøknad for bruksendring av del av landbruksbygg til selskapslokale, og nytt avløpsanlegg på dyrka jord - gbnr. 24/5 - Letesvegen 136
20.01.2026 Letesvegen 136 Supplering av søknad 24/5
09.12.2025 Etterspør mangler - Dispensasjonssøknad for bruksendring av låve/redskapshus til selskapslokale - gbnr. 24/5 - Letesvegen 136
28.11.2025 Uttalelse - Dispensasjonssøknad for bruksendring av driftsbygning Letesvegen 136, gbnr. 24/5 i Melhus kommune.
27.11.2025 Letesvegen 136 Supplering av søknad 24/5
20.11.2025 Fylkeskommunens uttalelse til dispensasjonssøknad for bruksendring av driftsbygning 24/5 - Melhus kommune
19.11.2025 Uttalelse - søknad om dispensasjon - Melhus 24/5 - Letesvegen 136 - bruksendring av driftsbygning
07.11.2025 Fylkesveg 708 i Melhus kommune - Uttalelse til dispensasjonssøknad - Bruksendring av driftsbygning til selskapslokale - Gnr. 24 bnr. 5 - Letesvegen
07.11.2025 NVEs uttalelse til søknad om dispensasjon - Bruksendring av driftsbygning - Gnr. 24 bnr. 5 - Letesvegen 136 - Melhus kommune
04.11.2025 Etterspør mangler i dispensasjonssøknad for bruksendring til selskapslokale på gbnr. 24/5 - Letesvegen 136
31.10.2025 Anmodning om uttalelse - Dispensasjonssøknad for bruksendring av driftsbygning - gbnr. 24/5 - Letesvegen 136
27.10.2025 Letesvegen 136 Supplering av søknad 24/5
24.10.2025 Etterspør mangler i dispensasjonssøknad for bruksendring av låve/redskapshus til selskapslokale - gbnr. 24/5 - Letesvegen 136
13.10.2025 Bekreftelse på mottatt søknad - bruksendring, riving av driftsbygning i landbruket inntil 1000m2 - Letesvegen 136 - gnr/bnr 24/5
13.10.2025 Ett-trinns søknad - Endring av bruk - bruksendring, Riving av bygg - riving av driftsbygning i landbruket inntil 1000m2 - 24/5 - Letesvegen 136
13.10.2025 Søknad om dispensasjon - Bruksendring fra låve til selskapslokale - gnr/bnr 24/5 - Letesvegen 136
27.05.2025 Letesvegen 136. Kommunens saksnr. 2024/5180
19.12.2024 Angående søknad om utsettelse av frist for søknad om bruksendring av redskapshus/låve - gnr/bnr 24/5 - Letesvegen 136
18.12.2024 Orientering om framdrift - ber om utsatt frist - Bruksendring av låve - gnr/bnr 24/5
19.11.2024 Angående bruksendring del av låve/redskapshus til selskapslokale - Gnr/bnr 24/5 - Letesvegen 136