NewConstruction UnderBehandling Landbruk

Nytt lagerbygg for grønnsaker i Aurvegen, Ullensaker

📍 Aurvegen 1 , 2054 MOGREINA

Nøkkelinfo

Sakstype
Nybygg
Bygningstype
Landbruk
Bruksareal
2,578 m²
Kommune
Ullensaker
Fylke
Akershus
Gnr / Bnr
198 / 27
Saksnummer
2025/9909
Fase
Under behandling

Om byggesaken

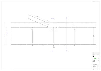
Nytt lagerbygg for lagring av gulrot og poteter oppføres på eiendommen Gnr 198 Bnr 27 i Aurvegen, Ullensaker. Bygget får et bebygd areal (BYA) på 2641 m² og et bruksareal (BRA) på 2578 m², med 1996 m² innvendig lager og resten utvendig lager med takoverbygg. Bygget har betongelementvegger, saltak med tretakstoler og stålplatetak. Mønehøyden er ca. 10,1 meter, noe som krever dispensasjon fra høydebestemmelsen. Bygget plasseres i et flatt terreng med minimal terrenginngrep, og fundamenteres direkte på faste masser med stripe/sålefundamenter. Tiltaket berører ca. 5,9 dekar dyrket jord og ligger i LNF-område. Det er allerede oppført et tilsvarende lagerbygg på eiendommen i 2024. Prosjektet har omfattende geotekniske vurderinger og kontrollplaner, og det er knyttet flere aktører til prosjekteringen og utførelsen.

Produkter og materialer

Betong Stripe- og sålefundamenter

🧱 Betong

Antall: 1

Direktefundamentering på faste masser, bæreevne 150 kPa

Fundamentering for lagerbygget

Vinduer Fasadevindu

🧱 Tre/aluminium

Antall: 18

12 vinduer på vestfasade, 6 vinduer på østfasade

Fasadevindu for naturlig lys i lagerbygget

Grunnarbeid Fjerning av uegnet topplag og fundamentering

Antall: 1

Graving til faste masser, fiberduk, frostfri pukkplate 30-40 cm, komprimering i henhold til NS-3458

Grunnarbeid for fundamentering med stripe/sålefundamenter

Maling Utvendig maling/behandling

Antall: 1

Behandling av tre- og stålflater for holdbarhet og estetikk

Overflatebehandling av fasader og tak

Annet Nabovarsling og dokumentasjon

Nabovarsel med 2 merknader, svar på merknader, kulturminneuttalelser, geoteknisk rapport, VA-uttalelse

Saksdokumentasjon og kommunikasjon i byggesaken

Elektro Strømtilførsel

Antall: 1

Strømtilførsel til lagerbygget, inkludert kabelgrøft på vestsiden

Elektrisk installasjon for drift av lagerbygget

VVS Slokkevann

Antall: 1

Brannkum i Aurvegen med kapasitet 20-29 l/s, krav til slokkevann 1200 l/min oppfylt

Slokkevannsforsyning for brannsikkerhet

Dører Ytterdører og garasjeport

🧱 Tre/metall

Antall: 4

1 dør på nordfasade, 1 dør på sørfasade, 2 dører på østfasade, inkludert garasjeport

Ytterdører og garasjeport for adkomst og varetransport

Tak Saltak med tretakstoler og stålplatetak

🧱 Tre og stålplater

Antall: 1

Saltak med tretakstoler, tak tekkes med stålplater

Takstruktur med tretakstoler og stålplatetak for lagerbygget

Fasade Betongelementvegger med stålplatekledning

🧱 Betong og stålplater

Antall: 1

Betongelementvegger med stålplater ca. 2,2 m ned på veggen

Yttervegger i betongelement med stålplatekledning for estetikk og holdbarhet

Terrasse Takoverbygg og utvendig lager

🧱 Tre og stål

Antall: 1

Takoverbygg langs hele byggets lengde for utvendig lager

Utvendig lager med takoverbygg for beskyttelse

Plantegning

Enebolig 514.0 m²

Etasje 1 514.0 m²

Rom Areal Vinduer Dører
Stue 101 247.5 m² 3 1
Gang 102 49.5 m² 0 3
Sove 103 247.5 m² 2 1

Fasader

Grønnsaklager

Nord
Materiale
Tre
Taktype
Saltak
Vinduer
0
Dører
1
Synlige etasjer
1
Sør
Materiale
Tre
Taktype
Saltak
Vinduer
0
Dører
1
Synlige etasjer
1
Vest
Materiale
Tre
Taktype
Saltak
Vinduer
12
Dører
0
Synlige etasjer
1
Øst
Materiale
Tre
Taktype
Saltak
Vinduer
6
Dører
2
Synlige etasjer
1

Hendelser

15.04.2026 Varsel om avslag og tilbakemelding om mangler - Gnr 198 bnr 27 - Aurvegen - Nytt bygg - Lagerbygg for grønnsaker
12.03.2026 VA-uttalelse - Gnr 198 bnr 27 - Aurvegen - Nytt bygg - Lagerbygg for grønnsaker
20.02.2026 Uttalelse til søknad om dispensasjon - Gnr 198 bnr 27 - Aurvegen - Nytt bygg - Lagerbygg for grønnsaker
19.02.2026 Uttalelse til søknad om oppføring av lagerbygg til grønnsaker - Gnr 198 bnr 27 - Aurvegen - Nytt bygg
10.02.2026 Ber om foreløpig landbruksfaglig vurdering - Gnr 198 bnr 27 - Aurvegen - Nytt bygg - Lagerbygg for grønnsaker
26.01.2026 Oversender sak for uttalelse - Gnr 198 bnr 27 - Aurvegen - Nytt bygg - Lagerbygg for grønnsaker
13.01.2026 Foreløpig svar - Gnr 198 bnr 27 - Aurvegen - Nytt bygg - Lagerbygg for grønnsaker
11.12.2025 Søknad om tillatelse i ett trinn - Gnr 198 bnr 27 - Aurvegen - Nytt bygg - Lagerbygg for grønnsaker