NewConstruction UnderBehandling Landbruk

Ny driftsbygning i Gallebergveien 190

📍 Gallebergveien 188 , 3073 SANDE I VESTFOLD

Nøkkelinfo

Sakstype
Nybygg
Bygningstype
Landbruk
Bruksareal
240 m²
Kommune
Holmestrand
Fylke
Vestfold
Gnr / Bnr
362 / 2
Saksnummer
2026/2647
Fase
Under behandling

Om byggesaken

Ny driftsbygning i landbruket på Gallebergveien 190 med et samlet bruksareal på 240 m². Bygget er en frittliggende konstruksjon i tre med pulttak på østfasaden og saltak på sørfasaden. Bygningen inneholder garasje- og lagerrom samt stallbokser, alle uten vinduer, med flere dører og garasjeporter. Bygget er ett plan og tilpasset landbruksdrift med separate rom for ulike funksjoner som garasje og lager. Fasaden er i tre, og taket har varierende form mellom pulttak og saltak.

Produkter og materialer

Dører Ytterdører og garasjeporter

Antall: 8

4 dører på østfasade, 1 dør på sørfasade, flere dører i lager og stallbokser, garasjeporter på øst og sørfasade

Ytterdører og garasjeporter til driftsbygningens ulike rom

Betong Betonggulv

Betonggulv i lager, garasje og stallbokser

Elektro Elektriske varmekabler og panelovner

Elektriske varmekabler og elektriske panelovner installert

Elektrisk oppvarming med varmekabler og panelovner

Tak Pulttak og saltak

Pulttak på østfasade og saltak på sørfasade

Taktekking for pulttak og saltak i landbruksbygning

Vinduer Fasadevindu

Antall: 4

4 vinduer på østfasade, ingen vinduer i lager og stallbokser

Fasadevindu på østside av driftsbygning

Fasade Trepanel

🧱 Tre

Fasade i tre med pulttak på østside og saltak på sørside

Trepanel til fasade med tilhørende taktekking i pult- og saltak

Grunnarbeid Fundamentering og grunnmur

Grunnarbeid for driftsbygningens fundamentering og grunnmur

VVS Varme- og ventilasjonssystem

Ingen vannbåren varme, kamin/ovn/peis eller varmepumpe. Elektriske varmekabler og panelovner benyttes.

Oppvarming via elektriske varmekabler og panelovner, ingen vannbåren varme

Tømrer Bærekonstruksjon og innvendige vegger

🧱 Tre

Tømrerarbeid for bærekonstruksjon og innvendige vegger i driftsbygning

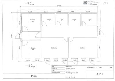
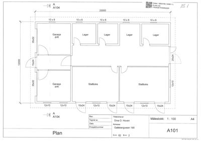
Plantegning

Garasje 240.0 m²

Etasje 1 240.0 m²

Rom Areal Vinduer Dører
Garasje drift 101 1,120.0 m² 0 1
Lager 102 80.0 m² 0 1
Lager 103 80.0 m² 0 1
Lager 104 80.0 m² 0 1
Lager 105 80.0 m² 0 1
Garasje drift 106 1,120.0 m² 0 1
Stallboks 107 1,200.0 m² 0 2
Stallboks 108 1,200.0 m² 0 2

Fasader

Garasje

Øst
Materiale
Tre
Taktype
Pulttak
Vinduer
4
Dører
4
Synlige etasjer
1
Sør
Materiale
Tre
Taktype
Saltak
Vinduer
0
Dører
1
Synlige etasjer
1

Enebolig

Vest
Taktype
Flatt tak
Vinduer
5
Dører
0
Synlige etasjer
1
Nord
Taktype
Saltak
Vinduer
1
Dører
1
Synlige etasjer
1

Hendelser

16.04.2026 Gbnr 362/2 - Gallebergveien 190 - driftsbygning - søknad om ferdigattest
09.04.2026 Gbnr 362/2 - Gallebergveien 188 og 190 - driftsbygning - søknad om tillatelse til tiltak uten ansvarsrett