NewConstruction Ferdigattest Landbruk

Ny driftsbygning i landbruk på Kjørrefjordveien 7, Farsund

📍 Kjørrefjordveien 7 , 4550 FARSUND

Nøkkelinfo

Sakstype
Nybygg
Bygningstype
Landbruk
Bruksareal
279 m²
Kommune
Farsund
Fylke
Agder
Gnr / Bnr
13 / 12
Saksnummer
23/01244
Fase
Ferdigattest

Om byggesaken

Ny driftsbygning på totalt ca. 279 m² fordelt på to etasjer med garasje, verksted, lager, tekniske rom, WC, gang og låve/redskap. Bygget har saltak med teglstein og trekledning. Underetasje inneholder garasje, verksted, WC, teknisk rom og lager, mens 1. etasje inneholder bod/lager, WC, gang, teknisk areal, låve/redskap og overbygd redskapsskjul. Bygget har flere dører og vinduer tilpasset funksjonene, samt senket gulv i garasje. Prosjektet er ferdigstilt med utstedt ferdigattest.

Produkter og materialer

Ventilasjon Ventilasjon- og klimainstallasjoner

Utført av HJELLESET KLIMA AS

Ventilasjons- og klimainstallasjoner for driftsbygningen

Dører Ytterdører og portdører

🧱 Tre og metall

Antall: 15

Dører til garasje, lager, tekniske rom og WC

Ytterdører og portdører for adkomst og funksjonelle rom

Grunnarbeid Veg- og grunnarbeider

Utført av MASKIN OG VEDLIKEHOLD AS

Grunnarbeider for driftsbygningens fundamentering og uteområder

Betong Plasstøpte betongkonstruksjoner

Utført av FA BETONG AS

Betongfundamenter og konstruksjoner for bygget

Gulv Betonggulv og senket gulv i garasje

🧱 Betong

Senket gulv 60 cm i garasje

Betonggulv med senket nivå i garasje for kjøretøy

Tak Saltak med teglstein

🧱 Teglstein

Saltak med teglstein som takmateriale

Tak med saltak konstruksjon og teglstein som overflate

Oppmåling Innmåling og utskking av tiltak

Utført av LISTER OPPMÅLING AS

Oppmåling og stikningsplan for byggeplass og grunnmur

Sanitær Sanitærinstallasjoner

Utført av TRATEC TEKNIKKEN AS

Sanitærinstallasjoner i driftsbygningen, inkludert WC og tekniske rom

Vinduer Fasadevindu

🧱 Tre

Antall: 14

Fordelt på garasje, verksted og lagerrom

Vinduer i fasader og rom for naturlig lys og ventilasjon

Tømrer Tømrerarbeid og montering av trekonstruksjoner

🧱 Trekonstruksjoner

Utført av BYGG TEKNIKK LYNGDAL AS

Oppføring av trekonstruksjoner, vegger, tak og innvendige konstruksjoner

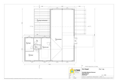
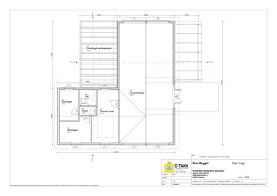
Plantegning

Garasje 279.4 m²

Etasje 1 140.8 m²

Rom Areal Vinduer Dører
Bod/lager 201 7.5 m² 0 1
Bod/lager 202 9.3 m² 0 0
WC 203 3.3 m² 0 1
Gang 204 1.9 m² 0 2
Teknisk areal 205 16.1 m² 0 0
Låve/redskap 206 82.6 m² 0 1
Overbygd redskapsskjul 206 31.9 m² 0 0

Etasje 0 138.6 m²

Rom Areal Vinduer Dører
Garasje 101 39.4 m² 4 1
Verksted 102 12.7 m² 3 1
WC 103 6.3 m² 0 1
Teknisk rom 104 2.3 m² 0 1
Lager 105 9.1 m² 0 2
Lager 106 23.3 m² 0 2
Garasje 107 26.1 m² 2 1

Fasader

Enebolig

Nord
Materiale
Tre
Taktype
Saltak
Takmat.
Tegl
Vinduer
5
Dører
1
Synlige etasjer
2
Sør
Materiale
Tre
Taktype
Saltak
Takmat.
Tegl
Vinduer
4
Dører
1
Synlige etasjer
2
Vest
Materiale
Tre
Taktype
Saltak
Takmat.
Tegl
Vinduer
4
Dører
1
Synlige etasjer
2
Øst
Materiale
Tre
Taktype
Saltak
Takmat.
Tegl
Vinduer
1
Dører
1
Synlige etasjer
2

Hendelser

16.04.2026 23/01244-13 Logger for sak BYGG-23/00212
13.04.2026 23/01244-15 Vedtak om tvangsmulkt - Avskjermet
06.03.2026 23/01244-14 Krav om drifts- og vedlikeholdsavtale for minirenseanlegg - Avskjermet
27.08.2025 23/01244-12 Ferdigattest driftsbygning 13/12, Kjørrefjordveien 7
22.08.2025 23/01244-11 Søknad om ferdigattest - oppdatert situasjonsplan og tegninger - 13/12, Kjørrefjordveien 7
06.08.2025 23/01244-10 Supplering av søknad - ansvarserklæring Hjelleseth Klima AS samt oppdatert gjennomføringsplan - 13/12, Kjørrefjordveien 7
28.11.2024 23/01244-9 Igangsettingstillatelse driftsbygning 13/12, Kjørrefjordveien 7
18.11.2024 23/01244-8 Supplering av søknad - erklæring om ansvarsrett FA Betong AS samt oppdatert gjennomføringsplan - 13/12, Kjørrefjordveien 7
28.10.2024 23/01244-7 Søknad om igangsettingstillatelse - ny driftsbygning - 13/12, Kjørrefjordveien 7
07.03.2024 23/01244-6 Krav om drifts- og vedlikeholdsavtale for minirenseanlegg - Avskjermet