NewConstruction UnderBehandling Landbruk

Ny driftsbygning med riving på Stensetveien 25, Hokksund

📍 Stensetveien 25 , 3302 HOKKSUND

Nøkkelinfo

Sakstype
Nybygg
Bygningstype
Landbruk
Bruksareal
154 m²
Kommune
Øvre Eiker
Fylke
Buskerud
Gnr / Bnr
85 / 5
Saksnummer
2026/3091
Fase
Under behandling

Om byggesaken

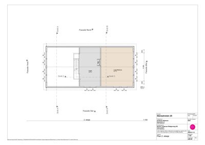
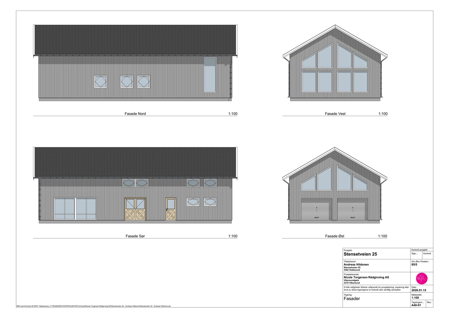
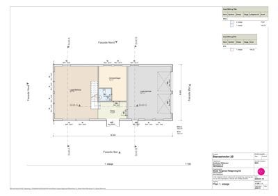
Ny driftsbygning på 154,2 m² BRA oppføres på eiendommen Stensetveien 25 i Hokksund, som erstatning for eksisterende låve og bod som rives. Bygget er i to etasjer med funksjoner som lager, verksted, WC og gang i første etasje, og lager/flerbruk i andre etasje. Bygningen har saltak og tre som fasademateriale, og er plassert nær eksisterende tun for å bevare tunfølelsen. Ny driftsbygning er planlagt utenfor fareområde for ras og skred, og med bedre teknisk standard og funksjonalitet for landbruksdrift, inkludert lagring og foredling av økologiske produkter. Tiltaket inkluderer også vurdering av grunnforhold og VA-installasjoner.

Produkter og materialer

Grunnarbeid Fundamentering og terrengtilpasning

Fundamentering på tilnærmet flatt terreng, vurdert som tiltakskategori K1

Grunnarbeid for ny driftsbygning med hensyn til grunnforhold og naturfarer

Trapper Innvendig trapp

Antall: 1

Innvendig trapp mellom etasjene i driftsbygningen

VVS WC og avløpsinstallasjoner

WC på 3,5 m², krav til kapasitet og tilknytning til offentlig avløp

Sanitæranlegg med WC og tilhørende VA-installasjoner

Vinduer Fasadevindu

Antall: 12

Totalt 12 vinduer i driftsbygningen fordelt på lager, verksted og gang

Tømrer Bygging av driftsbygning

🧱 Tre

Ny driftsbygning i tre med saltak, ca. 154 m² BRA

Tømrerarbeid for oppføring av ny driftsbygning

Fasade Trefasade med saltak

🧱 Tre

Saltak, tre som fasademateriale

Fasademateriale og taktype for ny driftsbygning

Maling Utvendig og innvendig maling

Overflatebehandling av trefasader og innvendige flater

Elektro Elektriske installasjoner

Elektriske installasjoner for driftsbygningen, ikke detaljert spesifisert

Dører Ytterdører og innvendige dører

Antall: 6

6 dører i bygget, inkludert dører til lager, verksted, WC og gang

Fasader

Enebolig

Nord
Materiale
Tre
Taktype
Saltak
Vinduer
4
Dører
1
Synlige etasjer
1
Vest
Materiale
Tre
Taktype
Saltak
Vinduer
6
Dører
0
Synlige etasjer
1
Sør
Materiale
Tre
Taktype
Saltak
Vinduer
8
Dører
2
Synlige etasjer
1

Garasje

Øst
Materiale
Tre
Taktype
Saltak
Vinduer
6
Dører
0
Synlige etasjer
1

Hendelser

14.04.2026 Mangelbrev - Riving av eksisterende bygninger og oppføring av ny driftsbygnng i landbruket - gbnr 85/5 - Stensetveien 25
08.04.2026 Søknad om dispensasjon - Riving av eksisterende bygninger og oppføring av ny driftsbygning i landbruket - gbnr 85/5 - Stensetveien 25, Hokksund
08.04.2026 Søknad uten ansvarsrett - Riving av eksisterende bygninger og oppføring av ny driftsbygning i landbruket - gbnr 85/5 - Stensetveien 25, Hokksund