NewConstruction Ferdigattest Landbruk

Ny driftsbygning og gjødselkum i Øvre Valheim, Årdal

📍 Valheimsvegen 216 , 4137 ÅRDAL I RYFYLKE

Nøkkelinfo

Sakstype
Nybygg
Bygningstype
Landbruk
Bruksareal
1,288 m²
Kommune
Hjelmeland
Fylke
Rogaland
Gnr / Bnr
113 / 1
Saksnummer
2014/2308
Fase
Ferdigattest

Om byggesaken

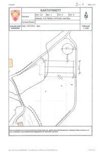
Ny driftsbygning for lausdriftsfjøs med et bebygd areal på 1288 m² og mønehøyde på 8,3 m, med saltak og flatt tak i betongkonstruksjon. Bygget inneholder flere funksjonsrom som kontor, røkt, sluse, garderobe, teknisk rom, kalvekjøkken, sykestall, spyleområde og flere dyrebinger med totalt 48 båser. Det er også oppført en gjødselkum på 363 m² med en høyde på 4,2 m og lagerkapasitet på 1525 m³. Bygget er plassert på dyrket mark med tilknytning til privat vann og avløp. Det er anlagt ny adkomstveg som er justert for å unngå konflikt med automatisk fredet kulturminne. Bygget er ferdigstilt og det foreligger ferdigattest.

Produkter og materialer

Stål Bærende metallkonstruksjoner

Montering av bærende metallkonstruksjoner

Stålkonstruksjoner i bygget

Fasade Betongfasade

🧱 Betong

Fasader i betong med saltak og flatt tak

Fasade i betongmateriale med saltak og flatt tak

Dører Ytterdører

Antall: 4

1 dør på nordfasade, 1 dør på vestfasade, 2 dører i bygget totalt

Ytterdører til driftsbygning

Tak Saltak og flatt tak

Saltak med 21° takvinkel og flatt tak på deler av bygget

Taktekking for driftsbygning

Betong Bærende betongkonstruksjoner

Montering av bærende betongkonstruksjoner, forskaling, armering og utstøping

Betongkonstruksjoner for driftsbygning og gjødselkum

Isolasjon

Isolasjon iht. TEK10 krav for driftsbygning

Vinduer Fasadevindu

Antall: 11

5 vinduer på nordfasade, 4 på vestfasade, 2 på østfasade

Fasadevinduer i driftsbygning

VVS Innvendig og utvendig rørleggerarbeid

Rørleggerarbeid inkl. tettedetaljer og gjennomføringer

Sanitær, varme- og slukkeinstallasjoner

Mur Gjødselkum

Gjødselkum på 363 m², 4,2 m høy, lagerkapasitet 1525 m³

Lager for husdyrgjødsel med krav til tett konstruksjon

Garasjeport Garasjeport

Antall: 1

Garasjeport på østfasade

Garasjeport tilknyttet driftsbygning

Tømrer Bærende og ikke-bærende konstruksjoner i tre

🧱 Tre

Utførelse av bærende og ikke-bærende byggverkskonstruksjoner i tre

Tømrerarbeid for driftsbygning

Terrasse Adkomstveg

Ny adkomstveg til driftsbygning, justert for å unngå konflikt med kulturminne

Opparbeidelse av adkomstveg

Elektro Brannalarm

Montering av brannalarm

Brannsikkerhetstiltak i driftsbygning

Grunnarbeid Graving og planering

Graving, grunn- og terrengarbeider, graving av grøfter, planeringsarbeid

Grunnarbeid for driftsbygning og adkomstveg

Maling

Innvendig og utvendig maling og overflatebehandling

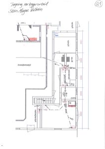
Plantegning

Løsdriftfjøs 0.0 m²

Etasje 1 0.0 m²

Rom Areal Vinduer Dører
Kontor 101 0.0 m² 0 1
Røkt 102 0.0 m² 0 1
Sluse 103 0.0 m² 0 1
Garderobe 104 0.0 m² 0 1
Tekn. 105 0.0 m² 0 1
Kalvekjøkken 106 0.0 m² 0 1
Sykemiljø 107 0.0 m² 0 1
Spyl 108 0.0 m² 0 1
48 båser 109 0.0 m² 0 1
12 båser 110 0.0 m² 0 1
10 store kviger og gjeldkyr 111 0.0 m² 0 1
21-24 mnd 112 0.0 m² 0 1
15-18 mnd 113 0.0 m² 0 1
12-15 mnd 114 0.0 m² 0 1
9-12 mnd 115 0.0 m² 0 1
6 dyr i hver bing 116 0.0 m² 0 1
3-6 mnd Kalver 117 0.0 m² 0 1

Fasader

Løsdriftfjøs

Nord
Materiale
Betong
Taktype
Flatt tak
Vinduer
5
Dører
1
Synlige etasjer
1
Vest
Materiale
Betong
Taktype
Saltak
Vinduer
4
Dører
1
Synlige etasjer
1
Sør
Materiale
Betong
Taktype
Flatt tak
Vinduer
0
Dører
0
Synlige etasjer
1
Øst
Materiale
Betong
Taktype
Saltak
Vinduer
2
Dører
0
Synlige etasjer
1

Hendelser

13.04.2026 Svar på innsyn i byggesak
04.01.2016 AS-BUILT BYGG, 113/1,5, ÅRDAL
04.01.2016 113-1 - FERDIGATTEST - DRIFTSBYGNING(FJOS)
30.12.2015 SVAR PÅ TILBAKEMELDING VEDR. SØKNAD OM FERDIGATTEST
15.12.2015 SVAR PÅ TILBAKEMELDING VEDR. SØKNAD OM FERDIGATTEST
04.12.2015 113/1 - TILBAKEMELDING TIL SØKNAD OM FERDIGATTEST FOR DRIFTSBYGNING/FJØS ÅRDAL
02.12.2015 SØKNAD OM FERDIGATTEST FOR DRIFTSBYGNING/FJØS
21.10.2014 UTTALELSE
15.10.2014 MELDING OM VEDTAK - SØKNAD OM OPPFØRING AV DRIFTSBYGNING/FJØS GNR 113 BNR 1 I ÅRDAL
13.10.2014 DELEGERT VEDTAK - SØKNAD OM OPPFØRING AV DRIFTSBYGNING/FJØS GNR 113 BNR 1 ÅRDAL
19.09.2014 113/1 - SØKNAD OM OPPFØRING AV DRIFTSBYGNING
02.09.2014 113/1 - MERKNADER TIL NABOVARSEL - DRIFTSBYGNING/FJØS
20.08.2014 NABOLISTE NY DRIFTSBYGNING 113/1
11.08.2014 VEDR.: GNR. 113 OG BNR. 1 - NABOVARSEL/NABOLISTE