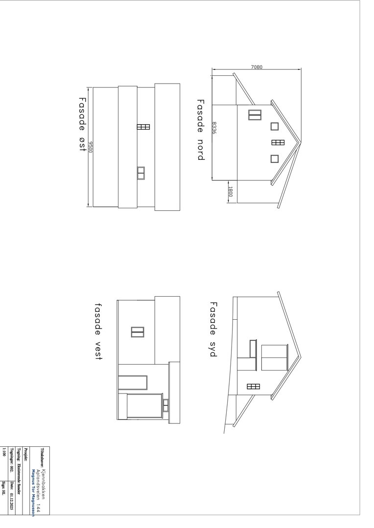
Facade
Fasadetegning som viser oppriss av bygningen sett fra fire sider (nord, syd, vest og øst) med mål og vindusoppsett.
1 / 12
VerticalExtension
Rammetillatelse
Landbruk
Ombygging og påbygg av driftsbygning i Aplandsveien 144
📍 Aplandsveien 144 , 4980 GJERSTAD
Nøkkelinfo
- Sakstype
- Påbygg
- Bygningstype
- Landbruk
- Bruksareal
- 30 m²
- Kommune
- Gjerstad
- Fylke
- Agder
- Gnr / Bnr
- 36 / 2
- Saksnummer
- 2025/1106
- Fase
- Rammetillatelse
Om byggesaken
Prosjektet omfatter ombygging og påbygg av en eksisterende driftsbygning i landbruket med et tilbygg på 30 m². Bygget skal benyttes som lager og har et totalt endret bebygd areal på 30 m². Tiltaket inkluderer reparasjon av dårlige murer for å forhindre at uthuset faller sammen. Bygget er ett plan med saltak og flere fasader med til sammen 7 vinduer. Ombyggingen skjer i tråd med kommuneplanens arealdel for LNFR-område, og eksisterende adkomst benyttes. Bygget har et areal på ca. 127,5 m² i påbygget del.
Produkter og materialer
Fasade
Nye fasader og fasadeendringer
Nye fasadetegninger med saltak, 7 vinduer fordelt på fasader
Oppføring av nye fasader og endring av eksisterende fasader i forbindelse med påbygg
Tak
Saltak
Saltak på eksisterende og påbygget del
Taktekking og konstruksjon for saltak
Grunnarbeid
Fundamentering og grunnarbeid for påbygg
Grunnarbeid for tilbygg på 30 m²
Arbeid og materialer for fundamentering av påbygg
Vinduer
Fasadevindu
Antall: 7
Vinduer i nye og eksisterende fasader
Tømrer
Påbygg og ombygging
🧱 Treverk
Tømrerarbeid for påbygg og ombygging av driftsbygning
Tømrerarbeid knyttet til konstruksjon og oppføring av påbygg
Mur
Reparasjon av murverk
Reparasjon av dårlige murer for å sikre uthuset
Materialer og arbeid for å reparere og sikre eksisterende murverk
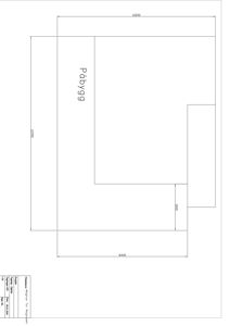
Plantegning
Påbygg 127.5 m²
Etasje 1 127.5 m²
| Rom | Areal | Vinduer | Dører |
|---|---|---|---|
| Ukjent | 107.1 m² | 0 | 0 |
Fasader
Enebolig
Øst
- Taktype
- Saltak
- Høyde
- 9.5 m
- Vinduer
- 2
- Dører
- 0
- Synlige etasjer
- 1
Nord
- Taktype
- Saltak
- Høyde
- 8.3 m
- Vinduer
- 3
- Dører
- 0
- Synlige etasjer
- 1
Vest
- Taktype
- Saltak
- Vinduer
- 1
- Dører
- 0
- Synlige etasjer
- 1
Sør
- Taktype
- Saltak
- Vinduer
- 1
- Dører
- 0
- Synlige etasjer
- 1
Hendelser
12.02.2026
Logger for sak BYGG-25/00113
27.01.2026
Fakturagrunnlag - ombygging og påbygning - Aplandsveien 114
19.01.2026
tegninger ny fasade - Sak: BYGG-25/00113
19.01.2026
Aplandsveien 144 - vedtak ombygging og påbygg - driftsbyggning
17.12.2025
Aplandsveien 144 Søknad om tillatelse i ett trinn 36/2