Extension Soeknad Landbruk

Tilbygg på fjøs i Nordberg solside 535, Skjåk

Nøkkelinfo

Sakstype
Tilbygg
Bygningstype
Landbruk
Bruksareal
90 m²
Kommune
Skjåk
Fylke
Innlandet
Gnr / Bnr
3433 / 116
Saksnummer
2026/726
Fase
Søknad

Om byggesaken

Ny tilbygg på eksisterende fjøs/lagerbygning på landbrukseiendommen Nordberg solside 535 i Skjåk. Tilbygget har et areal på ca. 90 m² BYA og er planlagt med tre som fasademateriale og saltak. Bygget er ettetasjes og tilbygges på eksisterende bygg med lagerfunksjon. Prosjektet inkluderer oppdatering av fasader mot alle himmelretninger og er tilpasset eksisterende byggestil og materialbruk. Det er planlagt tilknytning til kommunal veg og vannforsyning, og tiltaket utføres delvis som selvbyggerarbeid med ansvarlig foretak Sebb AS som ansvarlig søker og prosjekterende.

Produkter og materialer

Dører Ytterdører

🧱 Tre eller tilsvarende

Antall: 4

Dører fordelt på fasader: Sør (2), Øst (1), Vest (1)

Ytterdører til tilbygg og eksisterende bygg

VVS Vann og avløp

Tilknytning til kommunalt vann og avløp, eventuelt privat vannforsyning

VVS-installasjoner for tilbygg

Isolasjon Vegger og tak

Isolasjon iht. TEK17 for landbruksbygg

Isolasjon i vegger og tak for tilbygg

Vinduer Fasadevindu

🧱 Tre eller tilsvarende

Antall: 13

Vinduer fordelt på fasader: Sør (7), Øst (1), Vest (4), Nord (1)

Fasadevinduer til tilbygg og eksisterende bygg

Grunnarbeid Fundamentering og grunnmur

Grunnarbeid for tilbygg på fjøs iht. byggesøknad

Fundamentering og grunnmur for tilbygg

Fasade Yttervegger i tre

🧱 Tre

Tre som fasademateriale på tilbygg, tilpasset eksisterende bygg

Fasademateriale for tilbygg på fjøs, trepanel

Elektro Elektrisk installasjon

Elektrisk anlegg for tilbygg, tilknyttet eksisterende anlegg

Elektroinstallasjon i tilbygg

Tak Saltak

Saltak på tilbygg, tilpasset eksisterende bygg

Taktype for tilbygg på fjøs

Tømrer Bygging av tilbygg

Tømrerarbeid for oppføring av tilbygg på ca. 90 m² BYA

Tømrerarbeid for tilbygg på fjøs

Plantegning

Enebolig 0.0 m²

Etasje 1 0.0 m²

Rom Areal Vinduer Dører
Ukjent 0.0 m² 0 0

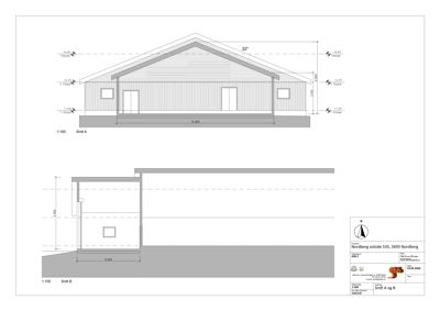
Fasader

Enebolig

Sør
Materiale
Tre
Taktype
Saltak
Vinduer
7
Dører
2
Synlige etasjer
1
Øst
Materiale
Tre
Taktype
Saltak
Vinduer
1
Dører
1
Synlige etasjer
1
Vest
Materiale
Tre
Taktype
Saltak
Vinduer
4
Dører
1
Synlige etasjer
1
Nord
Materiale
Tre
Taktype
Saltak
Vinduer
1
Dører
0
Synlige etasjer
1

Hendelser

15.04.2026 Søknad om løyve til tiltak
15.04.2026 ***** ***** *****