ChangeOfUse Soeknad Leilighetsbygg

Bruksendring til to bruksenheter i Bankgata 29B, Lillehammer

📍 Bankgata 29A , 2609 LILLEHAMMER

Nøkkelinfo

Sakstype
Bruksendring
Bygningstype
Leilighetsbygg
Bruksareal
44 m²
Boenheter
2
Kommune
Lillehammer
Fylke
Innlandet
Gnr / Bnr
200 / 446
Saksnummer
2026/2796
Fase
Søknad

Om byggesaken

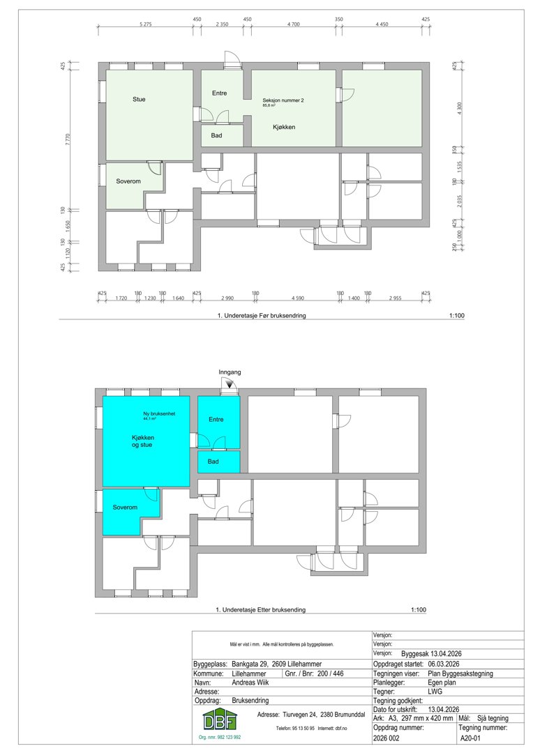
Oppdeling av eksisterende leilighet i Bankgata 29B i to separate bruksenheter. Den nye bruksenheten får etablert eget kjøkken og tilhørende romfunksjoner som stue, soverom, bad og entre. Bygningen er en eldre bolig med mur/konstruksjon i kjeller og laftet tømmer i overetasjer. Det skal ikke utføres bygningsmessige endringer som påvirker bygningens ytre mål eller bærende konstruksjoner. Ventilasjon, brannsikring og rømningsveier ivaretas i henhold til gjeldende forskrifter. Det monteres nytt kjøkken med tilhørende rørleggerarbeid i den nye seksjonen.

Produkter og materialer

VVS Rørleggerarbeid for kjøkken

Opplegg for og tilkobling av kjøkken, avløpsrør i støpejern der aktuelt

Rørleggerarbeid knyttet til nytt kjøkken i ny bruksenhet

Ventilasjon Mekanisk avtrekk bad

Mekanisk avtrekk fra baderom, friskluft via ventiler i yttervegg

Ventilasjonsanlegg for ny bruksenhet i henhold til TEK17

Gulv Etasjeskiller

🧱 Dobbelt trebjelkelag isolert, to lag gips på underside, golvbord/plater med flytesparkel på overside

Eksisterende etasjeskiller med brannmotstand over R60

Gulvkonstruksjon i ny bruksenhet beholdes som eksisterende

Tømrer Innvendige vegger og tetting

🧱 Bindingsverk, gipsplater

Tetting av åpning mellom entre og kjøkken i ny bruksenhet

Innvendige vegger bygges for å etablere ny bruksenhet

Brannvern Branncellevegger og brannskiller

🧱 Bindingsverk og gipsplater, murvegger

Brannmotstand EI60 i brannskillene mellom leilighetene, brannmotstand R60 i bærende konstruksjoner

Brannsikring i henhold til TEK17 for nye brannceller ved oppdeling

Kjøkken Nytt kjøkken i ny bruksenhet

Antall: 1

Opplegg for og tilkobling av kjøkken med tilhørende rørleggerarbeid

Montering av nytt kjøkken i den nye bruksenheten med nødvendige VVS-tilkoblinger

Fasade Vinduer

🧱 Trebalkrammer, eldre fra 1986

Eksisterende vinduer med U-verdi ca 2,0 W/m²K, ingen nye vinduer monteres

Vinduer beholdes som før, ingen nye vinduer eller dører i yttervegg

Plantegning

Enebolig 120.5 m²

Etasje 0 120.5 m²

Rom Areal Vinduer Dører
Stue 101 35.2 m² 3 2
Soverom 102 12.5 m² 1 1
Kjøkken 103 18.0 m² 1 1
Entre 104 8.5 m² 0 2
Bad 105 4.5 m² 0 1

Hendelser

14.04.2026 Søknad om bruksendring - Oppdeling av seksjon til to bruksenheter - eiendom 200/446/0/2 - Bankgata 29B