ChangeOfUse Soeknad Leilighetsbygg

Bruksendring av butikklokaler til leiligheter i Bøgata 78

📍 Bøgata 78 , 3800 BØ I TELEMARK

Nøkkelinfo

Sakstype
Bruksendring
Bygningstype
Leilighetsbygg
Bruksareal
61 m²
Boenheter
2
Kommune
Midt-Telemark
Fylke
Telemark
Gnr / Bnr
47 / 116
Saksnummer
25/7099
Fase
Søknad

Om byggesaken

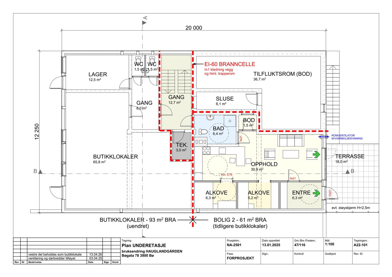
Bruksendring av deler av underetasjen i et leilighetsbygg i Bøgata 78 fra butikklokaler til to leiligheter. Prosjektet omfatter ombygging av cirka 61 m² tidligere butikklokaler til boligformål med rom som bad, opphold, alkover, entre og bod. Vestre del av underetasjen på cirka 65,8 m² beholdes som butikklokale. Bygget har to trapper og inkluderer tekniske rom med ventilasjon og varmegjenvinning. Det etableres branncelle og nødvendige brannskiller i bygget. Det er også en terrasse på 18 m² tilknyttet boligene. Arealet i underetasjen er totalt 236,4 m².

Produkter og materialer

Ventilasjon Romventilator med varmegjenvinning

Ventilering med varmegjenvinning i boligrom

Teknisk ventilasjon for boligene

Brannvern Branncelle og brannskille

Branncelle EI-60 og brannskille i bygget

Brannsikring ved bruksendring mellom bolig og butikklokale

Tømrer Innvendig ombygging

Ombygging av butikklokaler til boligrom med nye vegger, himlinger og gulv

Innvendig konstruksjon og tilpasning for bruksendring

Dører Ytterdør butikklokale

Antall: 1

Dør til butikklokale i underetasjen

Ytterdør for butikklokalet som beholdes

Fasade Vinduer til boligrom

Antall: 4

2 vinduer i oppholdsrom, 2 vinduer i alkover

Fasadevindu for oppholdsrom og alkover i leilighetene

VVS Sanitærinstallasjoner

Bad med sanitærutstyr i boligene

VVS-installasjoner for bad og WC i leilighetene

Gulv Terrassegulv

Terrasse på 18 m² tilknyttet boligene

Utendørs terrassegulv for leilighetene

Dører Innvendige dører

Antall: 14

Dører til bad, bod, entre, alkover, gang, teknisk rom, sluse og WC

Innvendige dører for rominndeling i leilighetene og butikklokaler

Elektro Elektriske installasjoner

Elektrisk anlegg for boligene og butikklokalet

El-installasjoner for belysning, strøm og tekniske systemer

Plantegning

Hovedbygg 236.4 m²

Etasje 0 236.4 m²

Rom Areal Vinduer Dører
Lager 12.5 m² 0 1
WC 1.5 m² 0 2
Gang 8.0 m² 0 1
Gang 12.7 m² 0 1
Tek. 3.0 m² 0 1
Butikklokaler 65.8 m² 2 1
Sluse 6.1 m² 0 1
Bad 6.4 m² 0 2
Bod 1.5 m² 0 1
Opphold 30.9 m² 2 1
Alkove 6.3 m² 0 1
Alkove 6.2 m² 0 1
Entre 6.3 m² 0 1
Tilfluktsrom (Bod) 36.7 m² 0 0
Terrasse 18.0 m² 0 0

Hendelser

15.04.2026 Søknad om endring av gitt tillatelse eller godkjenning 47/116 Bøgata 78