ChangeOfUse Igangsettingstillatelse Leilighetsbygg

Oppdeling til to boenheter og støyskjerm i Fredlundbakken 2, Bergen

📍 Fredlundbakken 2 , 5073 BERGEN

Nøkkelinfo

Sakstype
Bruksendring
Bygningstype
Leilighetsbygg
Bruksareal
241 m²
Boenheter
2
Kommune
Bergen
Fylke
Vestland
Gnr / Bnr
18 / 56
Saksnummer
BYGG-2025/12326
Fase
Igangsettingstillatelse

Om byggesaken

Eksisterende enebolig på 241 m² i Fredlundbakken 2 bygges om til en tomannsbolig med to separate boenheter. Oppdelingen inkluderer bruksendring av deler av underetasjen fra tilleggsdel til hoveddel, samt etablering av en støyskjerm på ca. 2,6 meters høyde mot Grønnestølsveien for å sikre tilfredsstillende støynivå på uteoppholdsareal. Bygningen har fire etasjer inkludert loft og underetasje, med totalt 1 trapp og 1 balkong. Det er søkt og innvilget dispensasjoner fra plankrav, byggegrenser mot offentlig veg og nabogrense, samt unntak fra flere TEK17-krav som tilgjengelighet, lydisolasjon og energikrav. Støyskjermen er oppført på støpt mur og har fått dispensasjon for avstand til nabogrense og offentlig veg. Det er gjennomført geoteknisk vurdering som konkluderer med lav risiko for områdestabilitet. Prosjektet er i igangsettingsfase med godkjent tiltaksplan for håndtering av forurenset grunn.

Produkter og materialer

Tømrer Oppdeling og ombygging av eksisterende enebolig

🧱 Trekonstruksjoner

Oppdeling til to boenheter, inkludert nye bygningsdeler og fasadeendringer

Tømrerarbeid for oppdeling og tilpasning av eksisterende bolig

Grunnarbeid Miljøsanering og håndtering av forurensede masser

Tiltaksplan for håndtering av forurenset grunn godkjent, inkl. graving og mellomlagring

Miljøsanering i forbindelse med fundamentering av støyskjerm

VVS Sanitærinstallasjoner

Nye våtrom i eksisterende bolig, inkl. branntekniske krav

Sanitærinstallasjoner for nye bad og våtrom i forbindelse med oppdeling

Isolasjon Vegger og tak

🧱 Mineralull, EPS/styropor

Innvendig etterisolering med 100-150 mm mineralull, EPS på grunnmur

Isolasjon for å oppgradere energiytelse i eksisterende konstruksjoner

Mur Fundament for støyskjerm

🧱 Betong

Antall: 1

Støpt mur som fundament for støyskjerm

Betongfundament for støyskjerm

Dører Ytterdører

Antall: 9

Nye inngangsdører, inkludert ekstra inngangsdør i fasade mot nordvest

Ventilasjon Balansert ventilasjon

Balansert ventilasjon med varmegjenvinning

Ventilasjonssystem for å sikre innendørs luftkvalitet og energikrav

Trapper Innvendig trapp

Antall: 1

Hovedtrapp bredde 1,05 m, inntrinn ca. 230 mm, opptrinn ca. 195 mm

Trapp mellom etasjer oppgradert i henhold til unntak fra TEK17

Rekkverk Balkongrekkverk

Antall: 1

Rekkverk på balkong i 2. etasje

Fasade Støyskjerm

🧱 Tre på støpt mur

Antall: 1

Høyde ca. 2,6 m, avstand til offentlig veg ca. 4 m, avstand til nabogrense 0,7-2,8 m

Støyskjerm for å redusere trafikkstøy på uteoppholdsareal, etablert på støpt mur med trepanel

Vinduer Lydvinduer

Antall: 14

Lydisolasjon Rw + Ctr ≥ 35 dB i 1. og 2. etasje, Rw + Ctr ≥ 32 dB i underetasje

Vinduer med lydisolasjon for å oppfylle krav til innendørs støynivå

Maling Innvendig og utvendig maling

Overflatebehandling av nye og eksisterende bygningsdeler

Balkong Balkong 6,1 m²

Antall: 1

Balkong til boenhet i 2. etasje

Gulv Isolert gulv med varmekabler

🧱 Isolasjon og varmekabler

Støpt gulv i underetasje med varmekabler

Isolert gulv med varmekabler for komfort og energibesparelse

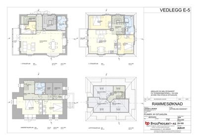
Plantegning

Enebolig 241.1 m²

Etasje 1 74.4 m²

Rom Areal Vinduer Dører
Stue/Kjøkken 101 42.3 m² 3 2
Soverom 102 7.0 m² 1 1
Trapperom 103 8.2 m² 0 1
Bad/Vask 104 5.2 m² 0 1
Gang 105 1.9 m² 0 1
Altan 106 7.3 m² 0 0

Etasje 2 77.5 m²

Rom Areal Vinduer Dører
Stue/Kjøkken 201 29.8 m² 2 1
Soverom 202 13.5 m² 1 1
Soverom 203 13.8 m² 1 1
Trapperom 204 10.5 m² 0 1
Bad/WC 205 7.2 m² 0 1
Balkong 206 6.1 m² 0 0

Etasje 0 60.9 m²

Rom Areal Vinduer Dører
Soverom 001 16.1 m² 1 1
Soverom 002 13.1 m² 1 1
Gang/Gard./Trapp 003 12.8 m² 0 2
Bad/Vask 004 4.9 m² 0 1
Sport 005 3.5 m² 0 1
Sport 006 5.0 m² 0 1
Gang 007 2.0 m² 0 1

Etasje -1 28.3 m²

Rom Areal Vinduer Dører
Bod U01 11.9 m² 1 1
Bod U02 10.1 m² 1 1
Bod U03 9.8 m² 1 1
Gang U04 7.9 m² 0 1

Fasader

Støyskjerm

Sør
Materiale
Tre
Taktype
Saltak
Takmat.
Tegl
Vinduer
4
Dører
1
Balkonger
1
Synlige etasjer
2
Nord
Materiale
Tre
Taktype
Saltak
Takmat.
Tegl
Vinduer
4
Dører
0
Synlige etasjer
2
Øst
Materiale
Tre
Taktype
Saltak
Takmat.
Tegl
Vinduer
6
Dører
1
Balkonger
2
Synlige etasjer
2
Ukjent
Vinduer
0
Dører
0
Synlige etasjer
0
Vest
Materiale
Tre
Taktype
Saltak
Takmat.
Tegl
Vinduer
5
Dører
2
Balkonger
1
Synlige etasjer
2

Hendelser

13.04.2026 Fredlundbakken 2 Søknad om igangsettingstillatelse 18/56
10.04.2026 Fredlundbakken 2 - BYGG-2025/12326 - Melding om mulig avvik
29.03.2026 Mulig/sannsynlig avvik fra gitt tillatelse - 18/56/0/0 Fredlundbakken 2, oppdeling av boenheter etc
04.11.2025 Fakturagrunnlag
04.11.2025 ubw ordre 20680598
21.10.2025 Rammetillatelse, 18/56, Fredlundbakken 2
04.09.2025 Fredlundbakken 2 Supplering av søknad 18/56
24.07.2025 Tilbakemelding - 18/56/0/0 Fredlundbakken 2, oppdeling til 2 boenheter, etablering av støyskjerm
04.06.2025 Intern høring. Gnr. 18 bnr. 56, Fredlundbakken 2. Søknad om oppdeling til 2 boenheter og etablering av støyskjerm. Uttale fra Bymiljøetaten.
04.06.2025 Fredlundbakken 2 Supplering av søknad 18/56
20.05.2025 Fredlundbakken 2, anmodning om uttalelse
20.05.2025 Intern høring, Fredlundbakken 2, oppdeling til 2 boenheter, etablering av støyskjerm
16.05.2025 Fredlundbakken 2 Supplering av søknad 18/56
29.04.2025 Vedrørende nabomerknader
15.04.2025 Fredlundbakken 2 Supplering av søknad 18/56
11.04.2025 Bekreftelse på mottatt søknad
09.04.2025 Fredlundbakken 2 Søknad om rammetillatelse 18/56