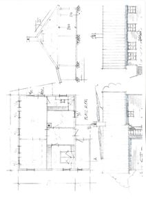
FloorPlan
Håndskrevet etasjeplan (Grenstien 3, 1.etg) med romfordeling (soverom, bad, gang), dører og mål.
1 / 4
ChangeOfUse
UnderBehandling
Leilighetsbygg
Bruksendring og innredning av loftsetasje i Granstien 3, Tvedestrand
📍 Granstien 3 , 4900 TVEDESTRAND
Nøkkelinfo
- Sakstype
- Bruksendring
- Bygningstype
- Leilighetsbygg
- Kommune
- Tvedestrand
- Fylke
- Agder
- Gnr / Bnr
- 30 / 79
- Saksnummer
- 2026/730
- Fase
- Under behandling
Om byggesaken
Bruksendring og innredning av loftsetasjen i et eksisterende leilighetsbygg på Granstien 3 i Tvedestrand kommune. Prosjektet innebærer å omgjøre loftsrom fra tilleggsdel til hoveddel med tilrettelegging for oppholdsrom, inkludert plassering av trapp mellom 1. etasje og loft. Det skal dokumenteres ståhøyde og målbart areal i loftsetasjen, og det er ingen fasadeendringer. Arbeidet krever fagmessige tegninger med mål, snitt og arealberegning i henhold til gjeldende måleregler.
Produkter og materialer
Tømrer
Innredning av loftsetasje
Oppføring av trapp mellom 1. etasje og loft, tilrettelegging av rom for oppholdsformål, tilpasning av konstruksjoner for ståhøyde minimum 1,9 m
Tømrerarbeid for innredning av loft til oppholdsrom, inkludert trapp og tilpasning av konstruksjoner
Bygningsdokumentasjon
Fagmessige tegninger
Plan i målestokk 1:100 med mål og arealer, snittegning med ståhøyde og 1,9 m linje, plassering av trapp på plan 1. etasje og loft
Nødvendige tegninger for dokumentasjon av bruksendring og innredning
Vinduer
Loftsvinduer
Vinduer med mål oppgitt i vedlagte tegninger, ingen fasadeendringer
Eksisterende vinduer i loftsetasje benyttes, ingen nye vinduer eller fasadeendringer
Hendelser
10.03.2026
Foreløpig tilbakemelding på søknad om bruksendring av loftsetasjen – Granstien 3, gnr.Bnr. 30/79
18.02.2026
Søknad om bruksendring/innredning av loft