ChangeOfUse UnderBehandling Leilighetsbygg

Bruksendring og fasadeendring i firemannsbolig, Heslebergveien 2C

📍 Heslebergveien 10A , 1390 VOLLEN

Nøkkelinfo

Sakstype
Bruksendring
Bygningstype
Leilighetsbygg
Bruksareal
54 m²
Boenheter
4
Kommune
Asker
Fylke
Akershus
Gnr / Bnr
74 / 28
Saksnummer
20/3099
Fase
Under behandling

Om byggesaken

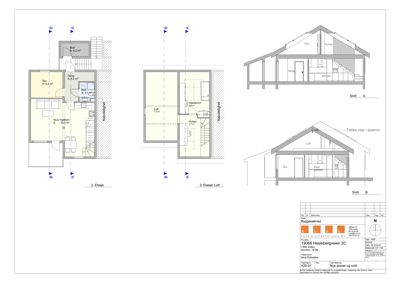
Bruksendring av eksisterende loft i en firemannsbolig til boligrom med innredning av kontor, bad, gjesterom og bod. Loftet har et bruttoareal på 18 m², og 3. etasje totalt 54 m² innredet loft. Bygningen har saltak, og det etableres ekstra takvinduer og et vindu i gavlvegg for rømningsvei. Det gjennomføres fasadeendringer med nye takvinduer og rømningsluke, uten bygningsmessige utvidelser eller økning i antall boenheter. Prosjektet inkluderer brannkonsept for sikkerhet mot naboleiligheter, og tiltaket er nabovarslet uten merknader. Det er etablert ansvarlige aktører for prosjektering, utførelse og kontroll, og prosjektet er i ferd med å få ferdigattest.

Produkter og materialer

Grunnarbeid Ingen nye grunnarbeider

Ingen bygningsmessige utvidelser eller grunnarbeider i prosjektet

Prosjektet omfatter kun innredning og fasadeendring, ikke grunnarbeid

Brannvern Brannkonsept og brannsikring

Brannkonsept utarbeidet av Norconsult AS, uavhengig kontroll av Fokus Rådgivning AS

Brannsikringstiltak for loft mot naboleiligheter

Vinduer Takvinduer

🧱 Glass

Antall: 4

Ekstra takvinduer i loft, i henhold til brannkonsept og godkjente tegninger

Takvinduer for å gi lys og rømningsvei i loftsrom

Bad Bad med sanitærutstyr

Antall: 1

Bad på loft på 3,1 m² med nødvendig sanitærutstyr (antatt)

Bad for loftsinnredning

VVS Sanitærinstallasjoner

VVS-installasjoner for bad og kjøkken i loftsinnredning

Sanitær og vanninstallasjoner i loft

Gulv Innvendig gulv

Standard innvendig gulv i loftsrom (ikke spesifisert i dokumenter)

Gulv for innredede rom i loft

Tømrer Innredning av loft

🧱 Trekonstruksjoner

Montering av trekonstruksjoner for kontor, bad, gjesterom og bod i loft

Innredning av loftsrom med vegger, tak og gulv

Vinduer Fasadevindu

🧱 Glass

Antall: 1

Vindu i gavlvegg for rømningsvei

Fasadevindu i gavl for rømningsluke i loft

Dører Rømningsluke med utfellbar rømningsstige

Antall: 1

Utfellbar rømningsstige med ryggbøyle

Rømningsluke med stige for loft

Elektro Elektriske installasjoner

Elektriske installasjoner for belysning og strøm i loftsrom

Elektrisk anlegg for loftsinnredning

Fasade Takvinduer og fasadeendringer

🧱 Tre og glass

Endringer i fasade med nye takvinduer og rømningsluke, basert på eksisterende trefasade

Fasadeendringer for å tilpasse loftsinnredning og rømningsveier

Plantegning

Enebolig 212.0 m²

Etasje 2 51.1 m²

Rom Areal Vinduer Dører
Stue/Kjøkken 201 33.5 m² 1 2
Sov 202 9.2 m² 1 1
Gang 203 6.2 m² 0 2
Bad 204 3.1 m² 0 1
Bod 205 4.2 m² 0 1
Sovning 206 9.9 m² 0 1
Balkong 207 8.0 m² 0 1
Sportsbod 208 4.9 m² 0 1
Sportsbod 209 4.9 m² 0 1

Etasje 3 17.7 m²

Rom Areal Vinduer Dører
Loftsbod 301 7.1 m² 0 1
Gjesterom 302 6.0 m² 1 1
Kontor 303 5.2 m² 1 1

Etasje 1 143.2 m²

Rom Areal Vinduer Dører
Sovning 101 9.3 m² 0 1
Kjøkken/Stue 102 23.7 m² 1 2
Bod 103 2.0 m² 0 1
Bad/Vask 104 3.4 m² 0 1
Entré 105 4.4 m² 0 2
Sovning 106 9.9 m² 0 1
Uteplass 107 0.0 m² 0 1
Sportsbod 108 4.9 m² 0 1
Sportsbod 109 4.9 m² 0 1

Fasader

Enebolig

Nord
Materiale
Tre
Taktype
Saltak
Vinduer
6
Dører
1
Synlige etasjer
2
Øst
Materiale
Tre
Taktype
Saltak
Vinduer
2
Dører
1
Balkonger
2
Synlige etasjer
2
Vest
Materiale
Tre
Taktype
Saltak
Høyde
6.2 m
Vinduer
1
Dører
0
Balkonger
1
Synlige etasjer
2
Sør
Materiale
Tre
Taktype
Flatt tak
Vinduer
7
Dører
2
Balkonger
2
Synlige etasjer
2

Hendelser

09.04.2026 74/28/0/4 Heslebergveien 2C - Søknad om ferdigattest
25.03.2026 74/28 snr. 4 - Tillatelse til tiltak for bruksendring og ominnredning av loft - del av 4-mannsbolig - Manglende ferdigattest eller midlertidig brukstillatelse
25.11.2020 74/28 snr. 4 - Gjennomføringsplan
14.07.2020 74/28 snr. 4 - Tillatelse til tiltak for bruksendring og ominnredning av loft - del av 4-mannsbolig
06.07.2020 74/28 snr. 4 Gjennomføringsplan - Bruksendring av loft til soverom, kontor og bod samt fasadeendring
30.06.2020 74/28 snr. 4 Svar på kommunens tilbakemelding - Bruksendring av loft til soverom, kontor og bod samt fasadeendring
29.04.2020 74/28 snr. 4 - Ufullstendig søknad om bruksendring fra loft til boligrom, samt fasadeendring - del av firemannsbolig
20.04.2020 74/28 snr. 4 - Kvitteringsbrev - Bruksendring av loft til soverom, kontor og bod samt fasadeendring
19.04.2020 74/28 snr. 4 - Søknad om bruksendring av loft til soverom, kontor og bod samt fasadeendring