ChangeOfUse Igangsettingstillatelse Leilighetsbygg

Bruksendring og fasadeendring av loft i leilighetsbygg, Holbergs gate 5A

📍 Holbergs gate 5A , 4608 KRISTIANSAND S

Nøkkelinfo

Sakstype
Bruksendring
Bygningstype
Leilighetsbygg
Bruksareal
40 m²
Kommune
Kristiansand
Fylke
Agder
Gnr / Bnr
150 / 558
Saksnummer
23/25329
Fase
Igangsettingstillatelse

Om byggesaken

Bruksendring av loftsareal på ca. 35,5 m² fra tilleggsdel til hoveddel i et fire-etasjers leilighetsbygg, inkludert fasadeendringer med takopplett og balkong/terrasse mot bakgården. Det etableres intern trappeforbindelse mellom loft og leilighet i 3. etasje, samtidig som et innvendig trapperom i 3. etasje endres til bod på 4,1 m². Fasadeendringene omfatter takopplett og balkong/terrasse, men senere endringer har fjernet bad i 4. etasje og fasadeendringer på enkelte sider. Bygget har pusset fasade med saltak tekket med tegl, og det er etablert flere balkonger mot sør. Tiltaket krever brannprosjektering og uavhengig kontroll, og det foreligger samtykke fra sameiet og naboer for plassering nærmere nabogrense. Igangsettingstillatelse er gitt for hele tiltaket.

Produkter og materialer

Dører Fasadedør

🧱 ukjent

Antall: 2

Dører i fasade nord og sør

Ytterdører som inngår i fasadeendring

Maling Fasademaling

🧱 Pusset fasade med gul farge

Fasade skal males i gul farge som eksisterende

Overflatebehandling av fasade

Grunnarbeid VA-tilkobling

Godkjent tilkobling til vann- og avløpsledning kreves før igangsetting

VA-arbeider og tilkobling til kommunalt nett

Trapper Innvendig trapp

🧱 ukjent

Antall: 1

Intern trappeforbindelse mellom loft og 3. etasje

Ny intern trapp som knytter loft til leilighet i 3. etasje

Fasade Pusset fasade

🧱 Pusset

Pusset fasade med gul farge

Fasadebehandling på eksisterende bygg

Tømrer Innvendig trapperom til bod

Antall: 1

Innvendig trapperom i 3. etasje endres til bod på 4,1 m²

Bruksendring av rom i eksisterende bygg

Vinduer Fasadevindu

🧱 ukjent

Antall: 21

Fasadevindu i pusset fasade, 11 mot nord og 10 mot sør

Fasadevindu som inngår i fasadeendring ved bruksendring av loft

Fasade Takopplett

🧱 ukjent

Antall: 1

Takopplett mot bakgård som del av fasadeendring, senere endret

Takopplett som endrer takets form og gir økt areal i loftsetasje

VVS Ventilasjon

Ventilasjonsavtrekk skal føres over tak, ikke i lavere høyde

Ventilasjonsløsning i henhold til kommunedelplan for Kvadraturen

Balkong Balkong/terrasse

🧱 ukjent

Antall: 3

Balkonger mot sørfasade, etablert i forbindelse med fasadeendring

Balkonger/terrasser som del av fasadeendring i loftsetasje

Bad Nedlagt bad i loft

Bad i 4. etasje utgår i endringssøknad

Bad som opprinnelig var planlagt i loft, men fjernet i endring

Tak Saltak med tegl

🧱 Tegl

Saltak tekket med tegl

Eksisterende taktype på bygget

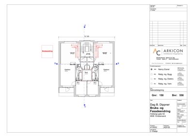
Plantegning

Enebolig 55.9 m²

Etasje 3 55.9 m²

Rom Areal Vinduer Dører
Kjøkken 301 14.8 m² 1 1
Kjøkken 302 13.9 m² 1 1
Sov 303 7.1 m² 0 1
Sov 304 7.1 m² 0 1
Bod 305 4.1 m² 0 2

Fasader

Bruksendring

Nord
Materiale
Pusset
Taktype
Saltak
Takmat.
Tegl
Høyde
11.8 m
Mønehøyde
18.6 m
Vinduer
11
Dører
1
Synlige etasjer
4
Sør
Materiale
Pusset
Taktype
Saltak
Takmat.
Tegl
Høyde
11.8 m
Mønehøyde
18.6 m
Vinduer
10
Dører
1
Balkonger
3
Synlige etasjer
4

Hovedbygg

Øst
Materiale
Tre
Taktype
Saltak
Vinduer
0
Dører
0
Balkonger
3
Synlige etasjer
3

Hendelser

22.04.2026 2023025329-19 Holbergs gate 5A - 150/558 snr.4, igangsettings-tillatelse for hele tiltaket.
21.04.2026 2023025329-18 Holbergs gate 5A Søknad om igangsettingstillatelse 150/558
17.04.2026 2023025329-17 Holbergs gate 5A -150/558 snr.4, endring av tillatelse for fasader og bruksendring.
14.04.2026 2023025329-16 Holbergs gate 5A Søknad om endring av gitt tillatelse eller godkjenning 150/558
24.01.2024 2023025329-14 Holbergs gate 5A - 150/558 - supplering av søknad
24.01.2024 2023025329-15 Holbergs gate 5A - 150/558 snr.4, rammetillatelse for fasadeendring og bruksendring av loft.
19.01.2024 2023025329-13 Holbergs gate 5A - 150/558 snr.4 - Søknad om bruksendring og fasadeendring - Supplering av søknad mht. snitt og fasadetegninger.
11.01.2024 2023025329-11 Holbergs gate 5A 150/558/0/4, supplering av søknad
11.01.2024 2023025329-10 Holbergs gate 5A 150/558/0/4, supplering av søknad
08.11.2023 2023025329-8 Holbergs gate 5A, melding om mottatt søknad