ChangeOfUse Ferdigattest Leilighetsbygg

Bruksendring til undervisningsformål i Landfalløya 26, Drammen

📍 Landfalløya 24 , 3023 DRAMMEN

Nøkkelinfo

Sakstype
Bruksendring
Bygningstype
Leilighetsbygg
Bruksareal
2,300 m²
Kommune
Drammen
Fylke
Buskerud
Gnr / Bnr
115 / 502
Saksnummer
20/36327
Fase
Ferdigattest

Om byggesaken

Bruksendring av deler av eksisterende næringsbygg i Landfalløya 26, Drammen, til undervisningsformål. Prosjektet omfatter 3. og 4. etasje med totalt ca. 2 300 m² bruksareal, hvor 4. etasje på 835,8 m² er godkjent for undervisning med rom som undervisningsrom, grupperom, garderober og tilhørende fasiliteter. 3. etasje er også ombygget til undervisningsarealer med undervisningsrom, grupperom, garderober og kjøkken. Bygget har ett trappeløp og heis, og det er gjennomført omfattende brannteknisk prosjektering, ventilasjonsarbeider, elektro, sanitær og brannvarslingsanlegg. Det er søkt og gitt dispensasjon fra dagslyskrav for deler av 4. etasje for å bevare rommets åpne og luftige karakter i tråd med pedagogiske prinsipper. Prosjektet har hatt flere søknadsrunder, tilsyn og krav om dokumentasjon, og det er gitt ferdigattest for bruksendringen i 4. etasje. Ansvarlige foretak er engasjert for prosjektering, utførelse og kontroll, og det foreligger godkjente gjennomføringsplaner og erklæringer om ansvarsrett.

Produkter og materialer

Heis Eksisterende heis

Antall: 1

Heis i bygget for tilgjengelighet

Heis for tilgjengelighet mellom etasjer

Ventilasjon Ventilasjonsanlegg

Ansvarlig foretak DIN BLIKKENSLAGER Henning Carstensen, erklæring om ansvarsrett

Ventilasjonsarbeider for undervisningsarealer

Sanitær Innvendig sanitærinstallasjon

Utført av HÅST RØR AS

Sanitærinstallasjoner for undervisningsarealer

Grunnarbeid Ingen nye grunnarbeider

Bruksendring i eksisterende bygg, ingen nye grunnarbeider

Ingen nye grunnarbeider nødvendig

Vinduer Doble vertikale vinduer og skråvinduer

🧱 To-lags isolerglass

70% lystransmisjon, 10% refleksjon, persienner på utsiden

Vinduer i undervisningsrom i 4. etasje med dagslysberegning og dispensasjon fra dagslyskrav

Gulv Standard gulv i undervisningsrom

Ikke spesifisert, men nødvendig for undervisningslokaler

Gulvbelegg i undervisningsrom og tilhørende rom

Trapper Innvendig trapp

Antall: 1

En trapp i bygget

Innvendig trapp for etasjeadkomst

Elektro Brannvarslingsanlegg og elektroinstallasjoner

Montering av brannvarslingsanlegg av KOLSÅS ELEKTRO OG VARME AS

Elektroarbeider knyttet til brannvarsling og øvrige installasjoner

Fasade Bevaring av eksisterende fasade

Bygget er vernet utvendig, ingen større fasadeendringer

Bevaring av byggets arkitektoniske uttrykk og fasade i forbindelse med bruksendring

Brannvern Brannkonsept og brannvarslingsanlegg

Brannteknisk prosjektering i tiltaksklasse 2, uavhengig kontroll, brannvarslingsanlegg fra Honeywell

Brannsikkerhetstiltak for bruksendring til undervisning

Tømrer Innvendige bygningsmessige arbeider

Utført av BEAR BYGG AS

Innvendige ombygginger for tilpasning til undervisningsformål

Maling Innvendig maling

Matt hvit maling på vegger og tak for god refleksjon av lys

Innvendig overflatebehandling for undervisningslokaler

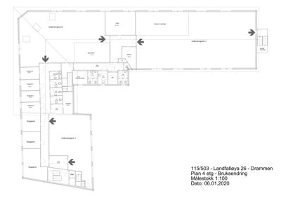
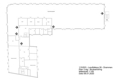
Plantegning

Akademiet 835.8 m²

Etasje 4 835.8 m²

Rom Areal Vinduer Dører
Undervisningsrom 3 401 158.1 m² 0 1
Grupeom 1 402 6.3 m² 0 1
Grupeom 2 403 8.8 m² 0 1
Heis 404 0.0 m² 0 0
Gang 405 10.3 m² 0 2
Undervisningsrom 2 406 124.7 m² 4 1
Bod 407 32.1 m² 0 1
Lager 408 51.0 m² 0 1
Lager 409 181.5 m² 0 1
Gang 410 23.4 m² 0 2
Lagerom 411 50.0 m² 0 1
Lagerom 412 10.8 m² 0 1
Kopirom/verk 413 31.5 m² 0 1
Gang 414 20.0 m² 0 2
Gang 415 27.0 m² 0 2
Gang 416 30.0 m² 0 2
Grupeom 3 417 6.4 m² 0 1
Grupeom 4 418 8.0 m² 0 1
Grupeom 5 419 8.9 m² 0 1
Grupeom 6 420 9.9 m² 0 1
Wc 421 3.1 m² 0 1
Wc 422 4.1 m² 0 1
Wc 423 4.1 m² 0 1
Wc 424 4.2 m² 0 1
Wc 425 5.7 m² 0 1
Wc 426 5.7 m² 0 1
Garderobe ansatte 427 11.5 m² 0 1
Heis 428 5.7 m² 0 0
Ventilasjon 429 9.3 m² 0 0
Bod 430 5.0 m² 0 1
Kott 431 1.8 m² 0 1
EL 432 0.0 m² 0 0
Uvendig Branntrapp 433 0.0 m² 0 0

Bruksendring 468.8 m²

Etasje 3 0.0 m²

Rom Areal Vinduer Dører
Kjøkken 301 0.0 m² 1 1
Garderobe 302 0.0 m² 1 1
Garderobe 303 0.0 m² 1 1
Kjøkken 304 0.0 m² 1 1
Gang 305 0.0 m² 0 2
Lager 306 0.0 m² 1 1
Gang 307 0.0 m² 0 2
Eksisterende undervisning 308 0.0 m² 1 1
Gang 309 0.0 m² 0 2
Eksisterende undervisning 310 0.0 m² 1 1
Nytt undervisningsareal 311 0.0 m² 0 0
Undervisningsrom 312 50.6 m² 0 1
Undervisningsrom 313 20.6 m² 0 1
Gang 314 11.5 m² 0 2
Gang 315 17.8 m² 0 2
Gang 316 7.0 m² 0 2
Garderobe 317 13.2 m² 0 2
Garderobe 318 13.8 m² 0 2
Grovkjøkken 319 9.5 m² 0 1
Garderobe 320 9.0 m² 0 2
WC 321 5.7 m² 0 2
WC 322 5.7 m² 0 2
Heis 323 4.5 m² 0 1
HC - WC 324 5.7 m² 0 2
Eksisterende undervisning 325 0.0 m² 0 0
Eksisterende undervisning 326 0.0 m² 0 0
Eksisterende undervisning 327 0.0 m² 0 0
Eksisterende undervisning 328 0.0 m² 0 0
Gang 329 0.0 m² 0 0
Korridor 330 134.1 m² 0 4
Grupperom 331 11.6 m² 0 1
Grupperom 332 11.6 m² 0 1
Grupperom 333 11.8 m² 0 1
Grupperom 334 11.9 m² 0 1
Sluse 335 3.2 m² 0 2
Sluse 336 3.2 m² 0 2

Etasje 4 468.8 m²

Rom Areal Vinduer Dører
Undervisningsrom 1 401 10.3 m² 0 2
Gang 402 10.3 m² 0 2
Grupeom 403 0.0 m² 0 1
Grupeom 404 0.0 m² 0 1
Grupeom 405 0.0 m² 0 1
Hels 406 0.0 m² 0 1
Ventilasjon 407 9.3 m² 0 1
Bod 408 5.0 m² 0 1
Garderobe ansatte 409 8.5 m² 0 1
Undervisningsrom 2 410 0.0 m² 1 1
Kopirom/labor 411 31.6 m² 0 1
Gang 412 16.2 m² 0 2
Grupeom 3 413 8.4 m² 0 1
Grupeom 4 414 8.5 m² 0 1
Grupeom 5 415 8.9 m² 0 1
Grupeom 6 416 8.9 m² 0 1
Wc 417 3.1 m² 0 1
Wc 418 4.1 m² 0 1
Wc 419 4.1 m² 0 1
Wc 420 4.2 m² 0 1
Wc 421 5.7 m² 0 1
Wc 422 5.7 m² 0 1
Hels 423 0.0 m² 0 1
Kontor 424 31.1 m² 0 1
Grupeom m glassvegg 425 0.0 m² 0 1
Undervisningsrom 3 426 0.0 m² 0 1
Lagerrom 427 10.8 m² 0 1
EL 428 0.0 m² 0 1
Koll 429 1.6 m² 0 1

Hendelser

09.04.2026 Landfalløya 26, ferdigattest for bruksendring 4. etasje
20.03.2026 Landfalløya 26, Søknad om ferdigattest
29.01.2026 Landfalløya 26 Supplering av søknad 115/503
03.09.2024 Landfalløya 26 telefonsamtale om videre gang i saken
03.09.2024 Landfalløya 26, saken avsluttes da søknaden er trukket
15.07.2024 Landfalløya 26, Informasjon vedr tidligere innsendt søknad om midlertidig brukstillatelse
11.07.2024 Landfalløya 26, vi vurderer å avslå din søknad om midlertidig brukstillatelse
14.05.2024 Landfalløya 26, tillatelse til endring av gitt tillatelse for bruksendring til undervisningsformål
13.05.2024 Landfalløya 26, vi trenger flere opplysninger for å behandle søknaden din om midlertidig brukstillatelse
27.04.2024 Landfalløya 26, melding om mottatt søknad
26.04.2024 Landfalløya 26 Søknad om midlertidig brukstillatelse 115/503
05.04.2024 Landfalløya 26, Vi innvilger søknaden om samtykke etter automatisk saksbehandling
14.02.2024 Landfalløya 26, ber om utsettelse av frist
06.02.2024 Landfalløya 26, vi trenger flere opplysninger for å behandle søknaden din
15.03.2023 Landfalløya 26, til info fra søker
25.09.2020 Landfalløya 26, uttalelse fra Miljørettet helsevern
04.08.2020 Landfalløya 26, Supplerende dokumentasjon
07.07.2020 Landfalløya 26, Søknaden mangler dokumentasjon
15.04.2020 Landfalløya 26, Søknad om endring av gitt tillatelse