ChangeOfUse Soeknad Leilighetsbygg

Bruksendring og brann-/lydskilleendring i bolig, Olaf Bergers vei 34

📍 Olaf Bergers vei 34 , 3022 DRAMMEN

Nøkkelinfo

Sakstype
Bruksendring
Bygningstype
Leilighetsbygg
Bruksareal
147 m²
Boenheter
2
Kommune
Drammen
Fylke
Buskerud
Gnr / Bnr
115 / 569
Saksnummer
26/09786
Fase
Søknad

Om byggesaken

Endring av brann- og lydskille mellom eksisterende boenheter i en eldre bolig på Olaf Bergers vei 34 i Drammen. Bruksendring av deler av kjeller fra tilleggsdel (bod) til hoveddel (soverom og bad), samt motsatt bruksendring fra WC til bod. Etablering av nytt rømningsvindu i kjeller. Tiltaket omfatter oppgradering av branncellebegrensende konstruksjoner og lydskiller i bygningen, uten endring av bygningens hovedstruktur eller antall boenheter. Bygningen er en eldre tomannsbolig med tre etasjer og totalt ca. 146,7 m² BRA. Tiltaket er begrenset til innvendige arbeider og mindre fasadeendringer knyttet til rømningsvindu.

Arbeidsomfang

- Innvendig oppføring av nye brannskiller mellom eksisterende boenheter - Innvendig oppføring av nye lydskiller mellom boenheter - Endring av romoppdeling (omlegging fra tilleggsdel til hoveddel) - Demonasjon og fjerning av eksisterende innvendige skillevegger - Elektriske og vann/avløpsanpassninger for ny oppdeling

Produkter og materialer

Dører Innvendige dører

Antall: 15

Innvendige dører i kjeller og etasjer, totalt ca. 15 dører

Dører til rom i bolig for oppgradering og tilpasning

Vinduer Rømningsvindu i kjeller

Antall: 1

Nytt rømningsvindu med fastmontert trinn under, dimensjon ca. 11 x 8 (antatt dm)

Etablering av nytt rømningsvindu i kjeller for soverom

Fasade Fasadeendring for rømningsvindu

🧱 Tre

Antall: 1

Mindre fasadeendring i eksisterende yttervegg for nytt rømningsvindu

Fasadearbeid knyttet til etablering av rømningsvindu i kjeller

Ventilasjon Ventilasjon i kjeller og bad

Ventilasjonstiltak i kjeller og bad for å tilfredsstille krav ved bruksendring

Ventilasjon for nye hoveddeler i kjeller

Isolasjon Isolasjon i brann- og lydskille

Isolasjon for brann- og lydskille mellom boenheter

Isolasjon for å oppnå forskriftsmessige brann- og lydkrav

Bad Bad i kjeller og etasjer

Antall: 3

Bad på 6,3 m² i kjeller, 2,2 m² i 1. etasje og 3,4 m² i 2. etasje

Oppgradering og tilpasning av bad i forbindelse med bruksendring

Gulv Gulv i kjeller og boenheter

Oppgradering av gulv i kjeller ved bruksendring til hoveddel

Gulvarbeid i kjeller for soverom og bad

Tømrer Brann- og lydskille mellom boenheter

Oppgradering og dokumentasjon av branncellebegrensende og lydisolerende konstruksjoner mellom bruksenheter

Utførelse av tømrerarbeid for oppgradering av brann- og lydskille

Mur Innvendige vegger og skillevegger

Endring av innvendige vegger for bruksendring og oppgradering av skillevegger

Arbeid med innvendige vegger i kjeller og mellom boenheter

Elektro Elektrisk anlegg

Oppgradering av elektrisk anlegg i kjeller og boenheter i forbindelse med bruksendring

Elektriske installasjoner for nye romfunksjoner

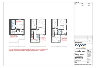
Plantegning

Enebolig 146.7 m²

Etasje 0 29.7 m²

Rom Areal Vinduer Dører
Gang/trapp 001 4.7 m² 0 2
Bad 002 6.3 m² 0 1
Soverom 003 13.1 m² 1 1
Bod 004 1.0 m² 0 1
Gang 005 4.3 m² 0 1

Etasje 1 69.5 m²

Rom Areal Vinduer Dører
Entre 101 4.0 m² 0 2
Gang/trapp 102 6.4 m² 0 2
Bad 103 2.2 m² 0 1
Sov 104 9.0 m² 1 1
Stue/kjøkken 105 24.8 m² 2 1

Etasje 2 47.5 m²

Rom Areal Vinduer Dører
Gang/trapp 201 5.6 m² 0 2
Sov 202 6.0 m² 1 1
Gang 203 1.9 m² 0 1
Stue/kjøkken 204 21.2 m² 2 1
Bad 205 3.4 m² 0 1
Bod 206 10.3 m² 0 1

Fasader

Olaf Bergers vei 34

Nord
Materiale
Tre
Taktype
Flatt tak
Vinduer
4
Dører
1
Balkonger
1
Synlige etasjer
2
Vest
Materiale
Tre
Taktype
Saltak
Vinduer
2
Dører
1
Balkonger
1
Synlige etasjer
2

Hendelser

31.03.2026 Olaf Bergers vei 34 Søknad om rammetillatelse 115/569 rammetillatelse