ChangeOfUse Ferdigattest Leilighetsbygg

Bruksendring av 1. etasje til leilighet i Sjøgata 26, Andenes

📍 Sjøgata 26A , 8480 ANDENES

Nøkkelinfo

Sakstype
Bruksendring
Bygningstype
Leilighetsbygg
Bruksareal
147 m²
Boenheter
1
Kommune
Andøy
Fylke
Nordland - Nordlánnda
Gnr / Bnr
48 / 71
Saksnummer
2024/1939
Fase
Ferdigattest

Om byggesaken

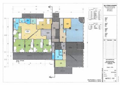
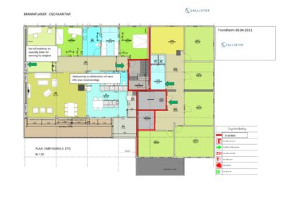
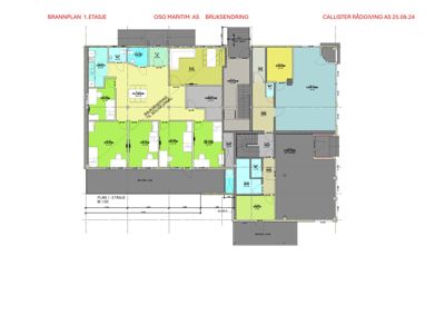
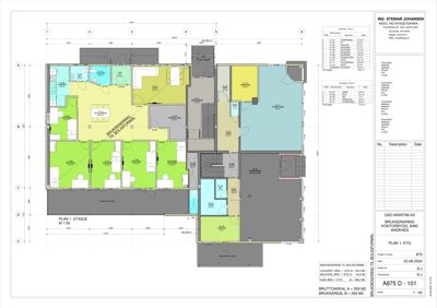
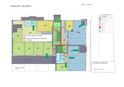
Bruksendring av 147 m² i 1. etasje av eksisterende kontorbygg i Sjøgata 26, Andenes, til boligformål. Prosjektet omfatter etablering av én ny boenhet med flere soverom, stue, kjøkken, bad, teknisk rom og bod. Det er foretatt mindre fasadeendringer med innsetting av nytt vindu og endring av størrelse på eksisterende vindu. Bygget har flatt tak og platemontasje på fasadene. Tiltaket inkluderer omfattende branntekniske tiltak som brannalarmanlegg kategori II, ledesystem, håndslokkere og tilfredsstillende rømningsveier. Ventilasjon tilpasses boligformål. Parkeringsløsning er sikret gjennom frikjøp av kommunal parkeringsplass. Prosjektet har gjennomgått rammesøknad, igangsettingstillatelse og ferdigattest, med tilhørende ansvarserklæringer og uavhengig kontroll.

Produkter og materialer

Trapper Innvendig trapp

Antall: 1

Innvendig trappeløp med R30 A2-s1,d0 brannmotstand

Innvendig trapp mellom etasjer med brannmotstand

Ventilasjon Ventilasjonsanlegg

Antall: 1

Ventilasjonsanlegg tilpasset boligformål, med branntetting og materialer i klasse A2-s1,d0

Ventilasjonsanlegg med fettfilter og rengjørbare kanaler, brannmotstand EI 15 A2-s1,d0 for kjøkkenavtrekk

Dører Ytterdører og innvendige dører

Antall: 15

Dører i branncellebegrensende vegger med EI2 30-Sa brannmotstand, lydklassifiserte soveromsdører

Ytterdører og innvendige dører til soverom, teknisk rom og rømningsvei med brann- og lydkrav

Fasade Platemontasje

🧱 Platemontasje

Antall: 4

Fasader med platemontasje og flatt tak

Fasader i platemontasje på alle sider av bygget med flatt tak

Grunnarbeid Parkeringsløsning

Antall: 1

Frikjøp av kommunal parkeringsplass for én plass, avtale signert og godkjent

Parkeringsløsning sikret gjennom frikjøp av kommunal parkeringsplass i nærheten av bygget

Tak Flatt tak

Antall: 1

Eksisterende flatt tak med taktekking klasse BROOF(t2)

Flatt tak med brannklasse BROOF(t2)

Vinduer Fasadevindu

🧱 Platemontasje

Antall: 33

Nye vinduer i fasade, inkludert nytt vindu mot vest og endring av størrelse på eksisterende vindu mot nord

Fasadevinduer i platemontasje på alle fasader, totalt 33 vinduer i bygget

Mur Branncellebegrensende konstruksjoner

🧱 EI 60 (B60)

Branncellebegrensende vegger og dekker med EI 60 brannmotstand

Branncellebegrensende konstruksjoner i leiligheten

Brannvern Håndslokkere

Håndslokkere med effektivitetsklasse 21A etter NS-EN 3-7, merket i henhold til NS-ISO 3864-serien

Håndslokkere plassert i leiligheten i henhold til brannplan

Tømrer Lettvegger

Tømrerarbeider for lettvegger i tiltaket

Utførelse av lettvegger i leiligheten

Elektro Nødlys og ledesystem

Antall: 1

Ledesystem og nødlys i rømningsvei i henhold til NS 3926 og NS-EN 1838

Ledesystem med markeringsskilt over utganger og i rømningsvei, med minimum 60 minutters nøddriftstid

Brannvern Brannalarmanlegg

Antall: 1

Brannalarmanlegg kategori II med direktevarsling til brannvesenet, i henhold til NS 3960:2013 og NS-EN-54

Fullt dekkende brannalarmanlegg med optisk og akustisk varsling i leiligheten

Fasader

Kontorbygg

Sør
Materiale
Platemontasje
Taktype
Flatt tak
Vinduer
10
Dører
1
Synlige etasjer
3
Nord
Materiale
Platemontasje
Taktype
Flatt tak
Vinduer
10
Dører
2
Synlige etasjer
3
Øst
Materiale
Platemontasje
Taktype
Flatt tak
Vinduer
6
Dører
1
Synlige etasjer
3
Vest
Materiale
Platemontasje
Taktype
Flatt tak
Vinduer
6
Dører
1
Synlige etasjer
3

Hendelser

16.04.2026 Ferdigattest
16.04.2026 Supplering
15.04.2026 Supplering
19.03.2026 Besvarer brev om behov for tilleggsdokumentasjon
18.03.2026 Igangsettingstillatelse
18.03.2026 Behov for tilleggsdokumentasjon
16.03.2026 Supplering av søknad
09.03.2026 Fortsatt behov for tilleggsdokumentasjon
09.03.2026 Behov for tilleggsdokumentasjon
09.03.2026 Supplering av søknad
27.01.2026 Etterlyser svar på søknad
27.01.2026 Svar fra SØK angående tekniske krav
08.12.2025 Besvarer spørsmål
08.12.2025 Foreløpig tilbakemelding
08.12.2025 Fortsatt behov for tilleggsdokumentasjon
08.12.2025 Svar på henvendelse
08.12.2025 Spørsmål om saksnummer
08.12.2025 Spørsmål om saksnummer
08.12.2025 Supplering av søknad
08.12.2025 Informasjon om byggtekniske krav og muligheten til å søke om unntak for tiltak i eksisterende bygg
08.12.2025 Spørsmål om mangelbrev og fristutsettelse
08.12.2025 Supplering av søknad
08.12.2025 Supplering av søknad
08.12.2025 Henvendelse om behov for tilleggsdokumentasjon
08.12.2025 Henvendelse om behov for tilleggsdokumentasjon
08.12.2025 Besvarer spørsmål
08.12.2025 Besvarer spørsmål
08.12.2025 Supplering av søknad
12.11.2025 Signert avtale - frikjøp - parkering
05.11.2025 Melding om opphør av ansvarsrett
27.10.2025 Supplering av søknad
27.10.2025 Ber om utsettelse av frist
27.10.2025 Ny frist for innsending av tilleggsdokumentasjon
21.10.2025 Behov for tilleggsdokumentasjon
21.10.2025 Aksept
13.10.2025 Søknad om frikjøp av parkeringsplass
10.10.2025 Orientering om vedtak - søknad om dispensasjon fra parkeringskrav - gnr. 48 bnr. 71
17.09.2025 Behandling av dispensasjon fra krav om parkering - Sjøgata 26A - GBNr 48/71
26.08.2025 Søknad om dispensasjon fra parkeringskrav i reguleringsplan
19.08.2025 SØKNAD OM FERDIGATTEST , LEILIGHET 1. ETG G.NR 48/49, BR.NR 18,19,71,
18.08.2025 SØKNAD OM IGANGSETTING , LEILIGHET 1. ETG G.NR 48/49, BR.NR 18,19,71,
19.06.2025 Rammetillatelse - Gnr 48 bnr 71 - Sjøgata 26 A
04.03.2025 Tilleggsdokumentasjon
26.02.2025 Møtereferat underveismøte
13.02.2025 Ønske om avklaringsmøte
12.02.2025 Gnr 48 bnr 71 - Behov for tilleggsdokumentasjon
03.01.2025 Tilleggsdokumentasjon - Søknad i ett trinn frafalles
03.01.2025 Behov for tilleggsdokumentasjon
08.10.2024 Søknad om rammetillatelse 48/71
21.08.2024 Foreløpig svar
19.08.2024 Fortsatt behov for tilleggsdokumentasjon - Gnr 48 bnr 71
19.08.2024 Tilbakemelding fra ansvarlig søker
26.06.2024 Søknadsblankett med underskrift
26.06.2024 Supplering av søknad - Seksjoneringsplan, sluttkontroll brann
26.06.2024 Behov for tilleggsdokumentasjon - Gnr 48 bnr 71
26.06.2024 Supplering av søknad - Snittegning, ansvarsrett brannteknisk prosjektering
25.06.2024 Melding om mottatt søknad - Gnr 48 bnr 71 - Sjøgata 26 A
12.06.2024 Søknad om bruksendring av kontorer til leilighet
05.06.2024 Nabovarsel