ChangeOfUse UnderBehandling Leilighetsbygg

Bruksendring til 2 boenheter i Nedre Torvgate 14C, Gjøvik

📍 Sommerfeldts gate 4 , 2815 GJØVIK

Nøkkelinfo

Sakstype
Bruksendring
Bygningstype
Leilighetsbygg
Bruksareal
379 m²
Boenheter
2
Kommune
Gjøvik
Fylke
Innlandet
Gnr / Bnr
67 / 947
Saksnummer
2021/3142
Fase
Under behandling

Om byggesaken

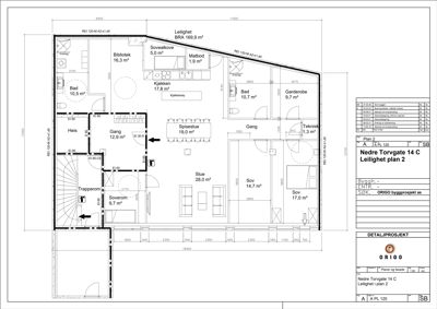
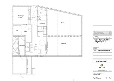
Bruksendring av eksisterende næringsarealer i Nedre Torvgate 14C til to boenheter fordelt på 1. og 2. etasje. 1. etasje inneholder en mindre leilighet på ca. 120,5 m² med rom som stue, kjøkken, bad, sovealkove, boder og garderobe. 2. etasje inneholder en større leilighet på ca. 258,5 m² med flere soverom, bad, kjøkken, stue, spisestue, garderober og teknisk rom. Det er ingen fasadeendringer, og uteoppholdsareal er felles takterrasse på ca. 160 m². Parkeringskravet er løst ved kjøp av to parkeringsplasser i garasjeanlegg til Samfundsbakken borettslag. Tiltaket inkluderer oppgradering av våtrom, ventilasjon, sanitærinstallasjoner og brannsikkerhet i tiltaksklasse 1. Prosjektet har gjennomgått omfattende saksbehandling med krav til dokumentasjon, nabovarsling, og er gitt tillatelse i 2022. Ferdigattest søkes i 2026.

Produkter og materialer

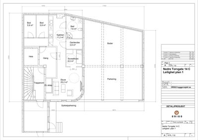
Trapper Innvendig trapp

Antall: 1

Eksisterende trapp i bygget

Annet Sykkelparkering

Antall: 12

Sykkelparkering inntegnet ved inngangspartiet på plan 1

Sykkelparkering for beboere

Bad Membran og flisarbeider

Membran på våtrom, bad, flisarbeider, tiltaksklasse 1

Oppgradering av bad med membran og flisarbeider

VVS Sanitærinstallasjoner

Sanitærinstallasjoner vann og avløp, vannmåler fjernes etter sanitærmelding

Oppgradering av sanitærinstallasjoner i forbindelse med bruksendring

Ventilasjon Ventilasjonsanlegg for bolig

Balansert ventilasjon med hulltaking i fasade med brannspjeld, ventilasjonsanlegg for bolig

Ventilasjonsanlegg tilpasset boligformål med brannsikring

Grunnarbeid Parkeringsplasser

Antall: 2

To parkeringsplasser kjøpt i garasjeanlegg til Samfundsbakken borettslag

Parkeringskrav løst ved kjøp av to parkeringsplasser som følger eiendommen

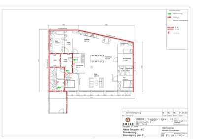
Brannvern Brannsikkerhet

Brannprosjektering i tiltaksklasse 1, branntegninger og brannteknisk notat

Brannsikring i henhold til gjeldende forskrifter for bolig

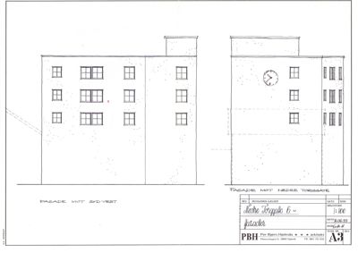
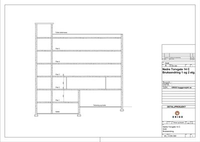
Fasade Ingen endringer

Ingen fasadeendringer, ingen nye vinduer eller dører i fasade

Fasaden beholdes som eksisterende uten endringer

Tømrer Innvendige lettvegger

Innvendige lettvegger i leilighetene

Oppføring og endring av innvendige lettvegger

Gulv Gulvbelegg

Oppgradering av gulv i leilighetene, antatt parkett eller tilsvarende

Dører Innvendige dører

Antall: 18

Innvendige dører i leilighetene fordelt på bad, garderobe, boder, soverom og gang

Vinduer Fasadevindu

Antall: 1

1 vindu i sovealkove i 2. etasje

Eksisterende vinduer i leilighetene, ingen nye fasadeendringer

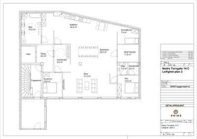
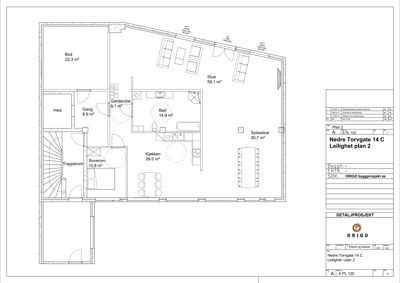
Plantegning

Leilighet 379.0 m²

Etasje 1 120.5 m²

Rom Areal Vinduer Dører
Stuve 101 25.2 m² 0 1
Gang 102 0.0 m² 0 2
Kjøkken 103 11.2 m² 0 1
Bad 104 7.6 m² 0 1
Garderobe 105 3.6 m² 0 1
Sovealkove 106 6.0 m² 0 1
Bod 107 5.9 m² 0 1
Bod 108 5.9 m² 0 1
Heis 109 0.0 m² 0 0
Trapperom 110 0.0 m² 0 0
EL-skap 111 0.0 m² 0 0
Boder 112 0.0 m² 0 0
Parkering 113 0.0 m² 0 0
Sykkelparkering 114 0.0 m² 0 0

Etasje 2 258.5 m²

Rom Areal Vinduer Dører
Bad 201 14.0 m² 0 1
Gang 202 8.2 m² 0 1
Kjøkken 203 35.7 m² 0 0
Sovealkove 204 7.9 m² 1 0
Heis 205 0.0 m² 0 0
Gang 206 8.9 m² 0 1
Garderobe 207 9.9 m² 0 1
Spisestue 208 30.3 m² 0 0
Bod/TeKnisk 209 11.6 m² 0 1
Bad 210 2.6 m² 0 1
Garderobe 211 2.8 m² 0 1
Stue 212 28.0 m² 0 0
Sov 213 10.6 m² 0 1
Trapperom 214 0.0 m² 0 0
Soverom 215 10.8 m² 0 1
Trapperom 216 0.0 m² 0 0

Parkeringsplan 0.0 m²

Etasje 0 0.0 m²

Rom Areal Vinduer Dører
Samf. 1 0.0 m² 0 0
Samf. 2 0.0 m² 0 0
Først 3 0.0 m² 0 0
Hagen 4 0.0 m² 0 0
Gund 5 0.0 m² 0 0
L. (m) Hudi 6 0.0 m² 0 0
Grunn 7 0.0 m² 0 0
Grunn 8 0.0 m² 0 0
Grunn 9 0.0 m² 0 0
Grunn 10 0.0 m² 0 0
Grunn 11 0.0 m² 0 0
H. (m) S. (m) 12 0.0 m² 0 0
H. (m) S. (m) 13 0.0 m² 0 0
H. (m) S. (m) 14 0.0 m² 0 0
L. (m) S. (m) 15 0.0 m² 0 0
H. (m) S. (m) 16 0.0 m² 0 0
Fins 17 0.0 m² 0 0
Fins 18 0.0 m² 0 0
DN 19 0.0 m² 0 0
Bui 20 0.0 m² 0 0
Bui 21 0.0 m² 0 0
H. (m) S. (m) 22 0.0 m² 0 0
H. (m) S. (m) 23 0.0 m² 0 0
H. (m) S. (m) 24 0.0 m² 0 0
Evensen 25 0.0 m² 0 0
Rams 26 0.0 m² 0 0
E. (m) K. (m) 27 0.0 m² 0 0
E. (m) K. (m) 28 0.0 m² 0 0
B. (m) K. (m) 29 0.0 m² 0 0
Rune 30 0.0 m² 0 0
Rune 31 0.0 m² 0 0
N. (m) K. (m) 32 0.0 m² 0 0
N. (m) K. (m) 33 0.0 m² 0 0
G. (m) K. (m) 34 0.0 m² 0 0
G. (m) K. (m) 35 0.0 m² 0 0
G. (m) K. (m) 36 0.0 m² 0 0
Husen 37 0.0 m² 0 0
R. (m) S. (m) 38 0.0 m² 0 0
R. (m) S. (m) 39 0.0 m² 0 0
P. (m) S. (m) 40 0.0 m² 0 0
F. (m) S. (m) 41 0.0 m² 0 0
F. (m) S. (m) 42 0.0 m² 0 0
H. (m) S. (m) 43 0.0 m² 0 0

Fasader

Nedre Torggate 6

Sydvest
Vinduer
11
Dører
0
Synlige etasjer
3
Sør
Vinduer
7
Dører
0
Synlige etasjer
3

Hovedbygg

Nordøst
Vinduer
22
Dører
1
Synlige etasjer
4

Hendelser

15.04.2026 67/947 - Nedre Torvgate 14C, Gjøvik - Gjennomføringsplan
14.04.2026 67/947 - Nedre Torvgate 14C, Gjøvik - Behov for ytterligere dokumentasjon - gjennomføringsplan
30.03.2026 67/947 - Nedre Torvgate 14, Gjøvik - Søknad om ferdigattest
22.09.2025 67/947 - Nedre Torvgate 14C, Gjøvik - Vedr. søknad om ferdigattest for leilighet i plan 1
17.11.2023 67/947 - Nedre Torvgate 14C, Gjøvik - Svar vedrørende endring av ansvarsrett
16.10.2023 67/947 - Nedre Torvgate 14C, Gjøvik - Søknad om endring av gitt tillatelse eller godkjenning
20.10.2022 67/947 - Nedre Torvgate 14C, Gjøvik - Svar vedr. ventilasjon
24.08.2022 67/947 - Nedre Torvgate 14C, Gjøvik - Ettersendelse av dokumentasjon i byggesak
19.08.2022 67/947 - Nedre Torvgate 14C - Skisse over parkeringsplasser
26.07.2022 67/947 - Nedre Torvgate 14, Gjøvik - E-post med rettelse til vedtaket
26.07.2022 67/947 - Nedre Torvgate 14C, Gjøvik - Presisering om vedtak av 06.07.2022
26.07.2022 67/947 - Nedre Torvgate 14C, Gjøvik - Vedtak om tillatelse til bruksendring av næringsarealer til boenheter
26.07.2022 67/947 - Nedre Torvgate 14C, Gjøvik - Underretning om vedtak om tillatelse til bruksendring
15.06.2022 67/947 - Nedre Torvgate 14C, Gjøvik - Uttalelse fra Showstart AS og Samfundsbakken borettslag vedrørende to p-plasser
10.06.2022 67/947 - Nedre Torvgate 14C - Tinglyst rettighet om parkering
09.06.2022 67/947 - Nedre Torvgate 14C, Gjøvik - Kjøp av parkeringsplasser
30.05.2022 67/947 - Nedre Torvgate 14C, Gjøvik - Frikjøp av p-plasser
30.05.2022 67/947 - Nedre Torvgate 14C, Gjøvik - Dialog Frikjøp av p-plasser
30.05.2022 67/947 - Nedre Torvgate 14C, Gjøvik - Vi fikk kjøpt 2 p-plasser
30.05.2022 67/947 - Øvre Torvgate 24 C, Gjøvik, kvittering for kjøp av to p-plasser
30.05.2022 67/947 - Nedre Torvgate 14C, Gjøvik - Avtale/tinglysning 2 plasser
30.05.2022 67/947 - Øvre Torvgate 24 C, Gjøvik - Kvittering for kjøp av to p-plasser
23.03.2022 67/947 - Nedre Torvgate 14C, Gjøvik - Kvittering for kjøp av to p-plasser i Øvre Torvgate 24
23.03.2022 67/947 - Nedre Torvgate 14C, Gjøvik - Ønsker en redegjørelse for om det er tenkt å søke om frikjøp av p-plasser
23.03.2022 67/947 - Nedre Torvgate 14C, Gjøvik - Vedrørende parkeringsplasser og evnt frikjøp
18.03.2022 67/947 - Nedre Torvgate 14C, Gjøvik - Bekreftelse for frikjøp av p-plasser Gjøvik kommune
03.03.2022 67/947 - Nedre Torvgate 14C, Gjøvik - Avklaringer vedrørende frikjøp av p-plasser
08.02.2022 67/947 - Nedre Torvgate 14C, Gjøvik - Oversendelse av etterspurt dokumentasjon
08.12.2021 67/947/11 - Nedre Torvgate 14, Gjøvik - Svar på spørsmål fra tiltakshaver
08.12.2021 67/947 - Nedre Torvgate 14C, Gjøvik - Vedrørende søknad
08.12.2021 67/947/11 - Nedre Torvgate 14C, Gjøvik - Kopi - Vedrørende bruksendring av p-plasser
21.09.2021 67/947 - Nedre Torvgate 14C, Gjøvik - Ettersendt dokumentasjon
07.09.2021 67/947 - Nedre Torvgate 14C, Gjøvik - Vedrørende ønsker om utsettelse av frist med innsendelse av dokumentasjon
19.07.2021 67/947 - Nedre Torvgate 14C - Behov for ytterligere dokumentasjon i søknad om bruksendring fra næring til bolig
19.07.2021 67/947 - Nedre Torvgate 14C, Gjøvik - Vedrørende ønsker om utsettelse av frist med innsendelse av dokumentasjon i byggesak
14.07.2021 67/947 - Nedre Torvgate 14C, Gjøvik - Ber om forlenget tidsfrist, behov for ytterligere dokumentasjon
23.06.2021 67/947 - Nedre Torvgate 14 C - Bruksendring til bolig - Tolkningsuttalelse
19.05.2021 67/947 - Nedre Torvgate 14C, Gjøvik - Bruksendring til bolig - Mailkorrespondanse
20.04.2021 67/947 - Nedre Torvgate 14C, Gjøvik - Bruksendring til bolig - Søknad om tillatelse i ett trinn
15.04.2021 67/947 - Nedre Torvgate 14C, Gjøvik - Bruksendring til bolig - Ønske om tolkningsuttalelse