ChangeOfUse Rammetillatelse Leilighetsbygg

Bruksendring og fasadeendring i leilighetsbygg, Tollbugata 14, Drammen

📍 Tollbugata 14 , 3044 DRAMMEN

Nøkkelinfo

Sakstype
Bruksendring
Bygningstype
Leilighetsbygg
Bruksareal
241 m²
Boenheter
1
Kommune
Drammen
Fylke
Buskerud
Gnr / Bnr
110 / 551
Saksnummer
23/46827
Fase
Rammetillatelse

Om byggesaken

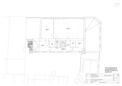
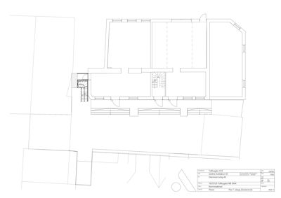
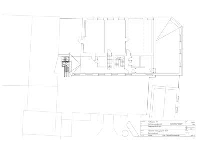
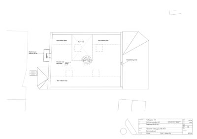
Bruksendring av eksisterende forsamlingslokale og mesanin i Tollbugata 14, Drammen, til en boligseksjon med tilhørende fasadeendringer. Bygningen er en verneverdig, pusset teglbygning med 2,5 etasjer og saltak, lokalisert i et kulturmiljø av nasjonal interesse. Tiltaket omfatter etablering av en boenhet på ca. 240 m² bruttoareal fordelt på 2. og 3. etasje, med reetablering av vindu i sørfasade, nye takvinduer i takflaten, og oppføring av ny balkong på østfasaden. Det er også planlagt opprusting av felles utearealer i bakgården og tilrettelegging for sykkelparkering. Bygget skal beholde næringslokaler i første etasje. Tiltaket inkluderer branntekniske oppgraderinger i henhold til TEK17, og det er gitt dispensasjon fra parkeringskrav. Prosjektet har gjennomgått omfattende saksbehandling med flere suppleringer og endringer, og rammetillatelse er gitt for bruksendring og fasadeendringer.

Produkter og materialer

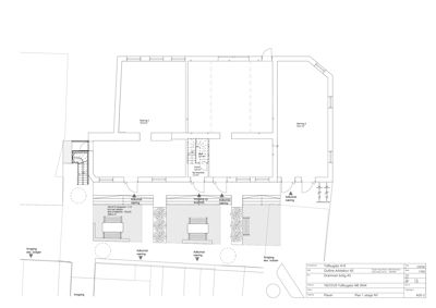
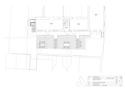
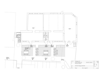
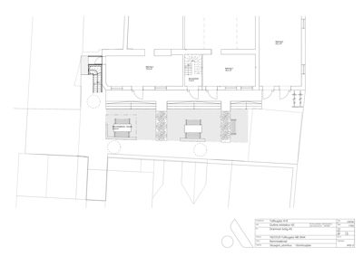
Utomhus Felles uteoppholdsareal

Opparbeidet bakgård med grøntareal, stenbelagt dekke, benker, sykkelparkering for 2 sykler under tak

Felles uteoppholdsareal i bakgård for beboere og næringsdrivende, med tilrettelegging for sykkelparkering

Dører Innvendige dører

Dører med brannmotstand EI60Sa mellom brannceller, dører til trapperom EI230Sa

Brannklassifiserte dører for å opprettholde branncellebegrensning og sikre rømningsveier

VVS Ventilasjon

Separate ventilasjonsanlegg for boenhet og næringsarealer, kanaler i ubrennbare materialer, brannstyring avklares i detaljprosjektering

Ventilasjonsanlegg tilpasset branntekniske krav og funksjon

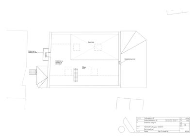
Vinduer Takvinduer

Antall: 4

Takvinduer plassert i takflaten, karmfarge tilpasses taktekkingen, lagt ned i takflaten for å følge fasaderytme og minimere synlighet fra gateplan

Nye takvinduer i takflaten mot øst og vest, tilpasset byggets arkitektur og kulturminnevern

Trapper Innvendig trapp

Antall: 3

Interntrapper med fri bredde minimum 0,86 m, utvendig trapp i ubrennbare materialer eller R30 beskyttet

Trapper for intern kommunikasjon og rømningsveier i bygget

Brannvern Brannkonsept og branntegninger

Brannklasse 2, risikoklasse 2/4, brannvegger REI 120, branncellebegrensende konstruksjoner EI60, brannalarmanlegg NS3960 kat 2, håndslokker pr etasje

Brannteknisk prosjektering og tiltak for å sikre tilfredsstillende brannsikkerhet i bygget ved bruksendring

Gulv Isolasjon og overflater

Isolasjonsmaterialer skal være ubrennbare, overflater i brannceller klasse B-s1,d0

Brannsikre isolasjons- og overflatematerialer i boenhet og fellesarealer

Balkong Balkong med metallrekkverk

🧱 Metall, sort eller mørk lakkert farge

Antall: 1

Ny balkong på østfasaden med åpent, mørklakkert spilerekkverk i metall, ca. 3 m², lite synlig fra gateplan

Ny balkong som privat uteoppholdsareal for boenheten, tilpasset byggets tidsepoke og kulturminnevern

Elektro Brannalarmanlegg

Automatisk brannalarmanlegg iht. NS3960:2019 kategori 2, dekker hele byggverket med alarmoverføring

Brannalarmanlegg for tidlig varsling og sikkerhet ved brann

Vinduer Fasadevindu

Antall: 1

Reetablering av opprinnelig vindu i gavelvegg mot sør, restaurert og tilbakeført til opprinnelig utforming

Reetablering av vindu i eksisterende utsparing på sørfasade for å gjenopprette fasadens opprinnelige uttrykk

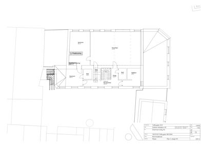
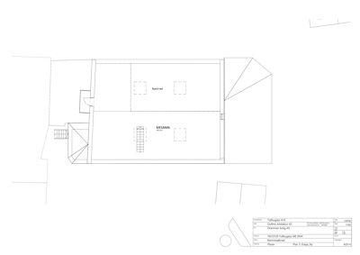
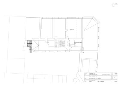
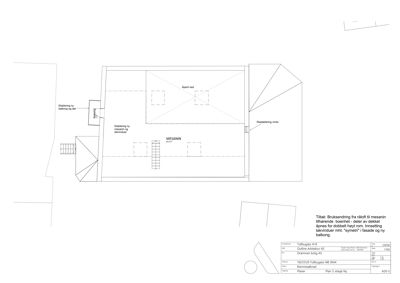
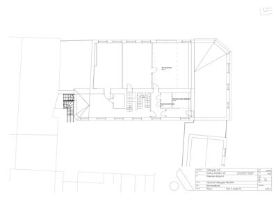
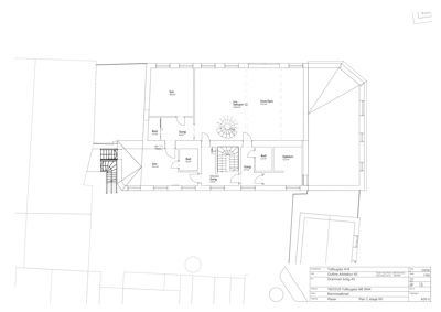
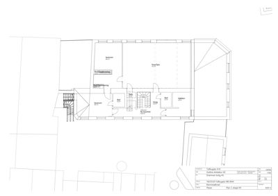
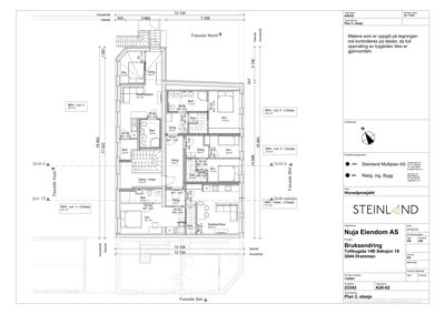
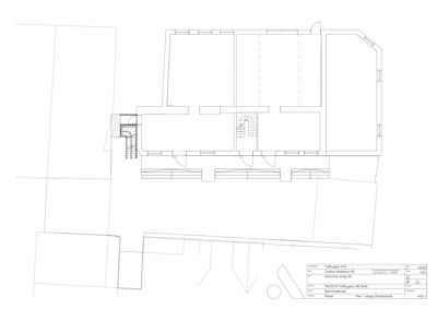
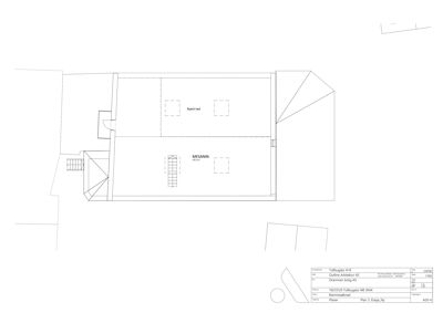
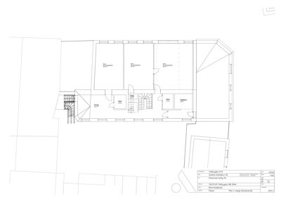
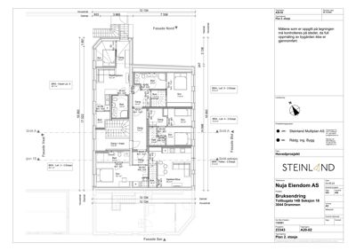
Plantegning

Enebolig 240.9 m²

Etasje 4 0.0 m²

Rom Areal Vinduer Dører
Taketasje 401 0.0 m² 4 0

Etasje 3 65.9 m²

Rom Areal Vinduer Dører
Mesanin 301 65.9 m² 4 1
Bad 302 0.0 m² 0 1
Gang 303 0.0 m² 0 2
Kott ID-07 4.6 m² 0 1
Sov ID-04 13.3 m² 1 1
Stue/kjøkken ID-02 15.6 m² 2 2

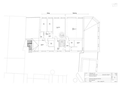
Etasje 2 175.0 m²

Rom Areal Vinduer Dører
Soverom 201 18.7 m² 1 1
Soverom 202 29.1 m² 1 1
Bad 203 3.6 m² 0 1
Tekn. 204 1.5 m² 0 1
Gang 205 13.9 m² 0 3
Bad 206 3.7 m² 0 1
Kjøkken 207 6.3 m² 1 1
Stue/Spis 208 71.5 m² 3 1
Bod/Oppbevaring 209 1.6 m² 0 1
Bod/Oppbevaring 210 1.6 m² 0 1
Bolig Seksjon 12 211 173.0 m² 3 1
Gang ID-01 2.6 m² 0 2
Gang ID-02 3.9 m² 0 2
Gang ID-03 3.9 m² 0 2
Gang ID-04 4.6 m² 0 2
Kjøkken/Stue ID-05 20.3 m² 1 1
Kjøkken ID-06 2.0 m² 0 1
Sov ID-07 7.4 m² 1 1
Sov ID-08 6.2 m² 1 1
Sov ID-09 11.6 m² 1 1
Sov ID-10 16.1 m² 1 1
Stue/Kjøkken ID-11 15.1 m² 1 1
Bad ID-12 4.7 m² 0 1
Bad ID-13 5.0 m² 0 1
Bad ID-14 7.1 m² 0 1
Bod ID-15 1.5 m² 0 1
Bod ID-16 2.5 m² 0 1
Sov ID-17 6.5 m² 1 1
Gang ID-18 12.2 m² 0 2
Sov BRA - Leil. 3 - 2.Etasje 16.1 m² 1 1
Kjøkken/Stue BRA - Leil. 4 - 2.Etasje 20.3 m² 1 1
Kjøkken/Stue BRA - Leil. 5 - 2.Etasje 15.1 m² 1 1
Kjøkken/Stue BRA - Felles - 2.Etasje 20.3 m² 1 1
Stue/Kjøkken BRA - Hybel Lei. 5 15.1 m² 1 1
Fellesareal Gang 212 7.9 m² 0 1

Etasje 1 0.0 m²

Rom Areal Vinduer Dører
Stue 101 0.0 m² 3 2
Soverom 102 0.0 m² 1 1
Soverom 103 0.0 m² 1 1
Bad 104 0.0 m² 0 1
Gang 105 0.0 m² 0 2
Kjøkken 106 0.0 m² 1 1
Vaskerom 107 0.0 m² 0 1
Teknisk rom 108 0.0 m² 0 1
Næring Næring.1 75.9 m² 0 0
Næring Næring.3 53.1 m² 0 0
Dyrebutikk 200 10.0 m² 1 1

Hovedbygg 0.0 m²

Etasje 1 0.0 m²

Rom Areal Vinduer Dører
Stue 0 0.0 m² 2 1
Kjøkken 0 0.0 m² 1 1
Gang 0 0.0 m² 0 2
Bad 0 0.0 m² 0 1
Sovev. 1 0 0.0 m² 1 1
Sovev. 2 0 0.0 m² 1 1
Sovev. 3 0 0.0 m² 1 1
Vaskerom 0 0.0 m² 0 1

Bolig 187.9 m²

Etasje 2 187.9 m²

Rom Areal Vinduer Dører
Sov 19 9.9 m² 1 1
Sov 19 8.6 m² 1 1
Stue/Spis 19 29.0 m² 2 1
Gang 19 6.9 m² 0 2
Bad 19 3.6 m² 0 1
Kjøkken 19 21.5 m² 1 1
Bod 19 2.5 m² 0 1
Fellesareal Gang 19 7.9 m² 0 2
Gang 12 5.7 m² 0 2
Bad 12 3.7 m² 0 1
Kjøkken 12 11.1 m² 1 1
Næring Seksjon 12 12 66.1 m² 2 1

Fasader

Eksisterende

Nord
Materiale
Betong
Taktype
Valmtak
Vinduer
0
Dører
1
Synlige etasjer
2
Vest
Materiale
Betong
Taktype
Valmtak
Vinduer
10
Dører
4
Balkonger
1
Synlige etasjer
2
Øst
Materiale
Tre
Taktype
Valmtak
Vinduer
12
Dører
1
Synlige etasjer
2
Sør
Materiale
Tre
Taktype
Valmtak
Vinduer
10
Dører
2
Synlige etasjer
2

Hendelser

09.04.2026 Tollbugata 14, seksjon 12, saken avsluttes som uaktuell da søknaden er trukket
07.04.2026 Vedr BYGG-23/02126
22.12.2025 Tollbugata 14, seksjon 12, kommunen ønsker tilbakemelding
12.11.2025 Tollbugata 14 Søknad om endring av gitt tillatelse eller godkjenning 110/551
08.09.2025 Tollbugata 14, seksjon 12, utsettelse av frist
27.08.2025 Tollbugata 14, ber om fristutsettelse
04.08.2025 Tollbugata 14, seksjon 12, vi trenger flere opplysninger for å behandle søknaden din
02.08.2025 Tollbugata 14, seksjon 12, vi trenger flere opplysninger for å behandle søknaden din
27.06.2025 Tollbugata 14, søknad om endring av gitt tillatelse eller godkjenning
14.04.2025 110/551, seksjon 12, bruksendring fra næring til bolig, reseksjonering.
09.04.2025 Tollbugata 14B, seksjon 12, rammetillatelse til bruksendring for etablering av en boenhet
07.04.2025 Tollbugata 14 B, seksjon 12, komplettering, snitt-tegning
14.03.2025 Tollbugata 14 Supplering av søknad 110/551
14.03.2025 Tollbugata 14 Gjennomføringsplan 110/551
26.02.2025 Tollbugata 14B, seksjon 12, vi trenger flere opplysninger for å behandle søknaden
16.01.2025 Tollbugata 14B, seksjon 12 , Kulturminnefaglig uttalelse
16.01.2025 Tollbugata 14 Supplering av søknad 110/551
19.12.2024 Tollbugata 14B, seksjon 12, vi trenger flere opplysninger for å behandle søknaden din
18.12.2024 Tollbugata 14B, seksjon 12,- ber om utsatt frist
11.12.2024 Tollbugata 14B, seksjon 12, anmodning om kulturminnefaglig uttalelse
12.11.2024 Tollbugata 14 Supplering av søknad 110/551
01.11.2024 Tollbugata 14B, seksjon 12, melding om mottatt søknad
31.10.2024 Tollbugata 14 Søknad om rammetillatelse 110/551
09.07.2024 Tollbugata 14B, anmodning om ytterligere utsettelse av frist
02.07.2024 Tollbugata 14B, seksjon 12, utsettelse av frist
02.07.2024 RE: Vedr SAK BYGG-23/02126-5, Tollbugata 14 B - Ønske om utsette frist
23.04.2024 Tollbugata 14B, referat fra møte
22.03.2024 Tollbugata 14B, seksjon 12, utsettelse av frist og orientering om møte
21.03.2024 anmodning om møte og utsettelse av frist
21.02.2024 Tollbugata 14B, seksjon 12, vi vurderer å avslå søknaden din
07.12.2023 Tollbugata 14B Supplering av søknad 110/551
05.12.2023 Tollbugata 14B, melding om mottatt søknad
04.12.2023 Tollbugata 14B Søknad om rammetillatelse 110/551