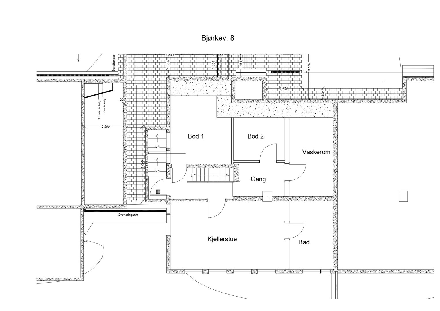
FloorPlan
Etasjeplan eller plantegning som viser romfordeling (Bod 1, Bod 2, Vaskerom, Gang, Kjellerstue, Bad) og trappeløsninger.
1 / 12
ChangeOfUse
Rammetillatelse
Leilighetsbygg
Bruksendring av bod til soverom i kjeller, Bjørkevegen 8
📍 Tollevegen 10 , 6419 MOLDE
Nøkkelinfo
- Sakstype
- Bruksendring
- Bygningstype
- Leilighetsbygg
- Bruksareal
- 13 m²
- Kommune
- Molde
- Fylke
- Møre og Romsdal
- Gnr / Bnr
- 29 / 249
- Saksnummer
- 26/03566
- Fase
- Rammetillatelse
Om byggesaken
Bruksendring av et kjellerrom på ca. 12,9 m² fra bod til soverom med varig opphold. Rommet har takhøyde på ca. 216 cm og er godt isolert med to lufteventiler i yttervegg. Det etableres et nytt rømningsvindu med modulmål 70x120 cm som tilfredsstiller krav til rømningsvei og lysinnslipp. Tiltaket inkluderer utskifting av ett eksisterende vindu til rømningsvindu. Rommet ligger i en konsentrert boligbebyggelse og tiltaket er i tråd med gjeldende reguleringsplan og tekniske krav.
Produkter og materialer
Isolasjon
Kjellerrom isolasjon
Rommet er godt isolert i henhold til tekniske krav
Isolasjon i kjellerrommet for å tilfredsstille krav til varig opphold
Fasade
Vindusutskifting
Antall: 1
Utskifting av eksisterende vindu til rømningsvindu i kjeller
Bytte av ett eksisterende vindu for å etablere rømningsvindu i kjeller
Vinduer
Rømningsvindu
Antall: 1
Modulmål 700 x 1200 mm, fri åpning 518 x 1048 mm, 2-veis tipp + innadslående, fastkarm
Nytt rømningsvindu som tilfredsstiller krav til rømningsvei og lysinnslipp i kjellerrommet som skal bli soverom
Ventilasjon
Lufteventiler
Antall: 2
To lufteventiler i yttervegg
Ventilasjon i kjellerrommet for lufting
Tømrer
Innvendig arbeid
Innvendige arbeider for ombygging av bod til soverom, inkludert tilpasning av vegger, gulv og tak
Plantegning
Bjørkev. 8 0.0 m²
Etasje 0 0.0 m²
| Rom | Areal | Vinduer | Dører |
|---|---|---|---|
| Kjellerstue 001 | 0.0 m² | 0 | 2 |
| Bad 002 | 0.0 m² | 0 | 1 |
| Gang 003 | 0.0 m² | 0 | 2 |
| Bod 1 004 | 0.0 m² | 0 | 1 |
| Bod 2 005 | 0.0 m² | 0 | 1 |
| Vaskerom 006 | 0.0 m² | 0 | 1 |
Etasje 1 0.0 m²
| Rom | Areal | Vinduer | Dører |
|---|---|---|---|
| Bod 1 101 | 0.0 m² | 0 | 1 |
| Bod 2 102 | 0.0 m² | 0 | 1 |
| Vaskerom 103 | 0.0 m² | 0 | 1 |
| Gang 104 | 0.0 m² | 0 | 2 |
Hendelser
09.04.2026
26/03566-7 29/249/0/0 Bjørkevegen 8, tillatelse til bruksendring
07.04.2026
26/03566-6 Tillatelse til bruksendring
31.03.2026
26/03566-4 29/249/0/0 Bjørkevegen 1A, tillatelse til bruksendring
20.03.2026
26/03566-2 Bjørkevegen 1A, melding om mottatt søknad
19.03.2026
26/03566-1 29/249/0/0 Bjørkevegen 1A, Søknad om tillatelse til tiltak uten ansvarsrett