ChangeOfUse Ferdigattest Leilighetsbygg

Bruksendring og opprettelse av to boenheter i Torvet 1A, Arendal

📍 Torvet 1A , 4836 ARENDAL

Nøkkelinfo

Sakstype
Bruksendring
Bygningstype
Leilighetsbygg
Bruksareal
137 m²
Boenheter
2
Kommune
Arendal
Fylke
Agder
Gnr / Bnr
501 / 86
Saksnummer
2026/3181
Fase
Ferdigattest

Om byggesaken

Bruksendring i eksisterende leilighetsbygg på Torvet 1A i Arendal, hvor 2. etasje ombygges til to separate boenheter med et samlet areal på 137 m². Innvendige lettvegger flyttes for å etablere hensiktsmessig planløsning med soverom, og et tidligere blokkert fasadevindu tas i bruk som dagslys- og rømningsvindu. Det gjøres ingen endringer i byggets ytre, volum eller klimaskall. Bærende konstruksjoner er forsterket med stålbjelker og søyler med brannisolering i henhold til krav. Branntekniske tiltak og rømningsveier er prosjektert og dokumentert. Bygget har felles trappeadkomst og tilfredsstiller tekniske krav for boligformål i sentrumsområde med kulturmiljøhensyn. Ferdigattest er utstedt for tiltaket.

Produkter og materialer

Brannvern Brannslukkingsutstyr

Antall: 2

Minst 1 stk 6 kg håndslukker i hver leilighet under ombygging

Brannslukkingsutstyr for tidlig innsats ved brann

Grunnarbeid Fundamentering for søyler

🧱 Stålplater 200x200x15 mm og 200x200x10 mm

Stålplater for søylefundament med bolter til gulv og bærebjelker

Fundamentering for nye stålsøyler i 1. etasje og underetasje

Stål Stålsøyler og stålbjelker

🧱 HUP 100x100x4 mm og triplet trebjelke 3x48x148 mm limt og skrudd

Stålsøyler brannisolert med 20 mm Conlit og gipsplate for R60 brannmotstand, montert med stålplater mot gulv og bjelker

Bærende konstruksjoner for åpning i eksisterende bærevegg

Isolasjon Brannisolasjon for stålbjelker og søyler

🧱 Conlit 20 mm og gipsplate

Brannisolasjon for å oppnå R60 brannmotstand på bærende stålkonstruksjoner

Brannisolasjon av stålkonstruksjoner i bærende vegg

Vinduer Rømningsvindu i fasade

Antall: 1

Eksisterende vindu som tas i bruk igjen som dagslys- og rømningsvindu, med krav til fri åpning og dimensjoner i henhold til TEK17

Rømningsvindu i fasade som tidligere var blokkert av innvendig vegg

Dører Brannklassifiserte dører i rømningsvei

Dører med brannmotstand EI 30Ss og klasse Sa i rømningsvei, med låsesystem som muliggjør enkel åpning og retur

Dører i branncellebegrensende konstruksjoner og rømningsveier

Tømrer Innvendige lettvegger

Flytting og justering av lettvegger for å etablere hensiktsmessig planløsning med soverom

Innvendige bygningsmessige endringer i eksisterende bygningsmasse

Ventilasjon Ventilasjonskanaler

🧱 Materialer klasse A2-s1,d0 (ubrennbare)

Ventilasjonskanaler med brannmotstand EI 15 A2-s1,d0 for kjøkkenavtrekk, med fettfilter og rengjøringsmulighet

Ventilasjonsanlegg i boenheter

Elektro Brannalarmanlegg

Brannalarmanlegg kategori 2 med detektorer i kjøkken, stue og sone utenfor soverom, samt manuell melder i trapperom

Brannalarmanlegg for leiligheter og fellesarealer

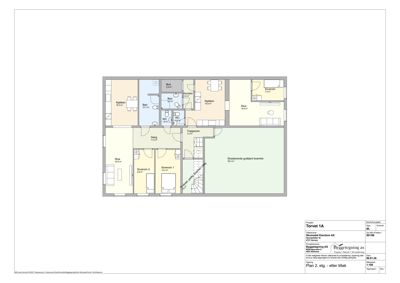
Plantegning

Enebolig 216.8 m²

Etasje 2 216.8 m²

Rom Areal Vinduer Dører
Stue 201 22.5 m² 2 1
Kjøkken 202 16.9 m² 1 1
Sovealkove 203 4.9 m² 1 1
Korridor 204 3.3 m² 0 2
Bad 205 10.1 m² 0 1
WC 206 1.8 m² 0 1
WC 207 1.9 m² 0 1
Bod 208 2.9 m² 0 1
Korridor 209 17.2 m² 0 3
Trapperom 210 7.0 m² 0 1
Stue 211 17.0 m² 1 1
Soverom 212 18.8 m² 1 1
Eksisterende godkjent boenhet 213 56.4 m² 1 1
Eksisterende godkjent boenhet 214 56.4 m² 0 0

Hendelser

20.04.2026 DOK-analyse - 501/86/0/0 Torvet 1A
20.04.2026 Ferdigattest - 501/86 - Torvet 1A -Bruksendring - opprettelse flere boenheter
20.04.2026 BYGG-26_00147 - Skomedal eiendom AS - Ferdigattest.xlsx
16.04.2026 Torvet 1A Søknad om ferdigattest 501/86
06.03.2026 BYGG-26_00147 - Skomedal eiendom AS
06.03.2026 Vedtak - Torvet 1A - 501/86 - Bruksendring og opprettelse av boenheter
03.03.2026 Torvet 1A Supplering av søknad 501/86
10.02.2026 501/86 - Viser til tilbakemelding
06.02.2026 Tilbakemelding - 501/86 - Torvet 1A - bruksendring - Opprettelse flere boenheter
28.01.2026 Torvet 1A, melding om mottatt søknad
27.01.2026 Torvet 1A Søknad om tillatelse i ett trinn 501/86