ChangeOfUse Soeknad Leilighetsbygg

Bruksendring av 2. etasje til leilighet i Vågen 32, Værøy

📍 Vågen 32 , 8063 VÆRØY

Nøkkelinfo

Sakstype
Bruksendring
Bygningstype
Leilighetsbygg
Bruksareal
67 m²
Boenheter
1
Kommune
Værøy
Fylke
Nordland - Nordlánnda
Gnr / Bnr
14 / 60
Saksnummer
26/59
Fase
Søknad

Om byggesaken

Bruksendring av 2. etasje i Vågen 32 fra lager til boligformål med etablering av en leilighet på ca. 66,8 m². Bygget er en to-etasjes trekonstruksjon med lager i 1. etasje og bolig i 2. etasje. Tiltaket inkluderer branncellebegrensende konstruksjoner med EI 30 brannmotstand, etablering av brannvegger, nye vinduer og dører som tilfredsstiller dagens krav, samt oppgradering av isolasjon i yttervegger, tak og bjelkelag. Det er installert nytt elektrisk anlegg, og det er planlagt tilfredsstillende rømningsveier med intern trapp og rømningsvinduer. Bygget har pult- og valmtak med trefasade malt i rødt, og balkong på 13,8 m². Det søkes delvis unntak fra energikrav i TEK17 på grunn av eksisterende konstruksjoners begrensninger. Brannteknisk konsept er utarbeidet med risikoklasse 4 og brannklasse 1, med fokus på sikkerhet og rømningsmuligheter.

Produkter og materialer

Gulv Isolert gulv på grunn

Gulv på grunn i 1. etasje, isolasjon i bjelkelag mellom etasjer

Isolert gulvkonstruksjon for boligstandard

Trapper Innvendig trapp

🧱 Tre

Antall: 1

Intern trapp som rømningsvei mellom 1. og 2. etasje

Trapp for intern kommunikasjon og rømming

Vinduer Rømningsvinduer

🧱 3-lags energiglass

Antall: 7

Vinduer med luftespalter for ventilering, tilnærmet oppfyller TEK17 energikrav, brannmotstand ikke nødvendig pga. avstand > 6 m

Nye vinduer i 2. etasje for lys, ventilasjon og rømningsvei

Fasade Trepanel

🧱 Tre, malt rødt

Trepanel med brannklasse K210 D-s2,d0, malt i rødt

Yttervegger med trepanel og isolasjon

Balkong Balkong med rekkverk

🧱 Tre

Antall: 1

Balkong på ca. 13,8 m² med rekkverk, tilknyttet 2. etasje

Utendørs balkong for leilighet

VVS Sanitærinstallasjoner

Vannklosett, bad, vaskerom i 2. etasje, tilkoblet offentlig vann og privat avløp

Sanitærinstallasjoner for leilighet

Isolasjon Isolasjon i yttervegger, tak og bjelkelag

🧱 Blandet, inkludert A2-s1,d0 og brennbar isolasjon med brannbeskyttelse

Isolasjon som delvis oppfyller TEK17, med unntak for energikrav

Isolasjon for varme og brannsikring

Elektro Elektrisk anlegg

Nytt elektrisk anlegg installert for bedre oppvarming og sikkerhet

Elektrisk installasjon for boligstandard

Brannvern Branncellebegrensende konstruksjoner

🧱 EI 30 vegger og etasjeskiller

Brannvegger i trappegang og yttervegg mot vest, etasjeskiller med brannmotstand EI 30, seriekoblede røykvarslere

Brannskiller og brannceller for sikker rømning

Dører Ytterdører og brannklassifiserte dører

🧱 Tre med brannmotstand EI 30

Antall: 4

Dører i branncellebegrensende konstruksjoner med krav til brannmotstand og sikker åpning

Ytterdører og dører til rømningsvei og brannskiller

Tak Pulttak og valmtak

🧱 Tre med kledning K210 D-s2,d0, isolasjon A2-s1,d0

Taktekking BROOF(t2), isolasjon i tak og bjelkelag, delvis unntak fra energikrav

Tak med brannmotstand og isolasjon for boligstandard

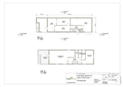
Plantegning

Enebolig 149.4 m²

Etasje 1 83.5 m²

Rom Areal Vinduer Dører
Lager 11.6 m² 0 1
Lager 10.8 m² 0 1
Lager 23.5 m² 0 0
Lager 10.7 m² 0 1
Gang 4.2 m² 0 2
Trapperom 3.7 m² 0 1
Stue 101 35.0 m² 2 2
Gang 102 8.0 m² 0 3
Vaskerom 103 3.2 m² 0 1
Bad 104 2.2 m² 0 1
WC 105 2.2 m² 0 1
Sov 106 10.3 m² 1 1
Lager 107 15.3 m² 0 1
Lager 108 9.8 m² 0 1
Lager 109 25.4 m² 0 1

Etasje 2 65.9 m²

Rom Areal Vinduer Dører
Balkong 13.8 m² 0 1
Stue/Kjøkken 33.4 m² 2 1
Gang 9.8 m² 0 3
WC 2.4 m² 0 1
Bad/vaskerom 2.4 m² 0 1
Soverom 13.2 m² 1 1
Stue 201 32.7 m² 4 1
Gang 202 8.0 m² 0 3
Vaskerom 203 3.2 m² 0 1
Bad 204 2.2 m² 0 1
WC 205 2.2 m² 0 1
Sov 206 10.3 m² 1 1
Balcony 207 13.9 m² 0 1

Fasader

Enebolig

Nord
Materiale
Tre
Taktype
Pulttak
Vinduer
4
Dører
0
Balkonger
1
Synlige etasjer
2
Vest
Materiale
Tre
Taktype
Valmtak
Vinduer
2
Dører
1
Balkonger
1
Synlige etasjer
2
Sør
Materiale
Tre
Taktype
Pulttak
Vinduer
6
Dører
2
Balkonger
1
Synlige etasjer
2
Øst
Materiale
Tre
Taktype
Valmtak
Vinduer
1
Dører
0
Synlige etasjer
2

Hendelser

09.03.2026 Vågen 32 Søknad om rammetillatelse 14/60