FacadeChange Soeknad Leilighetsbygg

Rehabilitering og etterisolering av fasader i Cappelens gate 13, Drammen

📍 Cappelens gate 13 , 3015 DRAMMEN

Nøkkelinfo

Sakstype
Fasadeendring
Bygningstype
Leilighetsbygg
Bruksareal
388 m²
Kommune
Drammen
Fylke
Buskerud
Gnr / Bnr
114 / 203
Saksnummer
25/36959
Fase
Søknad

Om byggesaken

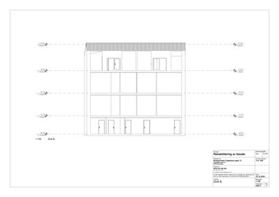
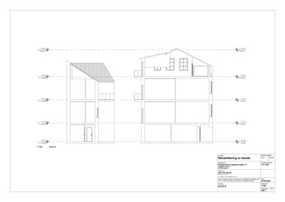
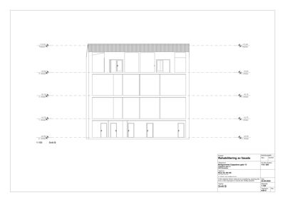
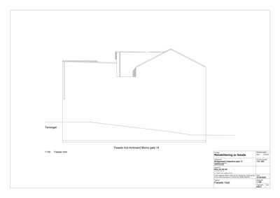
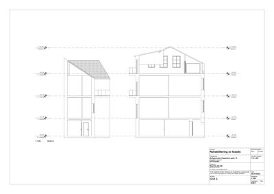
Rehabilitering av fasadene på en verneverdig boliggård fra 1880 i Cappelens gate 13, Drammen. Tiltaket omfatter demontering og fjerning av løs puss, etterisolering med 5 cm EPS isolasjonsplater utenpå eksisterende vegg, påføring av ny puss, nett og silikonbasert overflatebehandling. Fasaden mot gaten restaureres med bevaring av viktige detaljer som gesims, gavlkarm og søyler, men den opprinnelige rutete stukkaturen sparkles glatt. Vinduene skrapes og overflatebehandles, men flyttes ikke ut. Nye takrenner, beslag og blikkbeslag monteres for å hindre fuktinntrengning. Søylene i underetasjen pusses og overflatebehandles uten isolasjon. Kabler legges i nye trekkerør innfelt i isolasjonsplatene. Tiltaket er reversibelt og skal bevare bygningens karakter og kulturhistoriske verdi, samtidig som det forbedrer energieffektiviteten.

Arbeidsomfang

- Rehabilitering og etterisolering av fasade på verneverdig bygg (verneklasse C). - Utførelse av detaljerte overganger mellom etterisolering og tak. - Utforming av gesimsdetaljer som samsvarer med antikvariske prinsipper. - Justering av tegninger for å gjengi eksisterende fasadedetaljer nøyaktig (fjerning av feilaktige elementer og nye detaljer uten grunnlag). - Rettelse av takform i forhold til historisk dokumentasjon.

Produkter og materialer

Fasade Utvendig puss og overflatebehandling

🧱 Silikonbasert maling, ny puss, nett

Ny puss påført over isolasjonsplater, silikonbasert overflatebehandling, glatt sparklet fasade mot gaten

Fjerning av løs puss, påføring av ny puss og silikonbasert maling på fasader etter etterisolering

Fasade Søyler i underetasje

🧱 Puss og maling

Søyler pusses og overflatebehandles, isoleres ikke

Overflatebehandling av søyler i underetasjen

Mur Fjerning av løs puss

Demontering og fjerning av løs puss før ny behandling

Forberedelse av fasade for etterisolering og ny puss

Vinduer Eksisterende vinduer restaurert

Antall: 19

Vinduer skrapes og overflatebehandles, beholdes i dagens smyg uten å flyttes ut

Restaurering og overflatebehandling av eksisterende vinduer uten flytting

Grunnarbeid Sikring av byggeplass

Byggeplass skal sikres forskriftsmessig i byggeperioden

Sikringstiltak under byggearbeid

VVS Blikkbeslag mot bakken

🧱 Metall

Blikkbeslag monteres siste 50 cm ned mot bakken for å hindre fuktinntrengning

Fuktsikring ved grunnmur med blikkbeslag

Dører Eksisterende dører restaurert

Antall: 4

Dører beholdes i dagens smyg, overflatebehandles

Restaurering og overflatebehandling av eksisterende dører

Isolasjon EPS isolasjonsplater

🧱 EPS

5 cm tykk isolasjonsplate montert utenpå eksisterende vegg, skråskåret mot tak og søyler

Utvendig etterisolering av fasader med 5 cm EPS isolasjon

Elektro Utelys og kabling

Utelys demonteres og remonteres, kabler legges i nye trekkerør innfelt i isolasjonsplater

Oppgradering av utelys og skjult kabling i fasade

Tak Takrenner og beslag

🧱 Metall, hvit farge

Nye takrenne-nedløp og metallbeslag monteres i hvit farge som øvrig fasade

Utskifting og montering av takrenner og beslag

Tømrer Montering av isolasjonsplater og pussarbeid

Montering av isolasjonsplater, påføring av nett og puss

Utførelse av etterisolering og pussarbeid på fasade

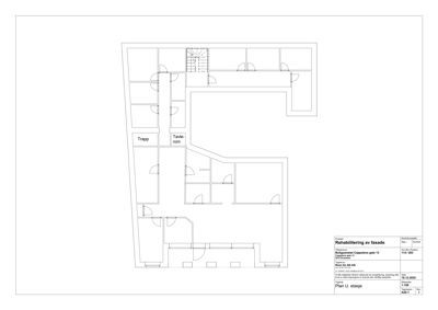
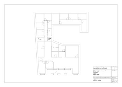
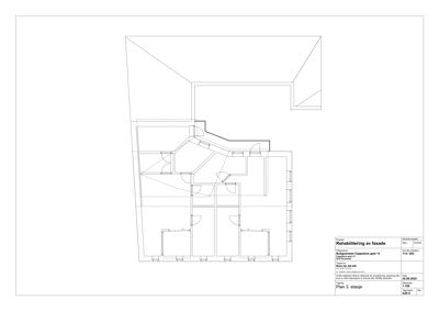
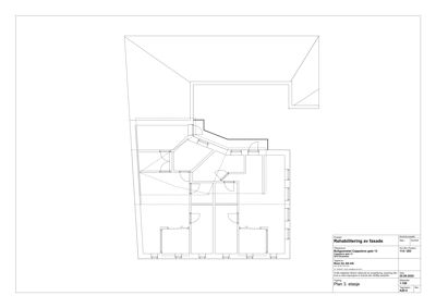
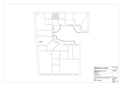
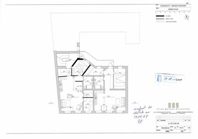
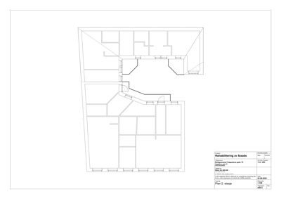
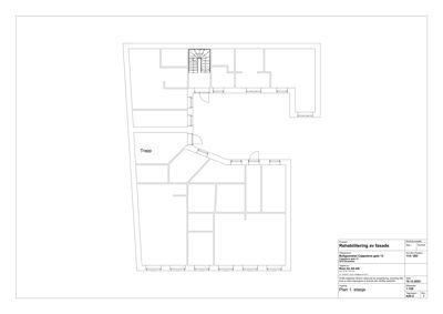
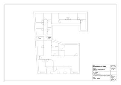
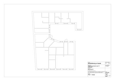
Plantegning

Leilighetsgård 387.6 m²

Etasje 1 120.5 m²

Rom Areal Vinduer Dører
Stue m/ kjøkken 101 38.8 m² 3 2
Sov 102 11.5 m² 1 1
Sov 103 11.1 m² 1 1
Sov 104 9.8 m² 1 1
Sov 105 8.3 m² 1 1
Entré 106 8.1 m² 0 2
Bad 107 5.4 m² 0 1
Bad 108 3.4 m² 0 1
Trapperom 109 11.4 m² 0 1
Stue m/ kjøkken 110 38.8 m² 3 1
Stue m/ kjøkken 111 28.9 m² 3 1
Sove 6 112 0.0 m² 1 1
stue C1 16.8 m² 1 1
soverom SOV 7.7 m² 0 1
stue D1 15.9 m² 1 1

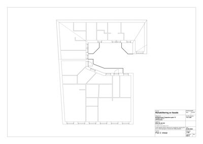
Etasje 2 139.0 m²

Rom Areal Vinduer Dører
Stue 201 35.5 m² 3 2
Kjøkken 202 13.0 m² 0 1
Sovestue 203 11.5 m² 1 1
Soverom 204 8.3 m² 1 1
Soverom 205 9.7 m² 1 1
Bad 206 5.4 m² 0 1
Bad 207 3.4 m² 0 1
Entré 208 9.1 m² 0 1
Bod 209 3.1 m² 0 1
Trapperom 210 11.4 m² 0 0
stue C2 16.8 m² 1 1
soverom sov 7.7 m² 0 1
hall hall 2.5 m² 0 2
kjøkken kjøk 4.5 m² 1 0
bad bad 3.7 m² 0 1
sovealk sovealk 8.5 m² 1 1
stue D2 15.9 m² 1 1

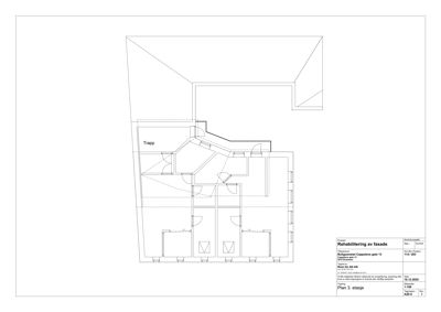
Etasje 3 128.1 m²

Rom Areal Vinduer Dører
Trapperom 301 11.4 m² 0 1
Entré 302 1.4 m² 0 1
Sovestue 303 8.0 m² 1 1
Sovestue 304 10.2 m² 1 1
Bad 305 3.8 m² 0 1
Bad 306 3.1 m² 0 1
Stue 307 28.1 m² 2 1
Kjøkken 308 27.8 m² 1 1
Trapp 309 11.4 m² 0 0

Uthus 68.5 m²

Etasje 0 68.5 m²

Rom Areal Vinduer Dører
Bod 1A 1A 7.0 m² 0 1
Bod 1B 1B 5.3 m² 0 1
Bod 2B 2B 4.7 m² 0 1
Bod 2A 2A 4.6 m² 0 1
Bod 3B 3B 4.2 m² 0 1
Bod 3A 3A 4.2 m² 0 1
Tavlerom tavlerom 4.2 m² 0 1
Bod 2C 2C 6.8 m² 0 1
Bod 2D 2D 6.8 m² 0 1
Bod 1C 1C 6.3 m² 0 1
Bod 1D 1D 7.6 m² 0 1
Bod 1A bod 1A 7.0 m² 0 1
Bod 2B bod 2B 4.7 m² 0 1
Bod 2A bod 2A 4.6 m² 0 1
Bod 1B bod 1B 5.3 m² 0 1
Bod 3B bod 3B 4.2 m² 0 1
Bod 3A bod 3A 4.2 m² 0 1
Bod 2C bod 2C 6.8 m² 0 1
Bod 2D bod 2D 6.8 m² 0 1
Bod 1C bod 1C 6.3 m² 0 1
Bod 1D bod 1D 7.6 m² 0 1

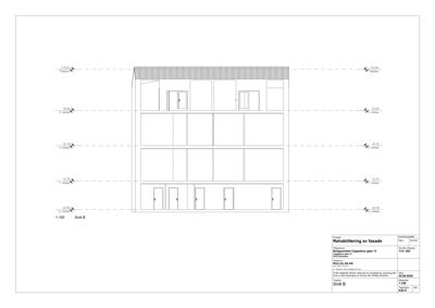
Fasader

Leilighetsgård

Nord
Materiale
Betong
Taktype
Flatt tak
Høyde
12.0 m
Mønehøyde
13.5 m
Vinduer
0
Dører
0
Synlige etasjer
1
Sør
Materiale
Betong
Taktype
Flatt tak
Takmat.
Tegl
Høyde
10.5 m
Vinduer
19
Dører
1
Synlige etasjer
3
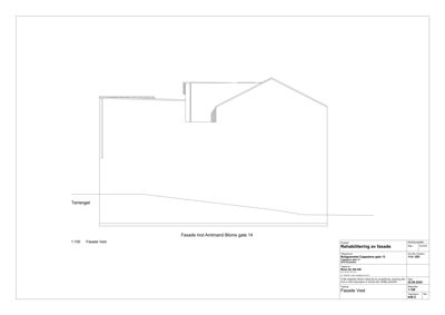
Vest
Taktype
Saltak
Vinduer
0
Dører
0
Synlige etasjer
2
Øst
Materiale
Pusset
Taktype
Saltak
Høyde
10.5 m
Mønehøyde
12.5 m
Vinduer
4
Dører
3
Balkonger
2
Synlige etasjer
3

Hovedbygg

Sør
Materiale
Mur
Taktype
Flatt tak
Vinduer
14
Dører
1
Synlige etasjer
3

Boligsameiet Cappelen

Øst
Materiale
Pusset
Taktype
Saltak
Vinduer
4
Dører
3
Balkonger
2
Synlige etasjer
3

Hendelser

31.03.2026 Cappelens gate 13, tillatelse til rehabilitering og etterisolering av fasader
26.02.2026 Cappelens gate 13 Supplering av søknad 114/203 søknad
20.02.2026 Cappelens gate 13, vi trenger flere opplysninger for å behandle søknaden din søknad
20.02.2026 Cappelens gate 13, Drm: Revidert fasadetegning mot syd
23.01.2026 Cappelens gate 13, vi trenger flere opplysninger for å behandle søknaden din søknad
12.01.2026 Cappelens gate 13 Supplering av søknad 114/203 søknad
05.01.2026 Cappelens gate 13, vi trenger flere opplysninger for å behandle søknaden din søknad
17.12.2025 Cappelens gate 13 Supplering av søknad 114/203 søknad
25.11.2025 Cappelens gate 13, vi trenger flere opplysninger for å behandle søknaden din søknad
13.11.2025 Cappelens gate 13, Fylkeskommunens kulturminnefaglige uttalelse
17.10.2025 Cappelens gate 13, anmodning om kulturminnefaglig uttalelse fra Buskerud fylkeskommune
14.10.2025 Cappelens gate 13, melding om mottatt søknad søknad
13.10.2025 Cappelens gate 13 Søknad om tillatelse i ett trinn 114/203 søknad