FacadeChange Soeknad Leilighetsbygg

Fasadeendring og oppgradering underetasje i Flageborgveien 66

📍 Flageborgveien 66 , 4823 NEDENES

Nøkkelinfo

Sakstype
Fasadeendring
Bygningstype
Leilighetsbygg
Bruksareal
331 m²
Kommune
Arendal
Fylke
Agder
Gnr / Bnr
428 / 380
Saksnummer
2026/11637
Fase
Søknad

Om byggesaken

Fasadeendring og oppgradering av underetasjen i et eksisterende leilighetsbygg på Flageborgveien 66. Bygget er en toetasjes trebygning med saltak og tegltak, med totalt ca. 330 m² BRA fordelt på flere etasjer inkludert underetasje. Prosjektet omfatter endring av fasader på alle sider, oppfylling av terreng rundt bygget, samt bruksendring og oppgradering av rom i underetasjen til boligformål. Fasaden består av trekledning med flere vinduer og dører, og det er planlagt forbedringer for å oppgradere byggets standard og estetikk. Bygget har flere trapper og balkonger, og pipe er til stede på flere fasader.

Produkter og materialer

Tømrer Innvendig oppgradering

Oppgradering av rom i underetasje til boligstandard, inkludert bruksendring

Innvendig oppgradering av underetasje med nye overflater og romløsninger

Pipe Murpipe

Antall: 1

Pipe til stede på flere fasader, må vurderes i oppgradering

Vedlikehold eller tilpasning av pipe i fasadeendringsprosjektet

Dører Ytterdører

Antall: 6

Dører fordelt på fasader og etasjer: 2 vest, 0 nord, 1 øst, 2 sør, inkludert dører i underetasje

Oppgradering eller utskifting av ytterdører i fasaden og underetasje

Grunnarbeid Terrengoppfylling

Oppfylling av terreng rundt bygget som del av fasadeendringen

Terrengarbeid for oppfylling og tilpasning rundt underetasjen

Fasade Trekledning

🧱 Tre

Fasade i tre med saltak og tegltak, oppgradering av eksisterende trekledning

Oppgradering og endring av trekledning på fasader mot vest, nord, øst og sør

Tak Saltak med tegl

🧱 Tegl

Eksisterende saltak med tegl som inngår i fasadeendringen

Vedlikehold eller oppgradering av taktekking i forbindelse med fasadeendring

Vinduer Fasadevindu

Antall: 17

Vinduer fordelt på fasader: 3 vest, 5 nord, 1 øst, 8 sør

Utskifting eller oppgradering av fasadevinduer i tre etasjer inkludert underetasje

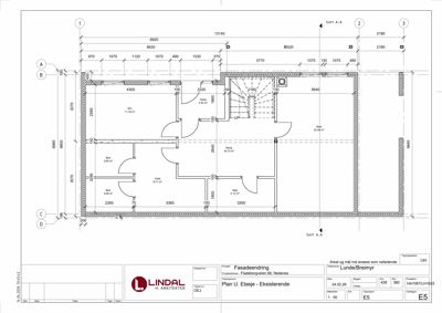
Plantegning

Enebolig 330.7 m²

Etasje 1 97.0 m²

Rom Areal Vinduer Dører
Soverom Sov 14.3 m² 0 1
Soverom Sov 7.9 m² 0 1
Gang Gang 2.3 m² 0 0
Bad Bad 8.3 m² 0 1
Kjøkken/Stue Kjøkken/Stue 60.9 m² 3 2
Kjøkken Kjøkken 10.0 m² 0 1
Stue Stue 53.8 m² 2 1

Etasje 2 125.0 m²

Rom Areal Vinduer Dører
Soverom Sov 10.7 m² 0 1
Gang Gang 17.9 m² 0 2
Kjøkken/Stue Kjøkken/Stue 22.3 m² 1 1
Gang Gang 3.9 m² 0 1
Soverom Sov 5.9 m² 0 1
Vaskerom Vask 11.3 m² 0 1
Bad Bad 3.3 m² 0 1
Bad Bad 5.3 m² 0 1

Etasje 0 108.7 m²

Rom Areal Vinduer Dører
Sov U01 11.2 m² 3 1
Gang U02 3.5 m² 0 2
Stue U03 23.4 m² 1 1
Gang U04 16.7 m² 0 2
Bod U05 3.6 m² 0 1
Bod U06 3.6 m² 0 1
Vask U07 8.7 m² 0 1
Bad U08 5.1 m² 0 1

Fasader

Enebolig

Vest
Materiale
Tre
Taktype
Saltak
Høyde
6.5 m
Vinduer
3
Dører
2
Balkonger
1
Synlige etasjer
2
Nord
Materiale
Tre
Taktype
Saltak
Takmat.
Tegl
Vinduer
5
Dører
0
Synlige etasjer
1
Øst
Materiale
Tre
Taktype
Saltak
Vinduer
1
Dører
1
Synlige etasjer
2
Sør
Materiale
Tre
Taktype
Saltak
Takmat.
Tegl
Vinduer
8
Dører
2
Balkonger
1
Synlige etasjer
2

Hendelser

15.04.2026 Flageborgveien 66, melding om mottatt søknad
14.04.2026 Flageborgveien 66 Søknad om tillatelse i ett trinn 428/380