FacadeChange Rammetillatelse Leilighetsbygg

Fasadeendring og bruksendring i leilighetsbygg, Hans Hansens vei 200

📍 Hans Hansens vei 200 , 3022 DRAMMEN

Nøkkelinfo

Sakstype
Fasadeendring
Bygningstype
Leilighetsbygg
Bruksareal
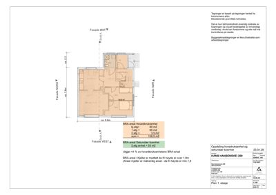
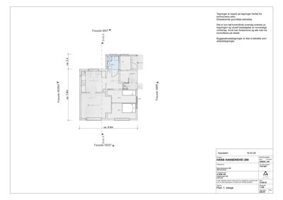
182 m²
Boenheter
2
Kommune
Drammen
Fylke
Buskerud
Gnr / Bnr
116 / 1687
Saksnummer
25/35296
Fase
Rammetillatelse

Om byggesaken

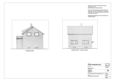
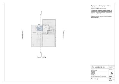
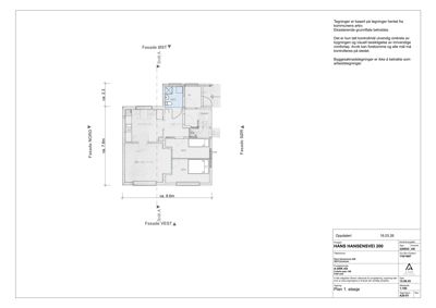
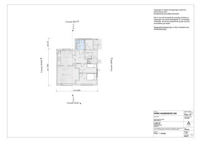
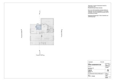
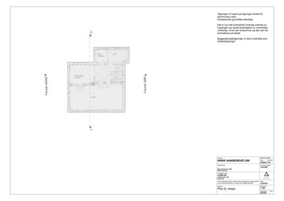
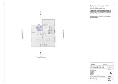
Eksisterende to-etasjes enebolig med hybel i 2. etasje gjennomgår fasadeendringer som inkluderer utskifting til husmorvinduer, nye vinduer på sørfasaden, og etterisolering av alle fasader. Det er også innbygget del av terrasse til vindfang. Bygget har et bruksareal på ca. 181,5 m² fordelt på hovedbruksenhet og sekundær boenhet. Sekundær boenhet utgjør 41 % av hovedbruksenhetens areal, noe som medfører at boligen vurderes som tomannsbolig. Det er søkt om dispensasjon for midlertidig bruk som tomannsbolig, men kommunen vurderer at tiltaket må oppfylle krav til tomannsbolig, inkludert tekniske krav, parkering og uteoppholdsareal. Fasadeendringen har god arkitektonisk utforming og visuelle kvaliteter. Bygget har saltak, trekledning og pipe, med vinduer og dører fordelt på alle fasader.

Produkter og materialer

VVS Bad og vaskerom

Antall: 2

Bad i 1. og 2. etasje, vaskerom i kjeller

Sanitærinstallasjoner for bad og vaskerom

Vinduer Husmorvinduer og nye fasadevinduer

🧱 tre/aluminium (ikke spesifisert)

Antall: 8

Byttet til husmorvinduer fra to-fags vinduer, supplert med 1 nytt vindu på sørfasade

Utskifting og tillegg av fasadevinduer i tre eller tilsvarende materiale

Tak Saltak

🧱 ikke spesifisert

Antall: 1

Eksisterende saltak beholdes, gesimshøyde ca. 4.75 m, mønehøyde ca. 6.1 m

Eksisterende saltak med taktekking

Fasade Etterisolering og kledning

🧱 trepanel

Etterisolering av alle fasader og skifte av kledning er utført

Etterisolering og ny trekledning på alle fasader

Trapper Innvendig trapp

Antall: 1

Felles trapp mellom boenheter i 1. og 2. etasje

Innvendig trapp som forbinder etasjene

Tømrer Bærekonstruksjoner og innvendige vegger

🧱 tre

Endring av bærende konstruksjon i 2. etasje er søkt, men senere utgått

Tømrerarbeid knyttet til fasadeendring og innvendige endringer

Maling Utvendig og innvendig maling

Ikke spesifisert, men vanlig ved fasadeendring og innvendige oppgraderinger

Maling av fasade og innvendige flater

Gulv Innvendige gulv

Ikke spesifisert i dokumenter

Innvendige gulv i boligene

Dører Ytterdører og vindfangsdør

🧱 tre eller tilsvarende

Antall: 3

Innbygget del av terrasse til vindfang med dør, samt eksisterende ytterdører

Dører til vindfang og øvrige ytterdører i bygget

Grunnarbeid Fundamentering og drenering

Eksisterende grunnflate beholdes, ingen nye grunnarbeider opplyst

Eksisterende fundament og drenering opprettholdes

Fasader

Enebolig

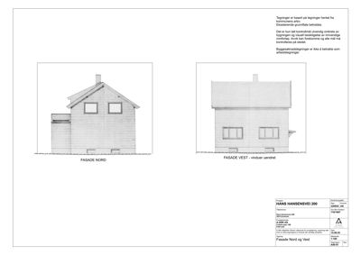
Vest
Materiale
Tre
Taktype
Saltak
Høyde
4.8 m
Mønehøyde
6.1 m
Vinduer
3
Dører
1
Synlige etasjer
2
Sør
Materiale
Tre
Taktype
Saltak
Vinduer
2
Dører
1
Synlige etasjer
2
Nord
Materiale
Tre
Taktype
Saltak
Høyde
4.8 m
Mønehøyde
6.1 m
Vinduer
2
Dører
0
Synlige etasjer
2
Øst
Materiale
Tre
Taktype
Saltak
Vinduer
3
Dører
0
Synlige etasjer
2

Hendelser

15.04.2026 Hans Hansens vei 200, rammetillatelse for fasadeendring
23.03.2026 Hans Hansensvei 200, supplerende dokumentasjon
24.02.2026 Hans Hansens vei 200, vi vurderer å avslå søknaden din
20.02.2026 Hans Hansens vei 200, Vedrørende kommunens vurdering av boenheter - søknad om midlertidig dispensasjon
10.02.2026 Hans Hansens vei 200, avklaring av videre saksgang
26.01.2026 Hans Hansens vei 200, ønske om avklaring angående videre saksgang
19.12.2025 Hans Hansens vei 200, vi trenger flere opplysninger for å behandle søknaden din
16.12.2025 Hans Hansens vei 200, ber om fristutsettelse
08.10.2025 Hans Hansens vei 200 Søknad om rammetillatelse 116/1687
23.09.2025 Hans Hansens vei 200, Kopi: Svar på nabovarsel