Photo
Fotografi av en eksisterende bygning (hus) sett fra en vinkel som viser fasade og takform.
Påbygg og fasadeendring på leilighetsbygg i Kleivaveien 34A, Bodø
📍 Kleivaveien 34A , 8009 BODØ
Nøkkelinfo
- Sakstype
- Fasadeendring
- Bygningstype
- Leilighetsbygg
- Bruksareal
- 162 m²
- Boenheter
- 3
- Kommune
- Bodø
- Fylke
- Nordland - Nordlánnda
- Gnr / Bnr
- 31 / 72
- Saksnummer
- 2026/12144
- Fase
- Under behandling
Om byggesaken
Produkter og materialer
Oppgradering av elektriske anlegg i forbindelse med påbygg og fasadeendring
Elektriske installasjoner for ny og eksisterende bolig
🧱 Tre eller tre/alu (ikke spesifisert)
Antall: 22
Vindusoppsett med to-rams vinduer med midtpost, enkelte med frostet glass i trappeoppgang
Nye og endrede vinduer for fasadeendring og påbygg, tilpasset nabo og estetikk
🧱 Takstein eller tilsvarende (ikke spesifisert)
Mønehøyde 9,7 meter over gjennomsnittlig planert terreng, slak helning mot nabo
Takoppløft med saltak som øker mønehøyden for å gi bedre romhøyde i loftsetasje
🧱 Tre eller tilsvarende (ikke spesifisert)
Antall: 2
Balkonger på fasade sørvest og sørøst med rekkverk
Nye balkonger i forbindelse med fasadeendring og påbygg
🧱 Hvit maling for tømmermannskledning
Maling av ny og eksisterende kledning for estetisk helhet
Maling av fasade i hvit farge
Antall: 1
Trapp mellom etasjer, inkludert trappeoppgang med lite vindu med frostet glass
Innvendig trapp i bolig for adkomst til loft og andre etasjer
🧱 Tre, hvitmalt med tradisjonell over- og underligger
Tradisjonell hvitmalt tømmermannskledning for fasadeendring
Ny kledning på fasade for estetisk oppgradering og helhetlig uttrykk
Utførelse av takoppløft, fasadeendring og påbygg med ansvarlig utførende B & J BYGG AS
Tømrerarbeider for påbygg og fasadeendring
Oppmålingsforretning av nabogrense for å sikre avstand på 4,1 meter til nabogrense
Grunnarbeid knyttet til oppmåling og sikring av eiendomsgrenser
🧱 Tre eller tilsvarende (ikke spesifisert)
Antall: 9
Dører i fasade og balkong, inkludert inngangsdører
Nye dører i forbindelse med fasadeendring og påbygg
Oppgradering av bad og WC i forbindelse med påbygg og ny planløsning
VVS-installasjoner for bad og WC i ny og eksisterende bolig
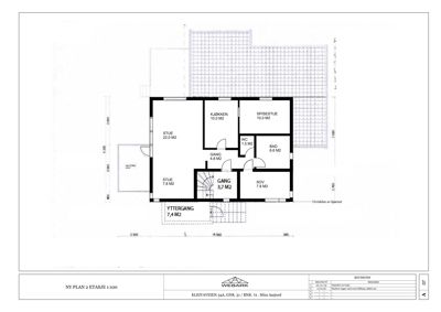
Plantegning
Enebolig 227.3 m²
Etasje 1 120.5 m²
| Rom | Areal | Vinduer | Dører |
|---|---|---|---|
| Stue 101 | 21.7 m² | 1 | 1 |
| Kontor 102 | 7.1 m² | 1 | 1 |
| Kjøkken 103 | 11.8 m² | 1 | 1 |
| Stue / Kjøkken 104 | 26.0 m² | 1 | 1 |
| Soverom 105 | 8.8 m² | 1 | 1 |
| Soverom 106 | 7.8 m² | 1 | 1 |
| Bad 107 | 4.8 m² | 0 | 1 |
| Gang 108 | 5.1 m² | 0 | 2 |
| Gang 109 | 6.0 m² | 0 | 1 |
| Bad 110 | 6.4 m² | 0 | 1 |
| VR 111 | 6.8 m² | 0 | 1 |
| Kjeller Nedgang 112 | 2.9 m² | 0 | 1 |
Etasje 2 106.8 m²
| Rom | Areal | Vinduer | Dører |
|---|---|---|---|
| Stue 201 | 22.8 m² | 1 | 1 |
| TV-Stue 202 | 7.8 m² | 0 | 1 |
| Gang 203 | 4.8 m² | 0 | 2 |
| Kjøkken 204 | 10.2 m² | 0 | 1 |
| Spisestue 205 | 10.8 m² | 0 | 1 |
| Bad 206 | 4.6 m² | 0 | 1 |
| WC 207 | 1.8 m² | 0 | 1 |
| Balkong 208 | 9.8 m² | 0 | 1 |
| Sov 209 | 7.8 m² | 1 | 1 |
| Yttergang 210 | 7.4 m² | 0 | 1 |
Etasje 0 0.0 m²
| Rom | Areal | Vinduer | Dører |
|---|
Etasje 3 0.0 m²
| Rom | Areal | Vinduer | Dører |
|---|
Etasje 4 0.0 m²
| Rom | Areal | Vinduer | Dører |
|---|
Etasje 5 0.0 m²
| Rom | Areal | Vinduer | Dører |
|---|
Etasje 6 0.0 m²
| Rom | Areal | Vinduer | Dører |
|---|
Etasje 7 0.0 m²
| Rom | Areal | Vinduer | Dører |
|---|
Etasje 8 0.0 m²
| Rom | Areal | Vinduer | Dører |
|---|
Etasje 9 0.0 m²
| Rom | Areal | Vinduer | Dører |
|---|
Etasje 10 0.0 m²
| Rom | Areal | Vinduer | Dører |
|---|
Etasje 11 0.0 m²
| Rom | Areal | Vinduer | Dører |
|---|
Etasje 12 0.0 m²
| Rom | Areal | Vinduer | Dører |
|---|
Etasje 13 0.0 m²
| Rom | Areal | Vinduer | Dører |
|---|
Etasje 14 0.0 m²
| Rom | Areal | Vinduer | Dører |
|---|
Etasje 15 0.0 m²
| Rom | Areal | Vinduer | Dører |
|---|
Etasje 16 0.0 m²
| Rom | Areal | Vinduer | Dører |
|---|
Etasje 17 0.0 m²
| Rom | Areal | Vinduer | Dører |
|---|
Etasje 18 0.0 m²
| Rom | Areal | Vinduer | Dører |
|---|
Etasje 19 0.0 m²
| Rom | Areal | Vinduer | Dører |
|---|
Etasje 20 0.0 m²
| Rom | Areal | Vinduer | Dører |
|---|
Etasje 21 0.0 m²
| Rom | Areal | Vinduer | Dører |
|---|
Etasje 22 0.0 m²
| Rom | Areal | Vinduer | Dører |
|---|
Etasje 23 0.0 m²
| Rom | Areal | Vinduer | Dører |
|---|
Etasje 24 0.0 m²
| Rom | Areal | Vinduer | Dører |
|---|
Etasje 25 0.0 m²
| Rom | Areal | Vinduer | Dører |
|---|
Etasje 26 0.0 m²
| Rom | Areal | Vinduer | Dører |
|---|
Etasje 27 0.0 m²
| Rom | Areal | Vinduer | Dører |
|---|
Etasje 28 0.0 m²
| Rom | Areal | Vinduer | Dører |
|---|
Etasje 29 0.0 m²
| Rom | Areal | Vinduer | Dører |
|---|
Etasje 30 0.0 m²
| Rom | Areal | Vinduer | Dører |
|---|
Etasje 31 0.0 m²
| Rom | Areal | Vinduer | Dører |
|---|
Etasje 32 0.0 m²
| Rom | Areal | Vinduer | Dører |
|---|
Etasje 33 0.0 m²
| Rom | Areal | Vinduer | Dører |
|---|
Etasje 34 0.0 m²
| Rom | Areal | Vinduer | Dører |
|---|
Etasje 35 0.0 m²
| Rom | Areal | Vinduer | Dører |
|---|
Etasje 36 0.0 m²
| Rom | Areal | Vinduer | Dører |
|---|
Etasje 37 0.0 m²
| Rom | Areal | Vinduer | Dører |
|---|
Etasje 38 0.0 m²
| Rom | Areal | Vinduer | Dører |
|---|
Etasje 39 0.0 m²
| Rom | Areal | Vinduer | Dører |
|---|
Etasje 40 0.0 m²
| Rom | Areal | Vinduer | Dører |
|---|
Etasje 41 0.0 m²
| Rom | Areal | Vinduer | Dører |
|---|
Etasje 42 0.0 m²
| Rom | Areal | Vinduer | Dører |
|---|
Etasje 43 0.0 m²
| Rom | Areal | Vinduer | Dører |
|---|
Etasje 44 0.0 m²
| Rom | Areal | Vinduer | Dører |
|---|
Etasje 45 0.0 m²
| Rom | Areal | Vinduer | Dører |
|---|
Etasje 46 0.0 m²
| Rom | Areal | Vinduer | Dører |
|---|
Etasje 47 0.0 m²
| Rom | Areal | Vinduer | Dører |
|---|
Etasje 48 0.0 m²
| Rom | Areal | Vinduer | Dører |
|---|
Etasje 49 0.0 m²
| Rom | Areal | Vinduer | Dører |
|---|
Etasje 50 0.0 m²
| Rom | Areal | Vinduer | Dører |
|---|
Etasje 51 0.0 m²
| Rom | Areal | Vinduer | Dører |
|---|
Etasje 52 0.0 m²
| Rom | Areal | Vinduer | Dører |
|---|
Etasje 53 0.0 m²
| Rom | Areal | Vinduer | Dører |
|---|
Etasje 54 0.0 m²
| Rom | Areal | Vinduer | Dører |
|---|
Etasje 55 0.0 m²
| Rom | Areal | Vinduer | Dører |
|---|
Etasje 56 0.0 m²
| Rom | Areal | Vinduer | Dører |
|---|
Etasje 57 0.0 m²
| Rom | Areal | Vinduer | Dører |
|---|
Etasje 58 0.0 m²
| Rom | Areal | Vinduer | Dører |
|---|
Etasje 59 0.0 m²
| Rom | Areal | Vinduer | Dører |
|---|
Etasje 60 0.0 m²
| Rom | Areal | Vinduer | Dører |
|---|
Etasje 61 0.0 m²
| Rom | Areal | Vinduer | Dører |
|---|
Etasje 62 0.0 m²
| Rom | Areal | Vinduer | Dører |
|---|
Etasje 63 0.0 m²
| Rom | Areal | Vinduer | Dører |
|---|
Etasje 64 0.0 m²
| Rom | Areal | Vinduer | Dører |
|---|
Etasje 65 0.0 m²
| Rom | Areal | Vinduer | Dører |
|---|
Etasje 66 0.0 m²
| Rom | Areal | Vinduer | Dører |
|---|
Etasje 67 0.0 m²
| Rom | Areal | Vinduer | Dører |
|---|
Etasje 68 0.0 m²
| Rom | Areal | Vinduer | Dører |
|---|
Etasje 69 0.0 m²
| Rom | Areal | Vinduer | Dører |
|---|
Etasje 70 0.0 m²
| Rom | Areal | Vinduer | Dører |
|---|
Etasje 71 0.0 m²
| Rom | Areal | Vinduer | Dører |
|---|
Etasje 72 0.0 m²
| Rom | Areal | Vinduer | Dører |
|---|
Etasje 73 0.0 m²
| Rom | Areal | Vinduer | Dører |
|---|
Etasje 74 0.0 m²
| Rom | Areal | Vinduer | Dører |
|---|
Etasje 75 0.0 m²
| Rom | Areal | Vinduer | Dører |
|---|
Etasje 76 0.0 m²
| Rom | Areal | Vinduer | Dører |
|---|
Etasje 77 0.0 m²
| Rom | Areal | Vinduer | Dører |
|---|
Etasje 78 0.0 m²
| Rom | Areal | Vinduer | Dører |
|---|
Etasje 79 0.0 m²
| Rom | Areal | Vinduer | Dører |
|---|
Etasje 80 0.0 m²
| Rom | Areal | Vinduer | Dører |
|---|
Etasje 81 0.0 m²
| Rom | Areal | Vinduer | Dører |
|---|
Etasje 82 0.0 m²
| Rom | Areal | Vinduer | Dører |
|---|
Etasje 83 0.0 m²
| Rom | Areal | Vinduer | Dører |
|---|
Etasje 84 0.0 m²
| Rom | Areal | Vinduer | Dører |
|---|
Etasje 85 0.0 m²
| Rom | Areal | Vinduer | Dører |
|---|
Etasje 86 0.0 m²
| Rom | Areal | Vinduer | Dører |
|---|
Etasje 87 0.0 m²
| Rom | Areal | Vinduer | Dører |
|---|
Etasje 88 0.0 m²
| Rom | Areal | Vinduer | Dører |
|---|
Etasje 89 0.0 m²
| Rom | Areal | Vinduer | Dører |
|---|
Etasje 90 0.0 m²
| Rom | Areal | Vinduer | Dører |
|---|
Etasje 91 0.0 m²
| Rom | Areal | Vinduer | Dører |
|---|
Etasje 92 0.0 m²
| Rom | Areal | Vinduer | Dører |
|---|
Etasje 93 0.0 m²
| Rom | Areal | Vinduer | Dører |
|---|
Etasje 94 0.0 m²
| Rom | Areal | Vinduer | Dører |
|---|
Etasje 95 0.0 m²
| Rom | Areal | Vinduer | Dører |
|---|
Etasje 96 0.0 m²
| Rom | Areal | Vinduer | Dører |
|---|
Etasje 97 0.0 m²
| Rom | Areal | Vinduer | Dører |
|---|
Etasje 98 0.0 m²
| Rom | Areal | Vinduer | Dører |
|---|
Etasje 99 0.0 m²
| Rom | Areal | Vinduer | Dører |
|---|
Etasje 100 0.0 m²
| Rom | Areal | Vinduer | Dører |
|---|
Etasje 101 0.0 m²
| Rom | Areal | Vinduer | Dører |
|---|
Etasje 102 0.0 m²
| Rom | Areal | Vinduer | Dører |
|---|
Etasje 103 0.0 m²
| Rom | Areal | Vinduer | Dører |
|---|
Etasje 104 0.0 m²
| Rom | Areal | Vinduer | Dører |
|---|
Etasje 105 0.0 m²
| Rom | Areal | Vinduer | Dører |
|---|
Etasje 106 0.0 m²
| Rom | Areal | Vinduer | Dører |
|---|
Etasje 107 0.0 m²
| Rom | Areal | Vinduer | Dører |
|---|
Etasje 108 0.0 m²
| Rom | Areal | Vinduer | Dører |
|---|
Etasje 109 0.0 m²
| Rom | Areal | Vinduer | Dører |
|---|
Etasje 110 0.0 m²
| Rom | Areal | Vinduer | Dører |
|---|
Etasje 111 0.0 m²
| Rom | Areal | Vinduer | Dører |
|---|
Etasje 112 0.0 m²
| Rom | Areal | Vinduer | Dører |
|---|
Etasje 113 0.0 m²
| Rom | Areal | Vinduer | Dører |
|---|
Etasje 114 0.0 m²
| Rom | Areal | Vinduer | Dører |
|---|
Etasje 115 0.0 m²
| Rom | Areal | Vinduer | Dører |
|---|
Etasje 116 0.0 m²
| Rom | Areal | Vinduer | Dører |
|---|
Etasje 117 0.0 m²
| Rom | Areal | Vinduer | Dører |
|---|
Etasje 118 0.0 m²
| Rom | Areal | Vinduer | Dører |
|---|
Etasje 119 0.0 m²
| Rom | Areal | Vinduer | Dører |
|---|
Etasje 120 0.0 m²
| Rom | Areal | Vinduer | Dører |
|---|
Etasje 121 0.0 m²
| Rom | Areal | Vinduer | Dører |
|---|
Etasje 122 0.0 m²
| Rom | Areal | Vinduer | Dører |
|---|
Etasje 123 0.0 m²
| Rom | Areal | Vinduer | Dører |
|---|
Etasje 124 0.0 m²
| Rom | Areal | Vinduer | Dører |
|---|
Etasje 125 0.0 m²
| Rom | Areal | Vinduer | Dører |
|---|
Etasje 126 0.0 m²
| Rom | Areal | Vinduer | Dører |
|---|
Etasje 127 0.0 m²
| Rom | Areal | Vinduer | Dører |
|---|
Etasje 128 0.0 m²
| Rom | Areal | Vinduer | Dører |
|---|
Etasje 129 0.0 m²
| Rom | Areal | Vinduer | Dører |
|---|
Etasje 130 0.0 m²
| Rom | Areal | Vinduer | Dører |
|---|
Etasje 131 0.0 m²
| Rom | Areal | Vinduer | Dører |
|---|
Etasje 132 0.0 m²
| Rom | Areal | Vinduer | Dører |
|---|
Etasje 133 0.0 m²
| Rom | Areal | Vinduer | Dører |
|---|
Etasje 134 0.0 m²
| Rom | Areal | Vinduer | Dører |
|---|
Etasje 135 0.0 m²
| Rom | Areal | Vinduer | Dører |
|---|
Etasje 136 0.0 m²
| Rom | Areal | Vinduer | Dører |
|---|
Etasje 137 0.0 m²
| Rom | Areal | Vinduer | Dører |
|---|
Etasje 138 0.0 m²
| Rom | Areal | Vinduer | Dører |
|---|
Etasje 139 0.0 m²
| Rom | Areal | Vinduer | Dører |
|---|
Etasje 140 0.0 m²
| Rom | Areal | Vinduer | Dører |
|---|
Etasje 141 0.0 m²
| Rom | Areal | Vinduer | Dører |
|---|
Etasje 142 0.0 m²
| Rom | Areal | Vinduer | Dører |
|---|
Etasje 143 0.0 m²
| Rom | Areal | Vinduer | Dører |
|---|
Etasje 144 0.0 m²
| Rom | Areal | Vinduer | Dører |
|---|
Etasje 145 0.0 m²
| Rom | Areal | Vinduer | Dører |
|---|
Etasje 146 0.0 m²
| Rom | Areal | Vinduer | Dører |
|---|
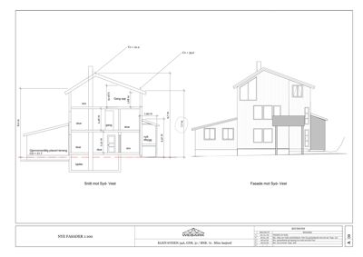
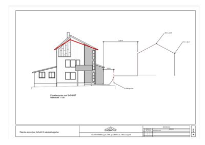
Fasader
Eksisterende bygg
- Materiale
- Tre
- Taktype
- Saltak
- Vinduer
- 2
- Dører
- 1
- Synlige etasjer
- 2
Tilbygg
- Materiale
- Tre
- Taktype
- Saltak
- Vinduer
- 2
- Dører
- 1
- Synlige etasjer
- 2
- Materiale
- Tre
- Taktype
- Saltak
- Vinduer
- 4
- Dører
- 1
- Balkonger
- 1
- Synlige etasjer
- 2
Enebolig
- Materiale
- Tre
- Taktype
- Saltak
- Vinduer
- 6
- Dører
- 1
- Synlige etasjer
- 2
- Materiale
- Tre
- Taktype
- Saltak
- Vinduer
- 2
- Dører
- 1
- Synlige etasjer
- 1
- Materiale
- Tre
- Taktype
- Saltak
- Høyde
- 6.5 m
- Mønehøyde
- 8.2 m
- Vinduer
- 8
- Dører
- 1
- Balkonger
- 1
- Synlige etasjer
- 2